Translate with 
MENU ZAVŘÍT

Prodej domu 110 m², Mohelnice (ID 349-NP00124)

Mohelnice – část obce Libivá mapa

2 582 000 Kč ( za nemovitost)
GMimořádně
nehospodárná

3x
110 m2
1073 m2
1
Exkluzivně Rezervace

Prodej rodinného domu s hospodářským zázemím a zahradou (1.073 m2) v Libivé u Mohelnice

Vážení klienti,

nabízím vám rodinný dům k rekonstrukci s dvorem, zahradou, hospodářskými staveními a garáží jen 3 km od Mohelnice.

Samostatně stojící dům se nachází stranou od rušnější silnice vedoucí na Šumperk, která bude v brzké době řešena obchvatem. Začátek výstavby je plánován na 2027 a dokončení 2029.
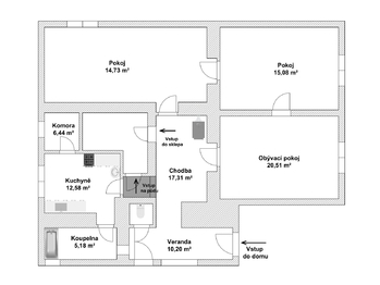
Původní stavba je starší 100 let a největší rekonstrukcí prošla v 70. letech. Dispozice domu je 3+1. Vedle kuchyně je komora, z kuchyně se vstoupí také do koupelny, kde je vana a v předsíni je samostatné WC.
Na chodbě jsou původní plynová kamna, jediný zdroj vytápění v domě. Dům je napojen na obecní vodovodní řad, elektřinu a plyn.
Odpady jsou svedeny do septiku na dvoře. Kanalizace je plánována na rok 2030. Dům je částečně podsklepen (24 m2). V podkroví je prostor pro vybudování dalších místností.
Na doškové střeše je položená břidlicová šablona. Vedle domu je garáž, která dále pokračuje do rozsáhlého hospodářského stavení (cca 157 m2 včetně garáže, která má 17 m2).

Průkaz energetické náročnosti je v současné době ve zpracování, předpokládáme nejnižší energetickou třídu "G".

Libivá je malá, klidná místní část Mohelnice a leží na trase Mohelnice - Zábřeh - Šumperk. Má charakter malého sídla, kde se lidé znají. Do nedaleké Mohelnice vede cyklostezka a ve všední den Libivou projedou 4 autobusové spoje s Mohelnicí, ráno, dopoledne, odpoledne a v podvečer.

Mohelnice je malebné historické město ležící v Olomouckém kraji v okrese Šumperk, má 9.500 obyvatel.
Tradičně zde působí podniky zaměřené na: elektrotechnický průmysl, strojírenství, automotive výrobu a komponenty a logistické služby.
Město se nachází v Mohelnické brázdě, na přechodu mezi úrodnou Hanou a zvlněným podhůřím Jeseníků, což mu dává atraktivní polohu s příjemným klimatem a dobrými podmínkami pro bydlení i podnikání.
Okolí Libivé a Mohelnice je bohaté na přírodní krásy a rekreační místa: Řeka Morava, Litovelské Pomoraví – ideální pro procházky a cyklistiku, Moravičanské jezero – oblíbené místo pro koupání, rybaření a vodní sporty.
Do Jeseníků je to hodina jízdy autem. Město pravidelně pořádá kulturní akce, jarmarky, sportovní soutěže i tradiční festivaly.

Přes město vede dálnice D35, což znamená rychlé spojení: Olomouc – cca 20 min, Zábřeh – 10 min, Šumperk – 20 min, Litovel – 10 min.
Díky blízké železniční stanici Zábřeh na Moravě je dostupné i dálkové vlakové spojení. Město má také kvalitní autobusové napojení na okolní obce.
Město Mohelnice nabízí plnou infrastrukturu a je známé svou čistotou, upraveností a bezpečností, je ideálním místem pro rodinný život.

Těší se na setkání u prohlídky domu, rezervujte si svůj termín.
Cena:
2 582 000 CZK / Rezervováno
Poznámka k ceně:
Upozornění:
Prodávající si vyhrazuje právo vybrat kupujícího na základě jím zvolených kritérií.
RX finance

Spočítejte si splátku hypotéky

Na kolik vás vyjde pořízení vlastního bydlení? Zadejte pár informací do naší hypoteční kalkulačky a hned si prohlédněte výsledek.

Kupní cena nemovitosti

2 582 000 Kč

Výše hypotéky

Doba splácení

Vypočítaná měsíční splátka

Úroková sazba 3.6%

260 990 Kč

Hypotéku zařídíme za vás

Ušetřete svůj čas i nervy. Naši makléři zařídí veškeré papírování a dovedou vás až k úspěšnému podpisu smlouvy v bance.

Nechte nám kontakt, náš makléř se v pracovní dny ozve do 24 hodin

* – toto pole je nutné vyplnit
Ing. Adéla Vaňková
RE/MAX Relations
Staškova 169/69
Mohelnice, 78985
Česká republika
Tel. na makléře: +420 731 305 955
Tel. do kanceláře: +420 731 305 955
E-mail: adela.vankova@re-max.cz

Potřebujete poradit/máte zájem o prohlídku?

* – toto pole je nutné vyplnit

Podrobné informace

Číslo zakázky:
ID 349-NP00124
Poloha objektu:
Samostatný
Počet podlaží v objektu:
1
Užitná plocha:
110 m²
Plocha parcely:
1 073 m²
Druh objektu:
Smíšená
Stav objektu:
Před rekonstrukcí
Typ nemovitosti:
Domy a vily
Charakter okolní zástavby:
Venkovská
K nastěhování:
25. 11. 2025
Doprava:
Dálnice, Silnice, MHD, Autobus
Elektřina:
230 V, 400 V
Garáž:
Ano
Odpad:
Septik
Plocha zahrady:
431 m²
Zastavěná plocha:
642 m²
Plyn:
Plynovod
Počet podlaží pod zemí:
1
Typ domu:
Přízemní
Umístění objektu:
Klidná část obce
Voda:
Dálkový rozvod
Energetická náročnost budovy:
G