Translate with 
MENU ZAVŘÍT

Pronájem bytu 1+kk v osobním vlastnictví 24 m², Praha 6 - Břevnov (ID 205-NP12205)

ulice Bělohorská, Praha 6 – Břevnov mapa

Pronajato
GMimořádně
nehospodárná

kk
1x
24 m2
-1/4
Exkluzivně Pronajato

Pronájem 1+kk

Rádi byste bydleli blízko přírody a současně v dostupnosti MHD?

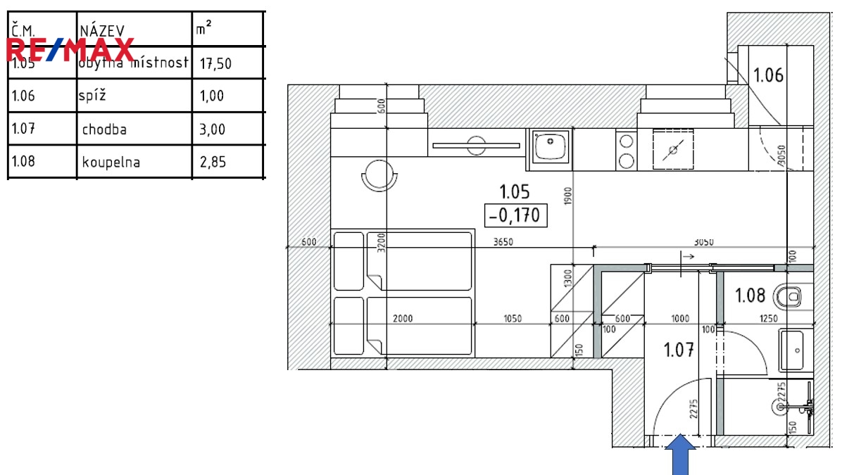
Pojďme se podívat na pronajímanou nemovitost dispozice 1+kk podlahové plochy 24 m2. Nabízená nemovitost je po celkové rekonstrukci a je plně elektrifikována (není zaveden plyn). Kuchyňská linka je tedy vybavena výhradně elektrickými spotřebiči včetně myčky nádobí. Součástí pronájmu je též možnost využívat zahradu (za předpokladu, že se budete účastnit její údržby). Nemovitost je vhodná pro 1 osobu. Přihlášení trvalého bydliště zde není možné.

Dům, kde se nabízená nemovitost nachází je nedaleko obory Hvězda a parku Ladronka. Zastávky tramvaje i autobusu jsou od domu vzdáleny ca. 3 min. pěší chůze. Lze jimi dojet na metro Nemocnice Motol, Hradčanská, Malostranská či Petřiny.

V případě jakýchkoli dotazů či zájmu o prohlídku mne neváhejte kontaktovat.
Cena:
Pronajato
Poznámka k ceně:
Zálohy na služby a energie 3.000,- kč/měs.
Upozornění:
Pronajímající si vyhrazuje právo vybrat nájemce na základě jím zvolených kritérií.
Ing. Miroslav Hošek
RE/MAX Alfa
Spálená 97/29
Praha 1 - Nové Město, 11000
Česká republika
Tel. na makléře: +420 739 204 026
Tel. do kanceláře: +420 296 240 400
E-mail: hosek.team@re-max.cz

Potřebujete poradit/máte zájem o prohlídku?

* – toto pole je nutné vyplnit

Podrobné informace

Číslo zakázky:
ID 205-NP12205
Dispozice:
1+kk
Číslo podlaží:
-1
Počet podlaží v objektu:
4
Podlahová plocha:
24 m²
Druh objektu:
Cihlová
Stav objektu:
Velmi dobrý
Vlastnictví:
Osobní
Typ nemovitosti:
Byty
K nastěhování:
18. 11. 2025
Doprava:
Silnice, MHD
Užitná plocha:
24 m²
Vybaveno:
Ano
Energetická náročnost budovy:
G