Translate with 
MENU ZAVŘÍT

Prodej bytu 3+1 v osobním vlastnictví 87 m², Varnsdorf (ID 024-NP07358)

ulice Kostelní, Varnsdorf mapa

2 300 000 Kč ( za nemovitost)
CÚsporná

1x
3x
87 m2
3/4
Exkluzivně Rezervace

Prodej bytu 3+1 s balkónem, 91,5 m²

Nabízíme k prodeji prostorný byt v osobním vlastnictví o celkové výměře 91,5 m², o dispozici 3+1 s balkonem, sklepem a komorou. Dispozici je možné upravit na 4+1, což činí tuto nemovitost ideální pro rodinu, která hledá více prostoru.

Byt se nachází ve 3. nadzemním podlaží udržovaného domu v klidné a vyhledávané lokalitě. Je před rekonstrukcí, takže si nový majitel může vytvořit interiér přesně podle svých představ.

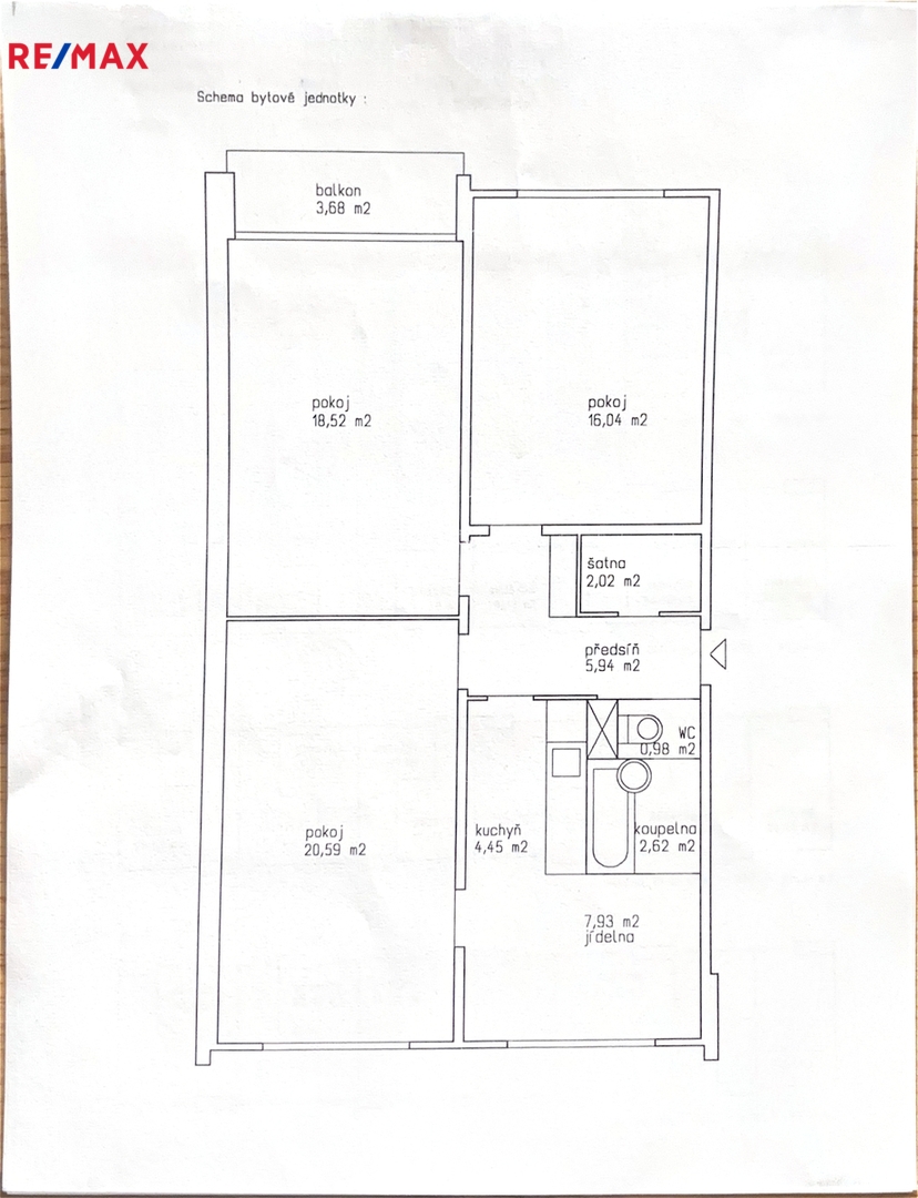
Dispozice:
pokoj (20,59 m²) - možnost spojení/úpravy
ložnice (16,04 m²)
obývací pokoj (18,52 m²)
jídelna (7,93 m²)
kuchyně (4,45 m²)
šatna (2,02 m²)
koupelna (2,62 m²)
samostatné WC (0,98 m²)
balkon (3,68 m²)

K bytu náleží sklepní kóje (cca 3 m²) a další komora v mezipatře (cca 2 m²) – ideální na sportovní výbavu, dětské věci či sezónní úložné věci.

Kostelní ulice patří mezi klidné a stabilní části Varnsdorfu, kde žijí převážně dlouholetí obyvatelé. To přináší bezpečné, tiché a sousedské prostředí. V bezprostřední blízkosti najdete: základní školu, potraviny, restauraci, dětská hřiště. Parkování je možné přímo u domu.

Tento byt nabízí přesně to, co dnes není samozřejmostí: prostor, soukromí a klidné prostředí.

Ráda vám pomohu s financováním i kompletním procesem převodu.
Pro sjednání termínu prohlídky mě neváhejte kontaktovat.
Cena:
2 300 000 CZK / Rezervováno
Poznámka k ceně:
včetně služeb RK a právního servisu
Upozornění:
Prodávající si vyhrazuje právo vybrat kupujícího na základě jím zvolených kritérií.
RX finance

Spočítejte si splátku hypotéky

Na kolik vás vyjde pořízení vlastního bydlení? Zadejte pár informací do naší hypoteční kalkulačky a hned si prohlédněte výsledek.

Kupní cena nemovitosti

2 300 000 Kč

Výše hypotéky

Doba splácení

Vypočítaná měsíční splátka

Úroková sazba 3.6%

260 990 Kč

Hypotéku zařídíme za vás

Ušetřete svůj čas i nervy. Naši makléři zařídí veškeré papírování a dovedou vás až k úspěšnému podpisu smlouvy v bance.

Nechte nám kontakt, náš makléř se v pracovní dny ozve do 24 hodin

* – toto pole je nutné vyplnit
Ing. Martina Jandásková
RE/MAX G8 Reality 6
Mírové náměstí 3485/35b
Ústí nad Labem, 40001
Česká republika
Tel. na makléře: +420 775 072 784
Tel. do kanceláře: +420 608 027 854
E-mail: martina.jandaskova@re-max.cz

Potřebujete poradit/máte zájem o prohlídku?

* – toto pole je nutné vyplnit

Podrobné informace

Číslo zakázky:
ID 024-NP07358
Dispozice:
3+1
Číslo podlaží:
3
Počet podlaží v objektu:
4
Podlahová plocha:
87 m²
Druh objektu:
Panelová
Stav objektu:
Velmi dobrý
Vlastnictví:
Osobní
Typ nemovitosti:
Byty
K nastěhování:
10. 11. 2025
Doprava:
Vlak, Silnice, MHD, Autobus
Elektřina:
230 V
Odpad:
Kanalizace
Ostatní rozvody:
Kabelová televize
Užitná plocha:
83 m²
Zastavěná plocha:
823 m²
Plyn:
Plynovod
Telekomunikace:
Telefon, Internet
Voda:
Dálkový rozvod
Energetická náročnost budovy:
C