Translate with 
MENU ZAVŘÍT

Prodej bytu 3+kk v osobním vlastnictví 70 m², Praha 8 - Troja (ID 114-NP10392)

ulice Na Šutce, Praha 8 – Troja mapa

8 840 000 Kč ( za nemovitost)
FVelmi
nehospodárná

kk
3x
70 m2
1/4
Exkluzivně Rezervace

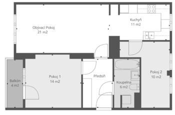
Prodej příjemného a tichého bytu 3 + kk s lodžií

Nabízíme k prodeji příjemný a tichý byt 3 + kk s lodžií a krásným výhledem, umístěný na konci klidné ulice Na Šutce, Praha 8 – Troja.
Byt se nachází v přízemí domu ve svažité lokalitě, díky čemuž má lodžie i jeden z pokojů překvapivě zajímavý výhled až do historického centra Prahy.

Dispozice je upravená – kuchyňský kout je propojený s obývací částí, koupelna má vanu, toaletu a prostor pro pračku se sušičkou, v předsíni jsou vestavěné skříně. Byt má velmi příjemné klima: kuchyň a ložnice jsou orientované na sever, obývací pokoj a pokoj s lodžií na jih.

Dům je součástí uzavřeného a klidného areálu s možností parkování. V blízkosti je veškerá občanská vybavenost, metro Kobylisy a pouhých 5 minut pěšky Aquacentrum Šutka. Nedaleko se nachází ZOO Praha, botanická zahrada i krásné procházkové trasy Troje.

Tiché bydlení v zeleni, s výbornou dostupností a překvapivě hezkým výhledem.
Cena:
8 840 000 CZK / Rezervováno
Poznámka k ceně:
Upozornění:
Prodávající si vyhrazuje právo vybrat kupujícího na základě jím zvolených kritérií.
RX finance

Spočítejte si splátku hypotéky

Na kolik vás vyjde pořízení vlastního bydlení? Zadejte pár informací do naší hypoteční kalkulačky a hned si prohlédněte výsledek.

Kupní cena nemovitosti

8 840 000 Kč

Výše hypotéky

Doba splácení

Vypočítaná měsíční splátka

Úroková sazba 3.6%

260 990 Kč

Hypotéku zařídíme za vás

Ušetřete svůj čas i nervy. Naši makléři zařídí veškeré papírování a dovedou vás až k úspěšnému podpisu smlouvy v bance.

Nechte nám kontakt, náš makléř se v pracovní dny ozve do 24 hodin

* – toto pole je nutné vyplnit
Ing. Vladislava Branská
RE/MAX Horizont
Třebešovská 2869/94
Praha 9 - Horní Počernice, 19300
Česká republika
Tel. na makléře: +420 774 163 374
Tel. do kanceláře: +420 733 149 056
E-mail: vladislava.branska@re-max.cz

Potřebujete poradit/máte zájem o prohlídku?

* – toto pole je nutné vyplnit

Podrobné informace

Číslo zakázky:
ID 114-NP10392
Dispozice:
3+kk
Číslo podlaží:
1
Počet podlaží v objektu:
4
Podlahová plocha:
70 m²
Druh objektu:
Smíšená
Stav objektu:
Velmi dobrý
Vlastnictví:
Osobní
Typ nemovitosti:
Byty
Charakter okolní zástavby:
Obytná
K nastěhování:
18. 11. 2025
Odpad:
Kanalizace
Užitná plocha:
70 m²
Zastavěná plocha:
908 m²
Umístění objektu:
Klidná část obce
Energetická náročnost budovy:
F