Translate with 
MENU ZAVŘÍT

Prodej domu 350 m², Košátky (ID 205-NP12226)

Košátky, okres Mladá Boleslav mapa

22 750 000 Kč ( za nemovitost)

5+
350 m2
3497 m2
2
Exkluzivně

Vícegenerační dům s velkým pozemkem a bazénem – Košátky

Nabízíme k prodeji prostorný vícegenerační patrový rodinný dům o užitné ploše cca 350 m² v obci Košátky, postavený na rozsáhlém pozemku 3 497 m², z větší části stavebním. Dům je v dobrém technickém stavu, napojen na veřejný vodovod, kanalizaci a elektřinu, disponuje vlastní studnou.

Hlavní výhody nemovitosti:

- Možnost samostatné bytové jednotky 2+kk v druhé budově – již připravené rozvody.
- Výborná dostupnost do Prahy – Černý Most cca 30 minut autem.
- Dostupnost do centra Prahy vlakem přibližně 1 hodinu.
- Nízké měsíční náklady na provoz domu – cca do 10 000 Kč.
- Velký pozemek se samostatným vjezdem, který umožňuje případné rozdělení parcely.
- Dům na okraji obce v blízkosti lesa, zajišťující klid, soukromí a kontakt s přírodou.
- 30 min do Prahy z toho do 15 min na D10.

Dispozice:
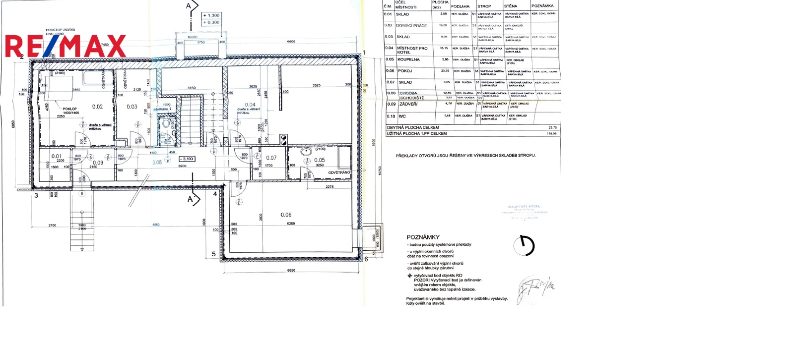
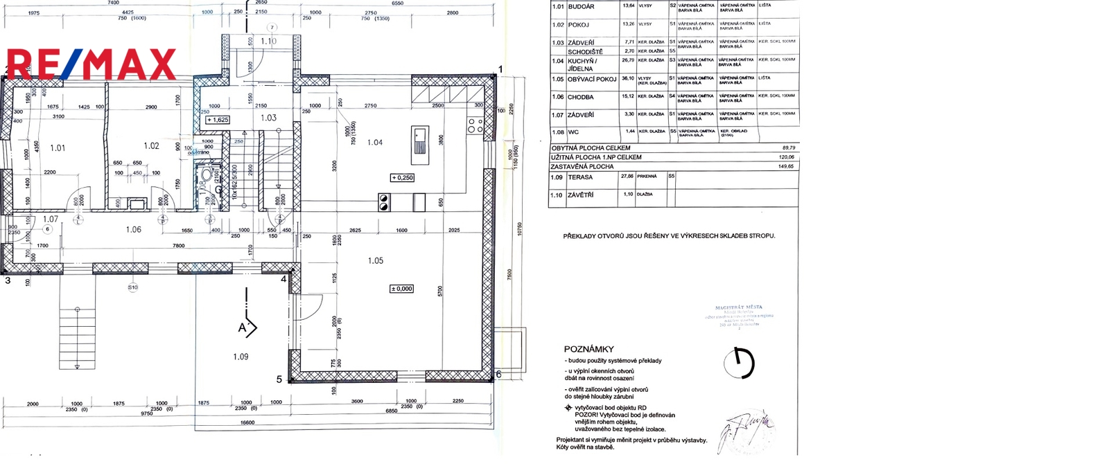
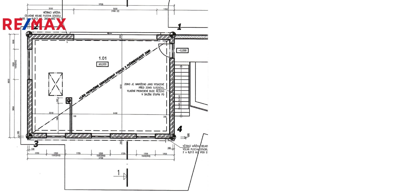
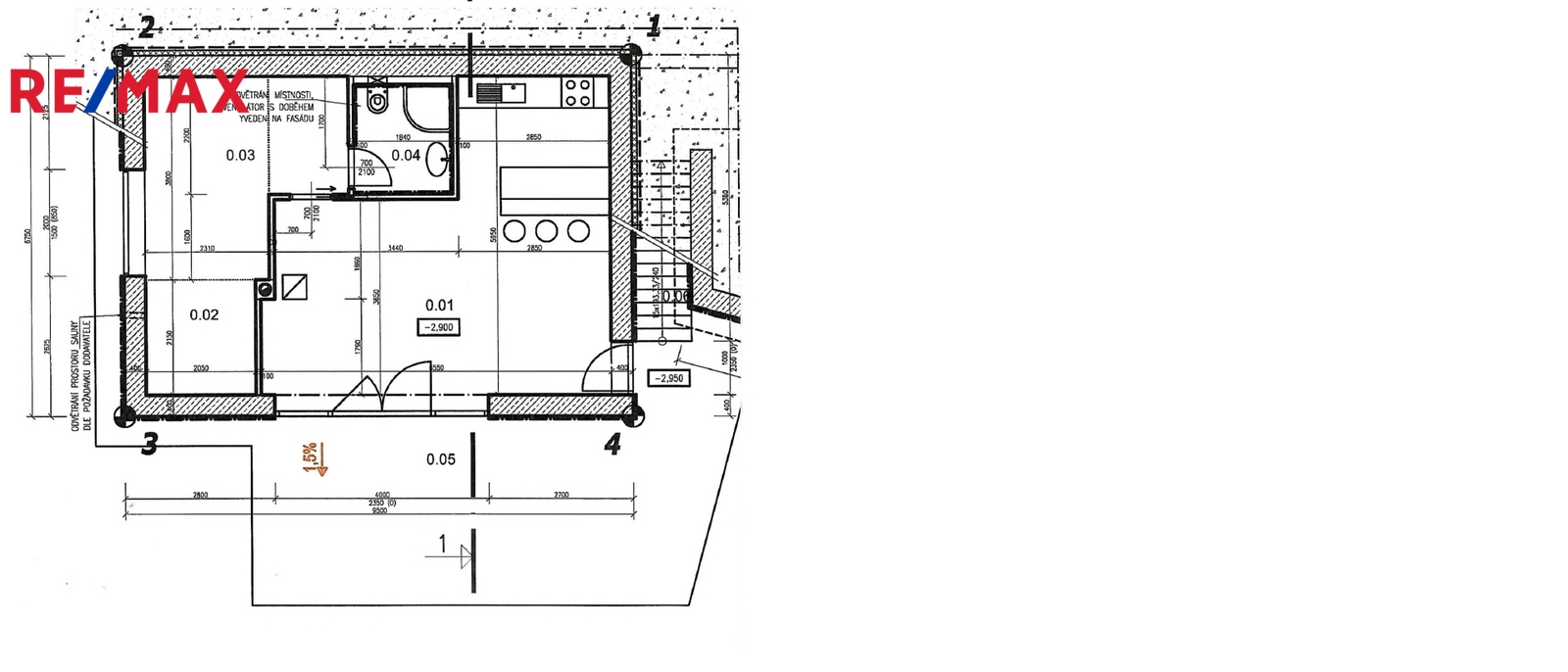
Suterén – chodba, prádelna + technická místnost, spíž, WC, technická místnost, pokoj s koupelnou, dílna s venkovním přístupem. Přízemí – předsíň, chodba, dva pokoje, WC, obývací pokoj s kuchyní, terasa. Podkroví – ložnice s šatnou, dva pokoje, koupelna, WC, chodba a vstup na půdu.

Součástí domu je velká terasa s nádherným výhledem, bazén a vedlejší stavba – v přízemí budoucí venkovní posezení s krbem, v patře prostorná garáž. Vytápění zajišťuje kotel na pelety, ohřev vody elektrický bojler, na střeše jsou solární panely s bateriovým úložištěm (2 roky staré). Dům má eurookna, alarm a v podkroví klimatizaci. Přístup je zajištěn z obecní komunikace.
Tento dům nabízí komfortní bydlení v klidném prostředí, ideální pro rodinu či rekreaci s dostatkem soukromí a prostoru.

Obec Košátky leží v okrese Mladá Boleslav ve Středočeském kraji, přibližně 30 km jižně od Mladé Boleslavi a 35 km od Prahy (snadná dostupnost po dálnici D10). V obci žije přibližně 400 obyvatel, panuje zde klidná venkovská atmosféra, okolí tvoří lesy, louky a zemědělská krajina. Nachází se zde základní občanská vybavenost (obecní úřad, vlaková zastávka, zastávka autobusu) v Byšicích je ZŠ, MŠ a obchody či Mladé Boleslavi je kompletní městská infrastruktura — školy, školky, obchody, služby i kultura. Košátky jsou vyhledávanou lokalitou pro klidné bydlení v dosahu města.

Klíčové výhody:
• Pozemek 3 497 m² (většina stavební)
• Užitná plocha domu přes 300 m²
• Velká terasa, bazén, garáž
• Solární systém s bateriemi
• Vlastní studna
• Klidná lokalita, výborná dostupnost Prahy a Mladé Boleslavi

Prohlídky se budou konat po předchozí telefonické či e-mailové dohodě. Dovolujeme si upozornit, že v případě více vážných zájemců může být nemovitost prodána nejlepší nabídce. Prodávající si vyhrazuje právo vybrat kupujícího na základě jím zvolených kritérií.
Cena:
22 750 000 CZK / za nemovitost
RX finance

Spočítejte si splátku hypotéky

Na kolik vás vyjde pořízení vlastního bydlení? Zadejte pár informací do naší hypoteční kalkulačky a hned si prohlédněte výsledek.

Kupní cena nemovitosti

22 750 000 Kč

Výše hypotéky

Doba splácení

Vypočítaná měsíční splátka

Úroková sazba 3.6%

260 990 Kč

Hypotéku zařídíme za vás

Ušetřete svůj čas i nervy. Naši makléři zařídí veškeré papírování a dovedou vás až k úspěšnému podpisu smlouvy v bance.

Nechte nám kontakt, náš makléř se v pracovní dny ozve do 24 hodin

* – toto pole je nutné vyplnit
Jakub Šprynar
REMAX Alfa
Spálená 97/29
Praha 1 - Nové Město, 11000
Česká republika
Tel. na makléře: +420 604 243 811
Tel. do kanceláře: +420 296 240 400
E-mail: jakub.sprynar@re-max.cz

Potřebujete poradit/máte zájem o prohlídku?

* – toto pole je nutné vyplnit

Podrobné informace

Číslo zakázky:
ID 205-NP12226
Poloha objektu:
Samostatný
Počet podlaží v objektu:
2
Užitná plocha:
350 m²
Plocha parcely:
3 497 m²
Druh objektu:
Cihlová
Stav objektu:
Velmi dobrý
Typ nemovitosti:
Domy a vily
Charakter okolní zástavby:
Obytná
K nastěhování:
5. 1. 2026
Elektřina:
230 V
Garáž:
Ano
Odpad:
Kanalizace
Plocha zahrady:
3 241 m²
Zastavěná plocha:
256 m²
Typ domu:
Patrový
Umístění objektu:
Okraj obce
Umístění v chráněných lokalitách:
Ochranné pásmo
Voda:
Dálkový rozvod