Translate with 
MENU ZAVŘÍT

Prodej bytu 2+1 v osobním vlastnictví 55 m², Duchcov (ID 024-NP07368)

ulice Jungmannova, Duchcov mapa

1 999 000 Kč ( za nemovitost)
GMimořádně
nehospodárná

1x
2x
55 m2
2/3
Exkluzivně

Prodej bytu v osobním vlastnictví 50 m², Duchcov

Nabízíme ke koupi byt v osobním vlastnictví, který se nachází v klidné a vyhledávané lokalitě v ulici Jungmannova v Duchcově. Díky své poloze je vhodný jak pro vlastní bydlení, tak jako zajímavá investiční příležitost.
Byt o dispozici 2+1 je určen k celkové rekonstrukci, což vám umožní přizpůsobit si ho přesně podle vašich představ. Situován je ve 2. nadzemním podlaží revitalizovaného domu bez výtahu.
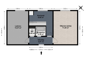
Dispozice:
Po vstupu do bytu se nachází předsíň, ze které je přístup na toaletu a do koupelny. Za koupelnou se nachází kuchyně, z níž lze vejít do obývacího pokoje. Na opačné straně bytu se nachází ložnice. Všechna okna jsou orientována na západ, díky čemuž je byt příjemně prosvětlený po celé odpoledne.
K bytu náleží dvě sklepní kóje.
Cena:
1 999 000 CZK / za nemovitost
Poznámka k ceně:
Včetně provize realitní kanceláře a právního servisu
Upozornění:
Prodávající si vyhrazuje právo vybrat kupujícího na základě jím zvolených kritérií.
RX finance

Spočítejte si splátku hypotéky

Na kolik vás vyjde pořízení vlastního bydlení? Zadejte pár informací do naší hypoteční kalkulačky a hned si prohlédněte výsledek.

Kupní cena nemovitosti

1 999 000 Kč

Výše hypotéky

Doba splácení

Vypočítaná měsíční splátka

Úroková sazba 3.6%

260 990 Kč

Hypotéku zařídíme za vás

Ušetřete svůj čas i nervy. Naši makléři zařídí veškeré papírování a dovedou vás až k úspěšnému podpisu smlouvy v bance.

Nechte nám kontakt, náš makléř se v pracovní dny ozve do 24 hodin

* – toto pole je nutné vyplnit
Nejbližší termín prohlídky:

21. 11. 2025, 9:00–12:00 hod.


RE/MAX G8 Reality 6
Detail

Jan Cilich
RE/MAX G8 Reality 6
Mírové náměstí 3485/35b
Ústí nad Labem, 40001
Česká republika
Tel. na makléře: +420 774 767 196
Tel. do kanceláře: +420 608 027 854
E-mail: jan.cilich@re-max.cz

Potřebujete poradit/máte zájem o prohlídku?

* – toto pole je nutné vyplnit

Podrobné informace

Číslo zakázky:
ID 024-NP07368
Dispozice:
2+1
Číslo podlaží:
2
Počet podlaží v objektu:
3
Podlahová plocha:
55 m²
Druh objektu:
Cihlová
Stav objektu:
Velmi dobrý
Vlastnictví:
Osobní
Typ nemovitosti:
Byty
Charakter okolní zástavby:
Obytná
K nastěhování:
1. 12. 2025
Doprava:
Vlak, Silnice, MHD, Autobus
Elektřina:
230 V
Odpad:
Kanalizace
Ostatní rozvody:
Kabelová televize
Užitná plocha:
50 m²
Plyn:
Plynovod
Počet podlaží pod zemí:
1
Umístění objektu:
Klidná část obce
Voda:
Dálkový rozvod
Energetická náročnost budovy:
G