Translate with 
MENU ZAVŘÍT

Prodej chaty / chalupy 90 m², Polní Chrčice (ID 059-NP07741)

Polní Chrčice, okres Kolín mapa

3 990 000 Kč ( za nemovitost)
GMimořádně
nehospodárná

4x
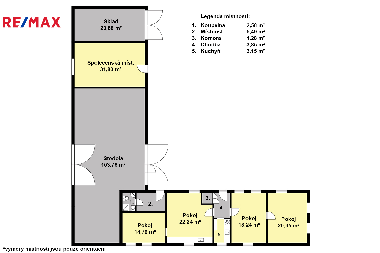
90 m2
739 m2
1
Exkluzivně

Prodej stylové chalupy na klidném místě

Toužíte po místě, kde budete mít naprostý klid, dostatek prostoru a zároveň výbornou dostupnost? Nabízíme k prodeji kouzelnou chalupu v obci Polní Chrčice, ideální pro rekreaci

Hlavní přednosti nemovitosti

Klidná lokalita s minimem provozu a příjemná venkovská atmosféra.

Skvělá dostupnost - pouze 3 km od dálnice D11, dojezd 35 minut na Prahu - Černý Most i Hradec Králové

Velká společenská místnost pro rodinná setkání, víkendové hosty i večery s přáteli

Prostorná stodola vhodná jako dílna, garáž, sklad nebo k rekreační přestavbě

Zahradní posezení - klidná zóna pro odpočinek u kávy i letní grilování

Bazén pro osvěžení v horkých dnech

Venkovní krb - ideální pro večerní pohodu a rodinné grilovačky

Udržovaná zahrada nabízí soukromí i prostor pro vaše další nápady

Tato chalupa je skvělou volbou pro ty, kteří chtějí uniknout z města, ale zároveň mít vše rychle po ruce. Kombinace přátelské vesnice, dobré dopravní dostupnosti a širokých možností využití z ní dělá výjimečnou nabídku.

První prohlídky budou možné od 5.-7.12.2025. Neváhejte si zarezervovat svůj termín prohlídky.

Děkuji.
Cena:
3 990 000 CZK / za nemovitost
Poznámka k ceně:
Cena včetně provize a právních služeb
Upozornění:
Prodávající si vyhrazuje právo vybrat kupujícího na základě jím zvolených kritérií.
RX finance

Spočítejte si splátku hypotéky

Na kolik vás vyjde pořízení vlastního bydlení? Zadejte pár informací do naší hypoteční kalkulačky a hned si prohlédněte výsledek.

Kupní cena nemovitosti

3 990 000 Kč

Výše hypotéky

Doba splácení

Vypočítaná měsíční splátka

Úroková sazba 3.6%

260 990 Kč

Hypotéku zařídíme za vás

Ušetřete svůj čas i nervy. Naši makléři zařídí veškeré papírování a dovedou vás až k úspěšnému podpisu smlouvy v bance.

Nechte nám kontakt, náš makléř se v pracovní dny ozve do 24 hodin

* – toto pole je nutné vyplnit
Radek Ryšán
RE/MAX G8 Reality 4
Václavská 864
Kolín, 28002
Česká republika
Tel. na makléře: +420 603 830 711
Tel. do kanceláře: +420 603 392 333
E-mail: radek.rysan@re-max.cz

Potřebujete poradit/máte zájem o prohlídku?

* – toto pole je nutné vyplnit

Podrobné informace

Číslo zakázky:
ID 059-NP07741
Poloha objektu:
Řadový
Počet podlaží v objektu:
1
Užitná plocha:
90 m²
Plocha parcely:
739 m²
Druh objektu:
Cihlová
Stav objektu:
Před rekonstrukcí
Typ nemovitosti:
Chaty a rekreační objekty
Charakter okolní zástavby:
Obytná
K nastěhování:
1. 12. 2025
Doprava:
Dálnice, Silnice, Autobus
Elektřina:
400 V
Celková plocha:
90 m²
Zastavěná plocha:
319 m²
Typ domu:
Přízemní
Vybaveno:
Ano
Energetická náročnost budovy:
G