Translate with 
MENU ZAVŘÍT

Prodej domu 375 m², Nová Ves (ID 305-NP00853)

Nová Ves – část obce Nová Ves u Albrechtic mapa

29 990 000 Kč ( za nemovitost)
AMimořádně
úsporná

5+
375 m2
73573 m2
2
Exkluzivně

Rodinný dům 5KK 375m2, pozemek 73573m², Nová Ves – Žďárský rybník

Rodinný dům 5KK 375m2, pozemek 73573m², stavební pozemek uprostřed lesa a rybníka 7,36 ha, Nová Ves – Žďárský rybník

Výhradně vám nabízíme jedinečný projekt samostatného rodinného domu na výjimečném místě Nová Ves – Žďárský rybník u Týniště nad Orlicí, a to včetně platného stavebního povolení na rodinný dům s vedlejším objektem. Součástí nabídky je rozlehlý pozemek o celkové výměře 73 573 m², ze tří stran lemovaný lesem, s nádherným výhledem na Žďárský rybník. Z toho cca 3 500 m² je určeno pro výstavbu.
Pokud netoužíte po životě ve městě a láká vás klid, příroda, lesy a louky na dosah, pak je toto místo pro vás jako stvořené. Pozemek nabízí soukromí, klid a krásné výhledy do okolní krajiny. Přesto je veškerá občanská vybavenost na dosah – Týniště nad Orlicí je vzdálené 4 km a nájezd na dálnici D11 pouhých 15 km.
________________________________________
Popis pozemku
Celková výměra: 73 573 m², rozděleno na:
1) Stavební pozemek – cca 3 500 m²
V územním plánu veden jako plochy smíšené obytné – venkovské (SV), umožňující:
• výstavbu rodinného domu,
• drobnou podnikatelskou činnost,
• občanskou vybavenost a další.
Regulativy územního plánu:
• maximální výška zástavby: 9 m
• minimální výměra stavebních pozemků: 1 400 m²
• koeficient zastavění: max. 35 %
2) Přírodní a zemědělský pozemek – 67 628 m²
V územním plánu veden jako plochy přírodní a zemědělské (NS)
3) Lesní plocha – 444 m²
V územním plánu jako plochy lesní (NL).
4) Plocha dopravní infrastruktury – 2 001 m²
________________________________________
Stavební povolení a projekt
Na pozemku 362/1 je vydané a pravomocné stavební povolení pro:
• novostavbu rodinného domu včetně technické infrastruktury,
• doplňkové stavby (hospodářský objekt, kryté stání, krytá terasa),
• sjezd a zpevněné plochy,
• vsakovací zařízení,
• oplocení, terénní a sadové úpravy,
• demolici původní zemědělské stavby.
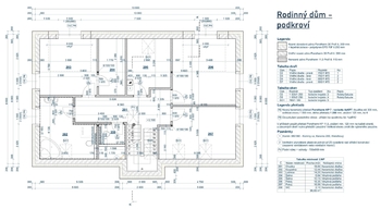
Projektovaný rodinný dům - PENB "A" mimořádně úsporné:
• dispozice: 5+KK,
• obytné podkroví,
• užitná plocha: 194,5 m²,
• krytá terasa: 45 m²,
• kryté stání: 45 m²,
• vedlejší hospodářský objekt 180 m².
Vytápění je řešeno tepelným čerpadlem vzduch–voda.
Na pozemku se již nachází:
• vrtaná studna (48 m),
• elektrická přípojka – sloupek na hranici pozemku,
• domácí ČOV (řešení kanalizace).
Veškerá stavební dokumentace je k nahlédnutí, projekt je již povolen.
________________________________________
Výjimečné místo plné klidu
Pozemek je skrytý před okolním děním, nabízí naprosté soukromí, ticho a atmosféru, kterou jinde nenajdete. Ideální pro okamžitou výstavbu jednoho či více rodinných domů — projekt lze upravit, případně realizovat nový dle vašich představ. Nejdelší strana pozemku sousedí s rybníkem, který nabízí nádherný a ničím nerušený výhled.
Možnosti využití jsou opravdu široké. Ideální, klidná lokalita pro chov koní nebo pro založení vlastní farmy.

________________________________________
Pokud vás nabídka zaujala, rád vás osobně provedu pozemkem v obci Nová Ves. Těším se na setkání!
Cena:
29 990 000 CZK / za nemovitost
Poznámka k ceně:
Upozornění:
Prodávající si vyhrazuje právo vybrat kupujícího na základě jím zvolených kritérií.
RX finance

Spočítejte si splátku hypotéky

Na kolik vás vyjde pořízení vlastního bydlení? Zadejte pár informací do naší hypoteční kalkulačky a hned si prohlédněte výsledek.

Kupní cena nemovitosti

29 990 000 Kč

Výše hypotéky

Doba splácení

Vypočítaná měsíční splátka

Úroková sazba 3.6%

260 990 Kč

Hypotéku zařídíme za vás

Ušetřete svůj čas i nervy. Naši makléři zařídí veškeré papírování a dovedou vás až k úspěšnému podpisu smlouvy v bance.

Nechte nám kontakt, náš makléř se v pracovní dny ozve do 24 hodin

* – toto pole je nutné vyplnit
Filip Boudyš
RE/MAX Infinity
Masarykovo náměstí 392/14
Hradec Králové, 50002
Česká republika
Tel. na makléře: +420 777 278 800
Tel. do kanceláře: +420 737 580 065
E-mail: filip.boudys@re-max.cz

Potřebujete poradit/máte zájem o prohlídku?

* – toto pole je nutné vyplnit

Podrobné informace

Číslo zakázky:
ID 305-NP00853
Poloha objektu:
Samostatný
Počet podlaží v objektu:
2
Užitná plocha:
375 m²
Plocha parcely:
73 573 m²
Druh objektu:
Cihlová
Stav objektu:
Projekt
Typ nemovitosti:
Domy a vily
K nastěhování:
12. 12. 2025
Elektřina:
230 V, 400 V
Odpad:
Čistička odpadních vod pro celý objekt
Plocha zahrady:
73 573 m²
Zastavěná plocha:
306 m²
Počet parkovacích míst:
2
Typ domu:
Patrový
Umístění objektu:
Samota
Voda:
Zdroj pro celý objekt
Energetická náročnost budovy:
A
Měrná vypočtená roční spotřeba energie v kWh/m²/rok:
53