Translate with 
MENU ZAVŘÍT

Prodej bytu 3+kk v osobním vlastnictví 84 m², Velké Přílepy (ID 218-NP06829)

ulice Sportovní, Velké Přílepy mapa

9 800 000 Kč (vč. DPH, za nemovitost)
DMéně
úsporná

kk
3x
84 m2
1/2
Exkluzivně

Světlý mezonetový byt 3+kk, 84m2, s menší zahradou

Hledáte klidné bydlení pro rodinu nedaleko Prahy?
Světlý mezonetový byt 3+kk s menší zahradou, jen necelých 18km od centra hlavního města, jistě splní požadavky vaší rodiny pro komfortní bydlení.

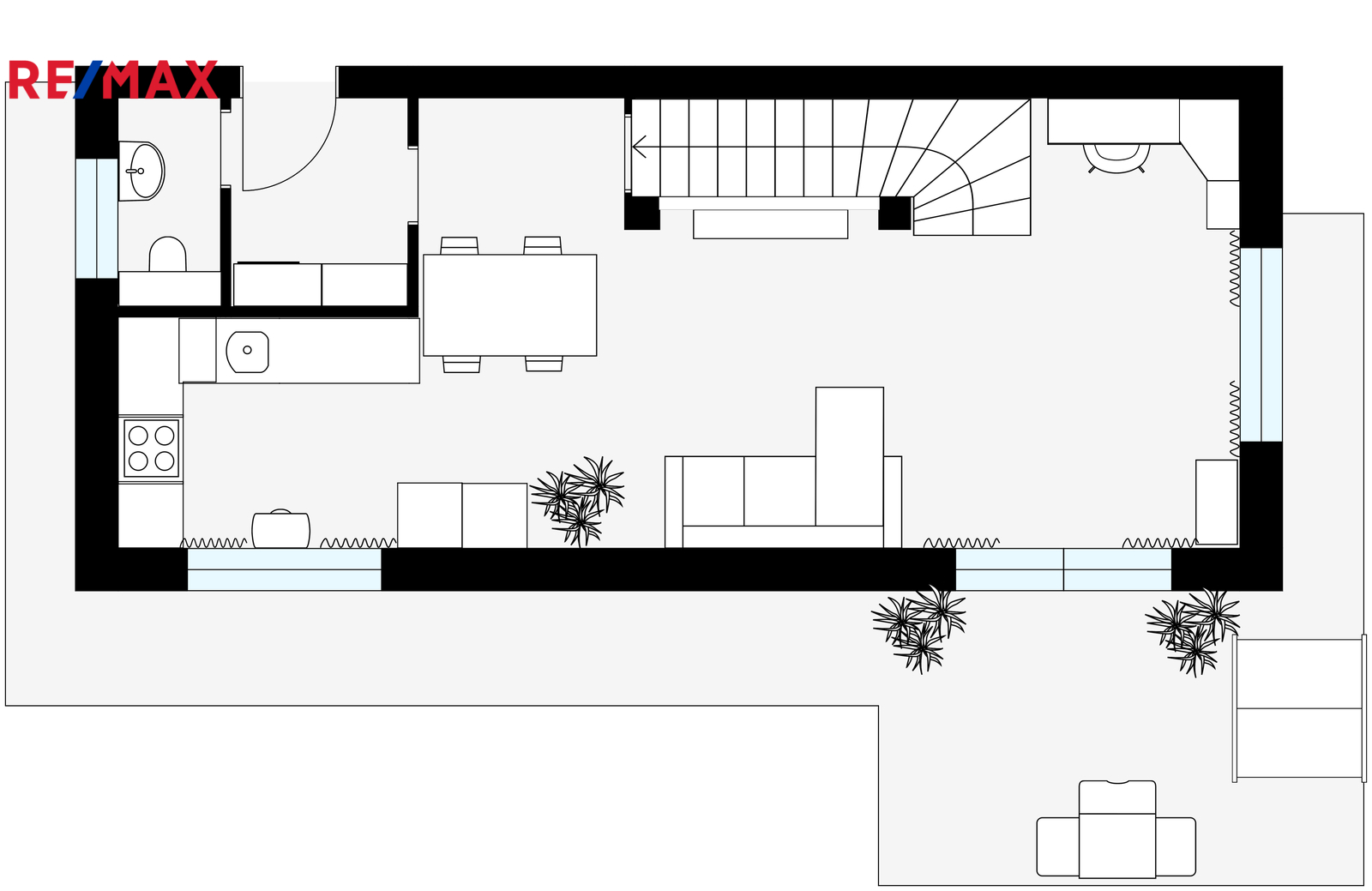
Byt je rozdělen do dvou pater (viz půdorysy ve fotogalerii): v 1.NP se nachází předsíň s vestavěnou skříní (3,04m2), samostatné WC (1,87m2), komora pod schodištěm (cca 2m2), obývací pokoj (31,50m2) se zdařile zrekonstruovaným kuchyňským koutem (6,15m2) s kvalitními vestavěnými spotřebiči. Z obývacího pokoje je vstup na terasu do udržované zahrady s příjemným posezením.
Ve 2.NP se nachází chodba se schodištěm (6,88m2), dětský pokoj (14,96m2) s nábytkem na míru a vstupem na balkon (2,80 m2), ložnice (15,06 m2) a koupelna s vanou a toaletou (5,10m2).
Je zřízen výlez na půdu, kterou lze využít jako další úložný prostor.

Ohřev vody a vytápění nemovitosti je řešeno plynovým kotlem. Ve všech pokojích je instalována klimatizace.

Dům, ve kterém jsou pouze tři bytové jednotky se nachází v klidné části, pouze 6min chůze od centra obce Velké Přílepy.

Velké Přílepy jsou vyhledávanou rezidenční lokalitou se skvělou dopravní dostupností do Prahy (18km), Kladna (15km) či Kralup nad Vltavou (11km). Spojení s Prahou či Kladnem je zajištěno autobusovými linkami PID 316 (Bořislavka) a 350 (Dejvická/Kladno).
V obci je kompletní občanská vybavenost (Pošta, MŠ, ZŠ, Obchod, Restaurace atd.).

V okolí najdete spoustu možností pro volnočasové aktivity jako jízdárny, koupaliště s pláží, Snail driving range, Pivovar atd. Dále je zde spousta zeleně – nedaleko je např. vyhlídka Skalka nebo vyhlášená zřícenina hradu Okoř.

Prodávající si vyhrazuje právo vybrat kupujícího na základě jím zvolených kritérií.
Cena:
9 800 000 CZK / za nemovitost
Poznámka k ceně:
Upozornění:
Prodávající si vyhrazuje právo vybrat kupujícího na základě jím zvolených kritérií.
RX finance

Spočítejte si splátku hypotéky

Na kolik vás vyjde pořízení vlastního bydlení? Zadejte pár informací do naší hypoteční kalkulačky a hned si prohlédněte výsledek.

Kupní cena nemovitosti

9 800 000 Kč

Výše hypotéky

Doba splácení

Vypočítaná měsíční splátka

Úroková sazba 3.6%

260 990 Kč

Hypotéku zařídíme za vás

Ušetřete svůj čas i nervy. Naši makléři zařídí veškeré papírování a dovedou vás až k úspěšnému podpisu smlouvy v bance.

Nechte nám kontakt, náš makléř se v pracovní dny ozve do 24 hodin

* – toto pole je nutné vyplnit
Sabina Smolová
RE/MAX Anděl
Ostrovského 253/3
Praha 5 - Smíchov, 15000
Česká republika
Tel. na makléře: +420 608 012 047
Tel. do kanceláře: +420 725 293 030
E-mail: sabina.smolova@re-max.cz

Potřebujete poradit/máte zájem o prohlídku?

* – toto pole je nutné vyplnit

Podrobné informace

Číslo zakázky:
ID 218-NP06829
Dispozice:
3+kk
Číslo podlaží:
1
Počet podlaží v objektu:
2
Podlahová plocha:
84 m²
Druh objektu:
Cihlová
Stav objektu:
Velmi dobrý
Vlastnictví:
Osobní
Typ nemovitosti:
Byty
Charakter okolní zástavby:
Obytná
Odpad:
Kanalizace
Užitná plocha:
84 m²
Plyn:
Plynovod
Umístění objektu:
Klidná část obce
Voda:
Dálkový rozvod
Energetická náročnost budovy:
D
Měrná vypočtená roční spotřeba energie v kWh/m²/rok:
190