Translate with 
MENU ZAVŘÍT

Prodej bytu atypický v osobním vlastnictví 160 m², Praha 5 - Smíchov (ID 022-NP02878)

ulice Na Březince, Praha 5 – Smíchov mapa

21 900 000 Kč ( za nemovitost)
ENehospodárná

1x
x
160 m2
5/5
Exkluzivně

Mezonetový byt 5+2+terasa, Smíchov

Objevte svůj nový domov prostřednictvím videoprohlídky tohoto výjimečného mezonetového bytu, který vás okouzlí svým jedinečným nádechem a prostorností!
Nachází se v klidné rezidenční lokalitě Malvazinky, obklopené vilovou zástavbou a zelení, s atmosférou, která připomíná spíše malebnou městskou čtvrť než rušné centrum.
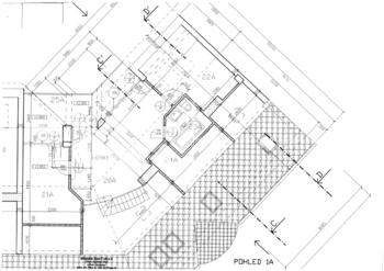
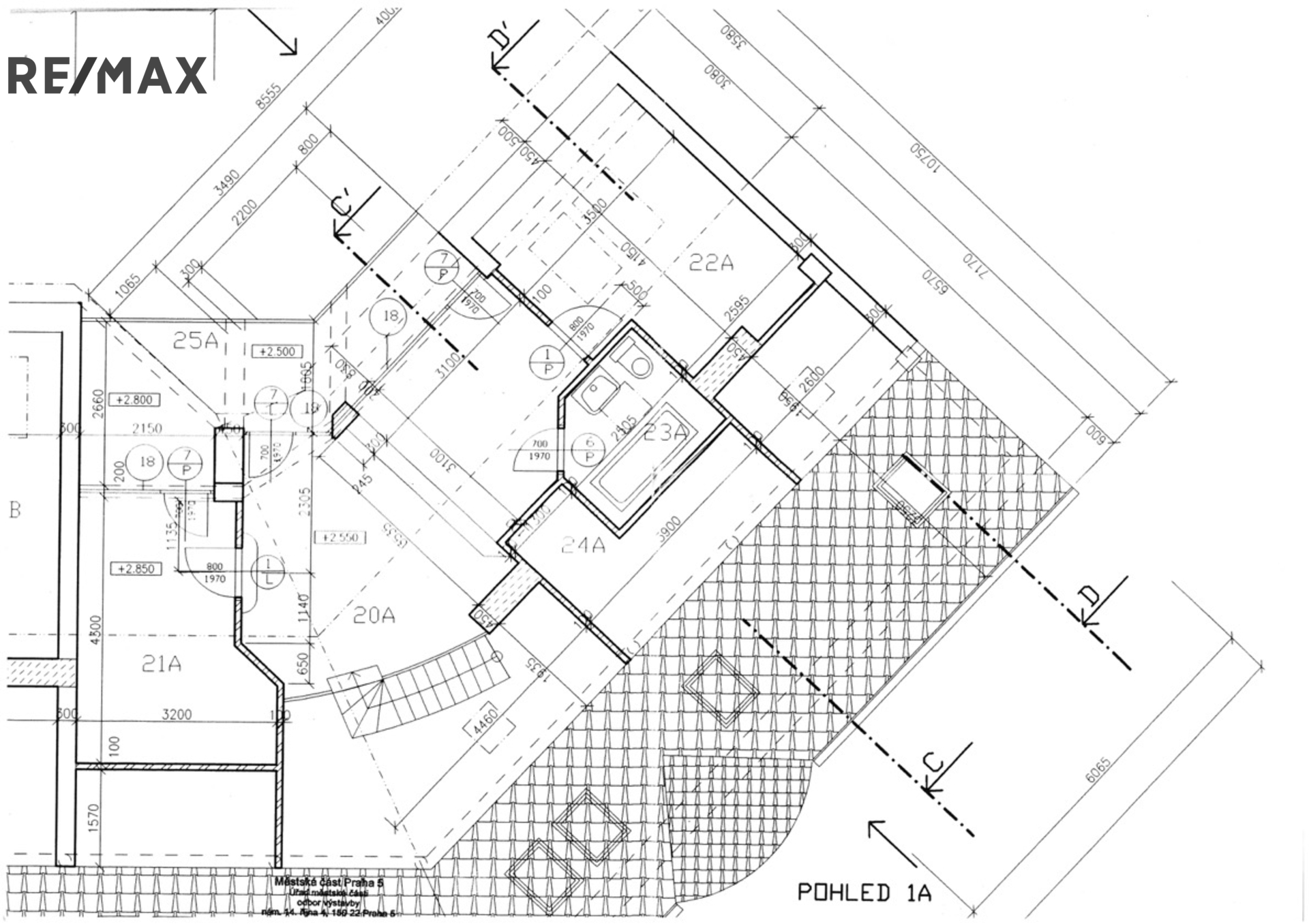
Exkluzivně Vám nabízíme tento velkorysý pětipokojový byt o rozloze 135 m2, v 4.patře, který zahrnuje prostornou vstupní halu, šatnu, pracovnu, dvě moderní koupelny (jedna s vanou, druhá se sprchovým koutem a toaletou) a samostatnou toaletu. Prostorný obývací pokoj je prosvětlený díky ateliérovým oknům, která plynule propojují prostor s otevřenou kuchyní a jídelnou.
Hlavním lákadlem bytu je však prostorná střešní terasa o velikosti 18m2, která je umístěna do vnitrobloku a nabízí výjimečný a nerušený výhled na celou Prahu. Výhledově bude společenství vlastníků jednat o instalaci výtahu.
Život v Smíchov City znamená žít v místě plném zeleně, sportovních aktivit a příležitostí. Tato multifunkční čtvrť nabízí moderní bydlení s bohatou občanskou vybaveností – od škol, lékařské péče po široký výběr obchodů, restaurací a kulturního vyžití. Na dosah ruky máte prestižní gymnázia, francouzské lyceum, multikina a atraktivní gastronomické a společenské prostory, jako je např. Manifesto Market.
Přijďte a zažijte harmonii moderního bydlení s historickým šarmem. Vaše nové štěstí může začít právě zde!
Kontaktujte makléřku a domluvte si prohlídku, ráda Vám vše ukáže.

Your Private Sanctuary Above the City
Cena:
21 900 000 CZK / za nemovitost
Poznámka k ceně:
Upozornění:
Prodávající si vyhrazuje právo vybrat kupujícího na základě jím zvolených kritérií.
RX finance

Spočítejte si splátku hypotéky

Na kolik vás vyjde pořízení vlastního bydlení? Zadejte pár informací do naší hypoteční kalkulačky a hned si prohlédněte výsledek.

Kupní cena nemovitosti

21 900 000 Kč

Výše hypotéky

Doba splácení

Vypočítaná měsíční splátka

Úroková sazba 3.6%

260 990 Kč

Hypotéku zařídíme za vás

Ušetřete svůj čas i nervy. Naši makléři zařídí veškeré papírování a dovedou vás až k úspěšnému podpisu smlouvy v bance.

Nechte nám kontakt, náš makléř se v pracovní dny ozve do 24 hodin

* – toto pole je nutné vyplnit
Michaela Longa
RE/MAX Harmony
Na Pankráci 808/20
Praha 4 - Nusle, 14000
Česká republika
Tel. na makléře: +420 777 665 680
Tel. do kanceláře: +420 241 410 140
E-mail: michaela.longa@re-max.cz

Potřebujete poradit/máte zájem o prohlídku?

* – toto pole je nutné vyplnit

Podrobné informace

Číslo zakázky:
ID 022-NP02878
Číslo podlaží:
5
Počet podlaží v objektu:
5
Podlahová plocha:
160 m²
Druh objektu:
Smíšená
Stav objektu:
Velmi dobrý
Vlastnictví:
Osobní
Typ nemovitosti:
Byty
Charakter okolní zástavby:
Obytná
K nastěhování:
24. 11. 2025
Odpad:
Kanalizace
Užitná plocha:
135 m²
Zastavěná plocha:
331 m²
Plyn:
Plynovod
Umístění objektu:
Klidná část obce
Voda:
Dálkový rozvod
Energetická náročnost budovy:
E