Translate with 
MENU ZAVŘÍT

Pronájem bytu 4+kk v osobním vlastnictví 104 m², Úhonice (ID 218-NP06786)

ulice Otakara Kádnera, Úhonice mapa

33 000 Kč ( za měsíc)
BVelmi
úsporná

kk
4x
104 m2
2/3
Exkluzivně

Pronájem bytu 4+kk, 104 m2, Úhonice, Praha - západ

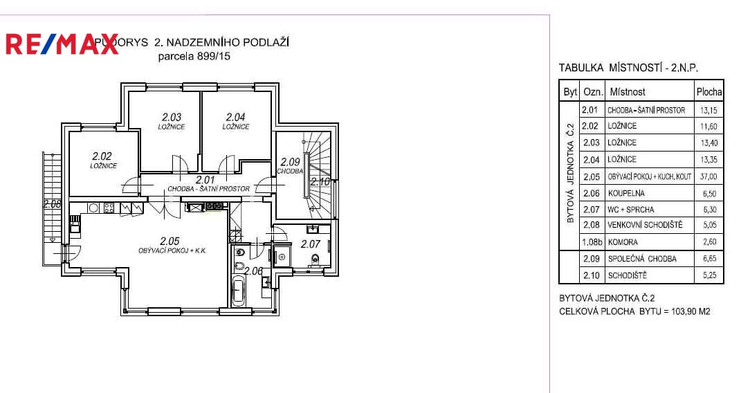
K pronájmu nabízíme zcela nový byt 4+kk, který se nachází v 1. patře domu se třemi bytovými jednotkami.
Dominantou tohoto bytu je prostorný obývací pokoj s kuchyňským koutem a linkou včetně spotřebičů. Z této místnosti je vstup po venkovním schodišti na cca 240 m2 velkou zahradu, náležející k tomuto bytu.
Dále zde nalezneme tři samostatné ložnice a dvě koupelny s podlahovým vytápěním. Byt bude částečně vybaven.
Vytápění zajišťuje tepelné čerpadlo, podlahy jsou vinylové, okna plastová, součástí je též klimatizace. K bytu náleží komora v přízemí domu.
Parkování zajištěno na oploceném pozemku.
Jedná se o klidné a hezké místo s dobrou dopravní dostupností do Prahy.
Doporučujeme!
Cena:
33 000 CZK / za měsíc
Poznámka k ceně:
+ poplatky
Upozornění:
Pronajímající si vyhrazuje právo vybrat nájemce na základě jím zvolených kritérií.
Kristýna Řezáčová
RE/MAX Anděl
Ostrovského 253/3
Praha 5 - Smíchov, 15000
Česká republika
Tel. na makléře: +420 725 293 026
Tel. do kanceláře: +420 725 293 030
E-mail: kristyna.rezacova@re-max.cz

Potřebujete poradit/máte zájem o prohlídku?

* – toto pole je nutné vyplnit

Podrobné informace

Číslo zakázky:
ID 218-NP06786
Dispozice:
4+kk
Číslo podlaží:
2
Počet podlaží v objektu:
3
Podlahová plocha:
104 m²
Druh objektu:
Cihlová
Stav objektu:
Novostavba
Vlastnictví:
Osobní
Typ nemovitosti:
Byty
Charakter okolní zástavby:
Obytná
K nastěhování:
17. 12. 2025
Doprava:
Silnice, MHD, Autobus
Odpad:
Kanalizace
Užitná plocha:
111 m²
Plocha zahrady:
240 m²
Zastavěná plocha:
144 m²
Počet parkovacích míst:
2
Umístění objektu:
Klidná část obce
Voda:
Zdroj pro celý objekt
Energetická náročnost budovy:
B