Translate with 
MENU ZAVŘÍT

Prodej bytu 3+kk v osobním vlastnictví 124 m², Praha 3 - Žižkov (ID 205-NP12270)

ulice Hartigova, Praha 3 – Žižkov mapa

15 880 000 Kč ( za nemovitost)
GMimořádně
nehospodárná

kk
3x
124 m2
2/5
Exkluzivně

Prostorný byt 3+kk, 123,8 m² – Hartigova 155/4, Praha 3 – Žižkov

Nabízíme k prodeji výjimečně prostorný byt 3+kk o ploše 123,8 m² se dvěma balkóny, umístěný v cihlovém domě s výtahem, v klidné části Žižkova na adrese Hartigova 155/4, Praha 3. Byt se nachází ve 2. nadzemním podlaží z pěti a prošel celkovou rekonstrukcí. Spojuje velkorysý interiér, možnost rozdělení na dvě jednotky a skvělou dostupnost do centra Prahy. Ideální volba pro rodinné bydlení i investici.
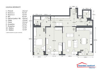
Dispozice
Byt disponuje prostornou předsíní (23,2 m²), která navazuje na obývací pokoj s kuchyňským koutem (43,6 m²). Dvě ložnice mají velikost 23,3 m² a 15,6 m². Součástí jsou dvě koupelny (3,8 m² a 5,6 m²), samostatné WC (1,9 m²) a dvě komory (0,6 m² a 4,0 m²). Dva balkóny (každý 1,6 m²) jsou orientovány do ulice.
Hlavní výhody
• byt po celkové rekonstrukci
• možnost rozdělení na dvě bytové jednotky (stoupačky na obou stranách, velká komora)
• cihlový dům s výtahem a příjemným posezením ve vnitrobloku
• vlastní plynový kotel pro celý dům
• pravidelný příjem z pronájmu nebytového prostoru (9.000 Kč/rok do fondu oprav)
Lokalita
Žižkov je vyhledávaná čtvrť s nezaměnitelnou atmosférou, plná kaváren, restaurací, bister a kulturních podniků. V pěší vzdálenosti se nacházejí parky Riegrovy sady, Parukářka a Vítkov. Metro Flora a Želivského i tramvajové a autobusové zastávky zajistí skvělou dopravní dostupnost. Nakupování i kino IMAX nabízí nedaleké OC Atrium Flora.
Technický stav
• rekonstrukce domu v roce 2008 (stoupačky)
• byt po kompletní rekonstrukci: nové rozvody vody v plastu, elektroinstalace v mědi, dřevěná dvojskla
Náklady na bydlení
• přibližně 9.500 Kč/měsíc (fond oprav, topení, voda)
• elektřina 1.400 Kč/měsíc
Byt, který nabízí prostor, styl i skvělou adresu. Ozvěte se mi a uvidíte sami.
Cena:
15 880 000 CZK / za nemovitost
Poznámka k ceně:
Včetně provize a právních služeb
Upozornění:
Prodávající si vyhrazuje právo vybrat kupujícího na základě jím zvolených kritérií.
RX finance

Spočítejte si splátku hypotéky

Na kolik vás vyjde pořízení vlastního bydlení? Zadejte pár informací do naší hypoteční kalkulačky a hned si prohlédněte výsledek.

Kupní cena nemovitosti

15 880 000 Kč

Výše hypotéky

Doba splácení

Vypočítaná měsíční splátka

Úroková sazba 3.6%

260 990 Kč

Hypotéku zařídíme za vás

Ušetřete svůj čas i nervy. Naši makléři zařídí veškeré papírování a dovedou vás až k úspěšnému podpisu smlouvy v bance.

Nechte nám kontakt, náš makléř se v pracovní dny ozve do 24 hodin

* – toto pole je nutné vyplnit
Igor Bak
RE/MAX Alfa
Spálená 97/29
Praha 1 - Nové Město, 11000
Česká republika
Tel. na makléře: +420 702 222 666
Tel. do kanceláře: +420 296 240 400
E-mail: igor.bak@re-max.cz

Potřebujete poradit/máte zájem o prohlídku?

* – toto pole je nutné vyplnit

Podrobné informace

Číslo zakázky:
ID 205-NP12270
Dispozice:
3+kk
Číslo podlaží:
2
Počet podlaží v objektu:
5
Podlahová plocha:
124 m²
Druh objektu:
Cihlová
Stav objektu:
Velmi dobrý
Vlastnictví:
Osobní
Typ nemovitosti:
Byty
Charakter okolní zástavby:
Obytná
K nastěhování:
26. 8. 2025
Doprava:
Silnice, MHD, Autobus
Elektřina:
230 V
Odpad:
Kanalizace
Užitná plocha:
121 m²
Plocha zahrady:
204 m²
Zastavěná plocha:
303 m²
Plyn:
Plynovod
Telekomunikace:
Telefon, Internet
Umístění objektu:
Centrum obce
Voda:
Dálkový rozvod
Vybaveno:
Ano
Výtah:
Ano
Energetická náročnost budovy:
G