Translate with 
MENU ZAVŘÍT

Prodej bytu 3+kk v osobním vlastnictví 69 m², Otnice (ID 277-NP00456)

Otnice, okres Vyškov mapa

6 390 000 Kč ( za nemovitost)
AMimořádně
úsporná

kk
3x
69 m2
2/0
Exkluzivně

Prodej bytu 3kk, 69 m² – novostavba, Otnice

Ve výhradním zastoupení majitele vám nabízím bytovou jednotku v novostavbě projektu Byty Otnice. V rámci projektu je k dispozici více bytových jednotek různých dispozic.

Základní popis bytu
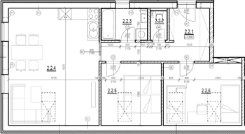
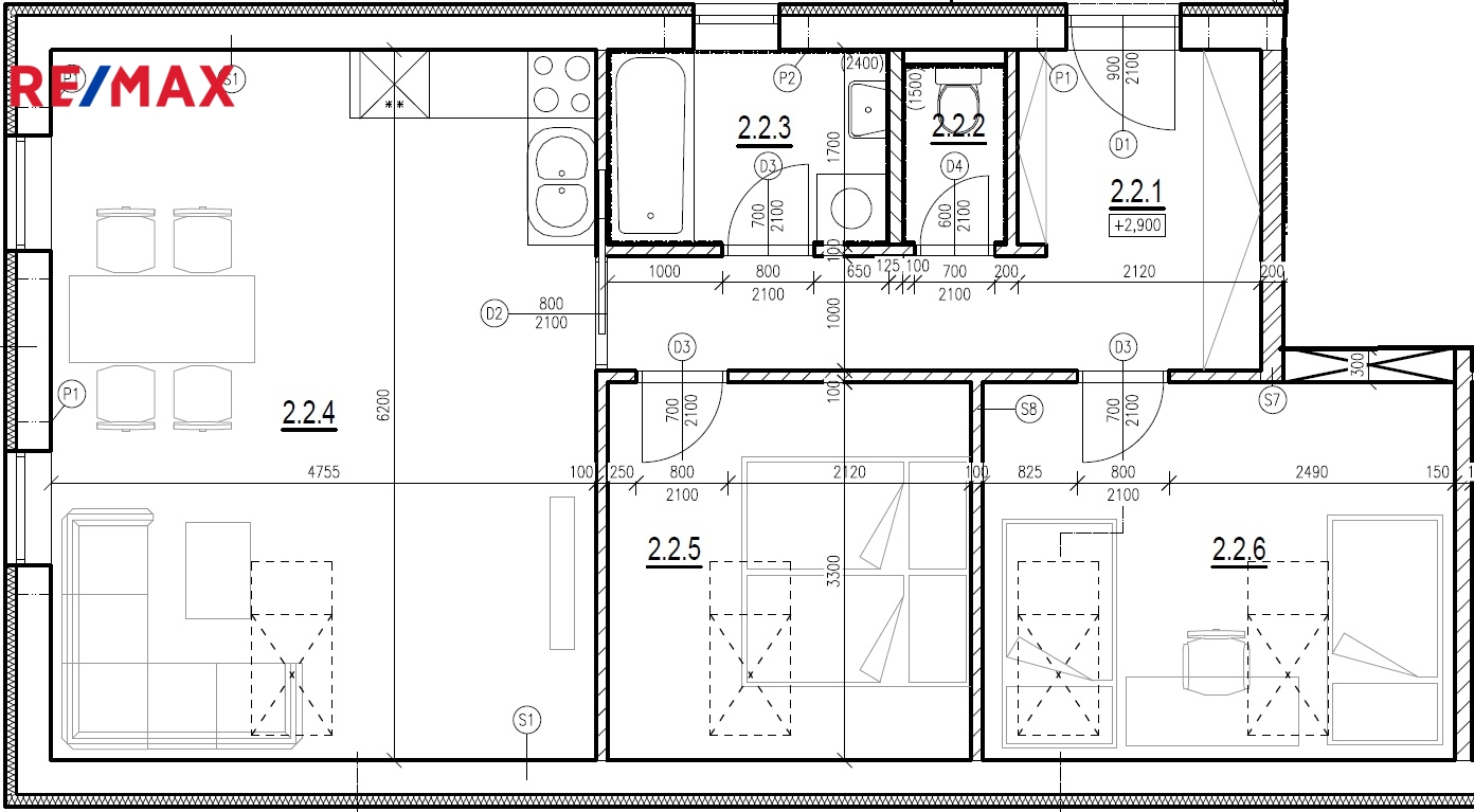
Nabízený byt o dispozici 3kk a výměře 69 m² se nachází v podkroví rodinného domu. Dispozice bytu nabízí obývací pokoj s kuchyňským koutem, dvě samostatné ložnice, koupelnu a samostatné WC. Byt je světlý, vzdušný a díky podkrovnímu umístění nabízí příjemnou atmosféru bydlení. Navíc je zde možnost možnost přístupu do půdního prostoru s využitím jako úložný prostor.
Byt je navržen s důrazem na komfort a praktické využití prostoru a je vhodný jak pro rodinné bydlení, tak i jako investiční příležitost.

Technické parametry
• novostavba zděného domu z tvárnic Porotherm
• jedno nadzemní podlaží a podkroví
• plastová okna v odstínu světlého dřeva s 3D špaletou
• podlahové vytápění v celém bytě
• centrální zdroj tepla a TUV – tepelné čerpadlo (vzduch/voda)
• energetická třída A – velmi úsporná
• napojení na veřejný vodovod, kanalizaci a elektřinu
• 1x parkovací místo

Zařízení a vybavení
• kompletně dokončená koupelna včetně zařizovacích předmětů
• samostatné WC
• laminátové podlahy v obytných místnostech
• interiérové dveře s obložkami
• kuchyňská linka a svítidla nejsou součástí – možnost realizace dle vlastních představ

Uvedené fotografie jsou vizualizace.
Termín kolaudace 4/2026.

Lokalita
Nemovitost se nachází v centru obce Otnice, v klidné zástavbě rodinných domů s dobrou dostupností a základní občanskou vybaveností v dosahu.

Závěr
Pro více informací nebo sjednání osobní prohlídky mě neváhejte kontaktovat. Rád vám představím tento byt i další jednotky v rámci projektu.
Cena:
6 390 000 CZK / za nemovitost
Poznámka k ceně:
včetně provize a právních služeb
Upozornění:
Prodávající si vyhrazuje právo vybrat kupujícího na základě jím zvolených kritérií.
RX finance

Spočítejte si splátku hypotéky

Na kolik vás vyjde pořízení vlastního bydlení? Zadejte pár informací do naší hypoteční kalkulačky a hned si prohlédněte výsledek.

Kupní cena nemovitosti

6 390 000 Kč

Výše hypotéky

Doba splácení

Vypočítaná měsíční splátka

Úroková sazba 3.6%

260 990 Kč

Hypotéku zařídíme za vás

Ušetřete svůj čas i nervy. Naši makléři zařídí veškeré papírování a dovedou vás až k úspěšnému podpisu smlouvy v bance.

Nechte nám kontakt, náš makléř se v pracovní dny ozve do 24 hodin

* – toto pole je nutné vyplnit
Bc. Petr Novotný
RE/MAX Permanentia
Střední 622/34a
Brno, 61200
Česká republika
Tel. na makléře: +420 728 249 964
Tel. do kanceláře: +420 603 260 651
E-mail: petr.novotny@re-max.cz

Potřebujete poradit/máte zájem o prohlídku?

* – toto pole je nutné vyplnit

Podrobné informace

Číslo zakázky:
ID 277-NP00456
Dispozice:
3+kk
Číslo podlaží:
2
Podlahová plocha:
69 m²
Druh objektu:
Cihlová
Stav objektu:
Novostavba
Vlastnictví:
Osobní
Typ nemovitosti:
Byty
Doprava:
Autobus
Elektřina:
400 V
Odpad:
Kanalizace
Užitná plocha:
69 m²
Počet parkovacích míst:
1
Voda:
Dálkový rozvod
Energetická náročnost budovy:
A