Translate with 
MENU ZAVŘÍT

Prodej bytu 1+kk v osobním vlastnictví 52 m², Nymburk (ID 059-NP07782)

ulice Letců R. A. F., Nymburk mapa

3 550 000 Kč ( za nemovitost)
BVelmi
úsporná

kk
1x
52 m2
1/11
Exkluzivně

Prodej bytu 1+1 se zasklenou lodžií v osobním vlastnictví, Nymburk

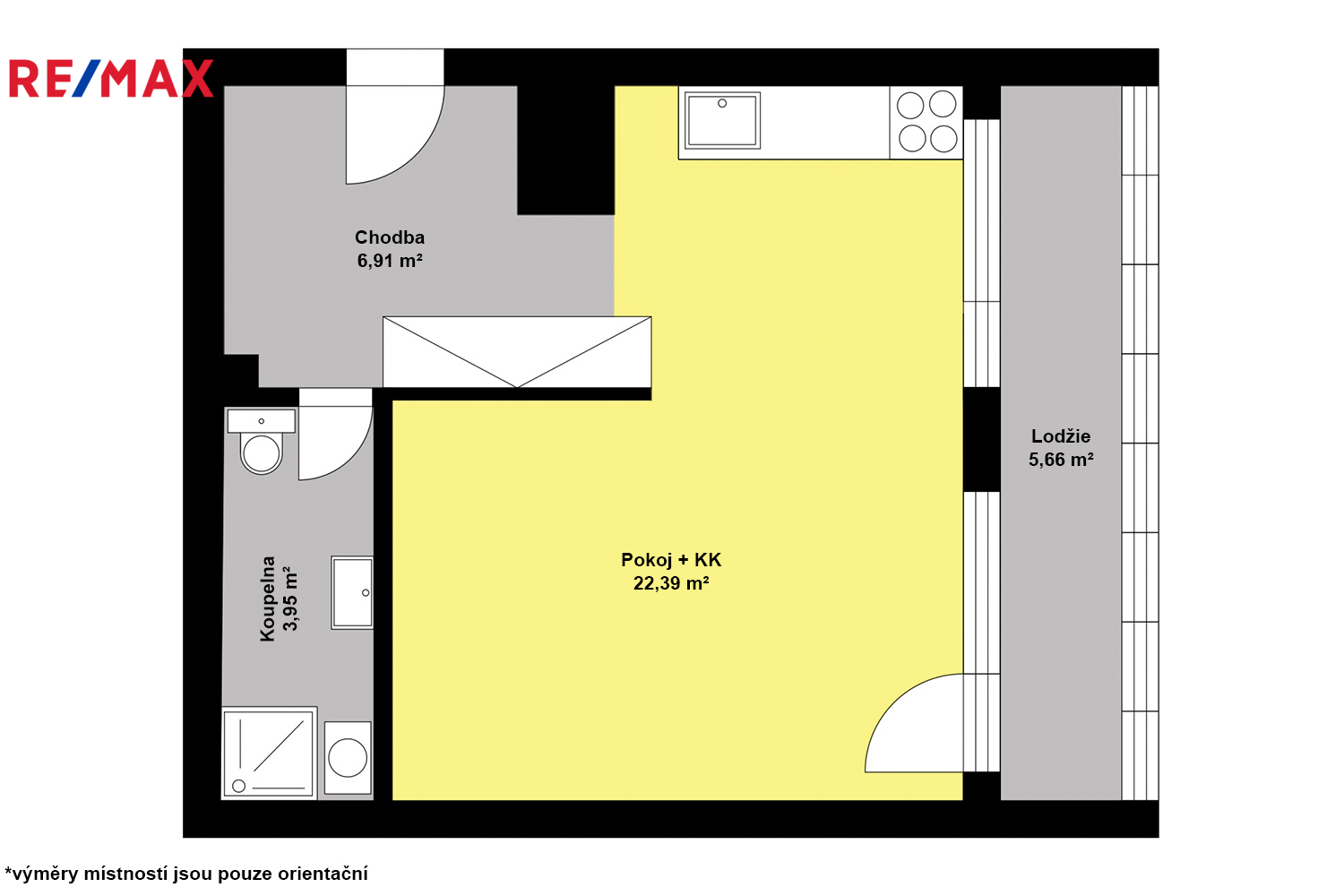
Dovoluji si Vám nabídnout prodej bytu 1+1 se zasklenou lodžií, v ulici Letců R.A.F. v Nymburce. Bytová jednotka má celkovou užitnou plochu 40,77 m2 včetně lodžie a nachází se v 1. nadzemním podlaží (zvýšeném přízemí) panelového domu s výtahem. Dispozice bytu: předsíň (6,25 m2), obývací pokoj (14,80 m2) s kuchyní (9,10 m2), lodžie (6,72 m2), koupelna se sprchovým koutem a toaletou (3,90 m2). Byt má plastová okna se žaluziemi. Podlaha PVC, keramická dlažba. K bytu náleží prostorný zděný sklep o velikosti 11,50 m2. Dále je v domě k dispozici kolárna a sušárna. Dům je zateplený a nachází se na revitalizovaném sídlišti plném zeleně. V těsné blízkosti je veškerá občanská vybavenost (zastávka MHD, základní škola, mateřské školy, dětská hřiště, obchody s potravinami, poliklinika, restaurace a další). V okolí domu je dostatek parkovacích míst. Nemovitost není nijak zatížena a lze ji financovat hypotékou, kterou Vám ráda pomohu za výhodných podmínek zařídit.
Pro další informace, nebo při zájmu o prohlídku mne kontaktujte, ráda Vám nemovitost představím.
Cena:
3 550 000 CZK / za nemovitost
Poznámka k ceně:
Včetně provize a právních služeb
Upozornění:
Prodávající si vyhrazuje právo vybrat kupujícího na základě jím zvolených kritérií.
RX finance

Spočítejte si splátku hypotéky

Na kolik vás vyjde pořízení vlastního bydlení? Zadejte pár informací do naší hypoteční kalkulačky a hned si prohlédněte výsledek.

Kupní cena nemovitosti

3 550 000 Kč

Výše hypotéky

Doba splácení

Vypočítaná měsíční splátka

Úroková sazba 3.6%

260 990 Kč

Hypotéku zařídíme za vás

Ušetřete svůj čas i nervy. Naši makléři zařídí veškeré papírování a dovedou vás až k úspěšnému podpisu smlouvy v bance.

Nechte nám kontakt, náš makléř se v pracovní dny ozve do 24 hodin

* – toto pole je nutné vyplnit
Markéta Langweil
RE/MAX G8 Reality 4
Václavská 864
Kolín, 28002
Česká republika
Tel. na makléře: +420 775 628 782
Tel. do kanceláře: +420 603 392 333
E-mail: marketa.langweil@re-max.cz

Potřebujete poradit/máte zájem o prohlídku?

* – toto pole je nutné vyplnit

Podrobné informace

Číslo zakázky:
ID 059-NP07782
Dispozice:
1+kk
Číslo podlaží:
1
Počet podlaží v objektu:
11
Podlahová plocha:
52 m²
Druh objektu:
Panelová
Stav objektu:
Velmi dobrý
Vlastnictví:
Osobní
Typ nemovitosti:
Byty
K nastěhování:
20. 12. 2025
Elektřina:
230 V
Odpad:
Kanalizace
Užitná plocha:
41 m²
Počet podlaží pod zemí:
1
Umístění objektu:
Sídliště
Voda:
Dálkový rozvod
Vybaveno:
Ano
Výtah:
Ano
Energetická náročnost budovy:
B
Měrná vypočtená roční spotřeba energie v kWh/m²/rok:
79