Translate with 
MENU ZAVŘÍT

Prodej pozemku 697 m², Praha 9 - Horní Počernice (ID 201-NP03314)

ulice U Zimoviště, Praha 9 – Horní Počernice mapa

10 600 000 Kč ( za nemovitost)

697 m2
Exkluzivně

Stavební pozemek 697 m² se základy a sítěmi – Praha, Horní Počernice

Stavební pozemek 697 m² se základy a sítěmi – Praha, Horní Počernice

Nabízíme ke koupi stavební pozemek o výměře 697 m² (cca 24 × 29 m) v klidné a velmi žádané části Prahy – Horní Počernice. Pozemek je kompletně zasíťovaný, má hotové základové práce a je připraven k okamžité výstavbě rodinného domu.

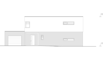
Součástí nabídky je možnost převzetí hotového projektu moderního dvoupodlažního RD s garáží a rovnou střechou, případně realizace vlastního projektu.

Inženýrské sítě – vše dokončeno a zkolaudováno:
Elektřina – zděný pilíř, elektroměr, 3 fázový jistič 32 A (PRE), stavební rozvaděč
Voda – městský vodovod, osazený vodoměr (PVK)
Plyn – zděný pilíř s plynoměrem
Kanalizace – připravená kanalizační šachta

Hotové základové práce:
- odstranění skrývky a vytyčení stavby
- výkopy pro základové pasy (hl. 130–140 cm)
- provedené prostupy pro veškeré rozvody
- osazené zemnící pásky
- vylito cca 42 m³ betonu
- dokončen archeologický posudek
- geodetické zaměření pro základovou desku
- zemina uložena na pozemku pro budoucí terénní úpravy

Projekt rodinného domu – v ceně
Moderní dvoupodlažní rodinný dům s garáží a rovnou střechou, situovaný v přední části pozemku.

1. NP – denní zóna
- obývací pokoj s kuchyní a vstupem na terasu a zahradu
- pracovna / pokoj pro hosty
- koupelna
- technická místnost
- zádveří s přímým vstupem do garáže

2. NP – klidová část
- ložnice s vlastní šatnou
- dva dětské pokoje
- koupelna
- samostatné WC

Hlavní výhody
prestižní a klidná lokalita Prahy
- okamžitá možnost stavby bez čekání na sítě
- ideální pro vlastní bydlení i investici
- kompletní občanská vybavenost v místě
- výborná dostupnost do centra Prahy

Všechny podklady včetně předběžné informace vám rádi poskytneme.
Prodávající si vyhrazuje právo vybrat kupujícího dle vlastních kritérií.
Cena:
10 600 000 CZK / za nemovitost
Poznámka k ceně:
Upozornění:
Prodávající si vyhrazuje právo vybrat kupujícího na základě jím zvolených kritérií.
RX finance

Spočítejte si splátku hypotéky

Na kolik vás vyjde pořízení vlastního bydlení? Zadejte pár informací do naší hypoteční kalkulačky a hned si prohlédněte výsledek.

Kupní cena nemovitosti

10 600 000 Kč

Výše hypotéky

Doba splácení

Vypočítaná měsíční splátka

Úroková sazba 3.6%

260 990 Kč

Hypotéku zařídíme za vás

Ušetřete svůj čas i nervy. Naši makléři zařídí veškeré papírování a dovedou vás až k úspěšnému podpisu smlouvy v bance.

Nechte nám kontakt, náš makléř se v pracovní dny ozve do 24 hodin

* – toto pole je nutné vyplnit
Marek Vlach
RE/MAX Atrium
Podolská 811/138
Praha 4 - Podolí, 14700
Česká republika
Tel. na makléře: +420 777 262 546
Tel. do kanceláře: +420 606 726 515
E-mail: marek.vlach@re-max.cz

Potřebujete poradit/máte zájem o prohlídku?

* – toto pole je nutné vyplnit

Podrobné informace

Číslo zakázky:
ID 201-NP03314
Druh pozemku:
Pro bydlení
Celková plocha:
697 m²
Inženýrské sítě:
Vodovod, Kanalizace, Plyn, Elektřina
Typ nemovitosti:
Pozemky
K nastěhování:
22. 1. 2026
Doprava:
Vlak, Dálnice, Silnice, Autobus
Elektřina:
230 V
Odpad:
Kanalizace
Plyn:
Plynovod
Umístění objektu:
Klidná část obce