Translate with 
MENU ZAVŘÍT

Prodej bytu 3+1 v osobním vlastnictví 79 m², Nymburk (ID 059-NP07779)

ulice Zbožská, Nymburk mapa

5 100 000 Kč ( za nemovitost)
DMéně
úsporná

1x
3x
79 m2
3/8
Exkluzivně Rezervace

Prodej bytu 3+1/L, Nymburk, okr. Nymburk

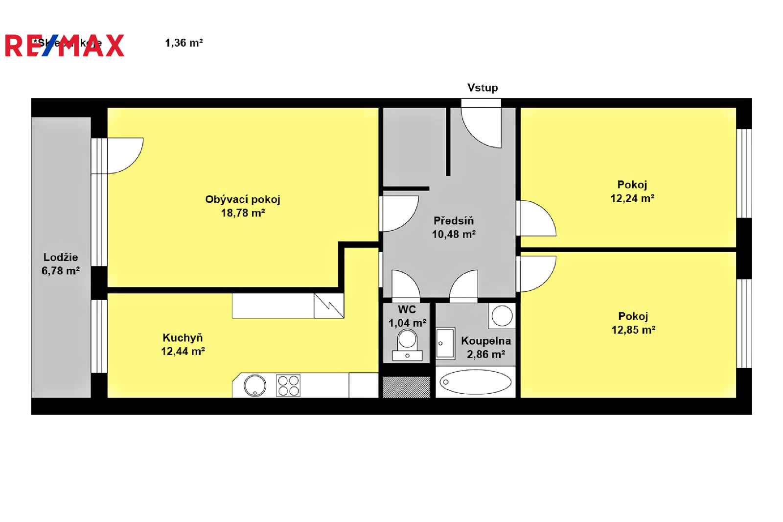
Nabízíme k prodeji prostorný byt 3 + 1 se zasklenou lodžií, který se nachází na adrese Zbožská č. p. 2169 v Nymburce.
Bytová jednotka o celkové ploše 78,83 m² (užitná plocha 70,69 m²) se nachází ve 3. patře osmipodlažního panelového domu, který prošel celkovou revitalizací a je v dobrém stavu.
Součástí bytové jednotky je chodba, kde je efektivně využit prostor, zahrnuje šatnu, tři pokoje, samostatnou kuchyň s jídelním koutem, který je nyní využíván, jako pracovna, dále zděné jádro s novou koupelnou, samostatné WC a zasklenou lodžii, která poskytuje ideální místo pro relaxaci a užívání si výhledu do zeleně.
Byt disponuje centrálním dálkovým vytápěním a ohřevem vody. Budova je napojena na veškeré inženýrské sítě, včetně kanalizace.
K bytové jednotce patří sklep o velikosti 1,36 m² a možnost užívání kolárny/kočárkárny a sušárny.
Celkové měsíční zálohy na služby a energie činí 6.700, Kč.
Veškerá občanská vybavenost s možností využití volného času je v bezprostředním okolí (supermarket, restaurace, bankomat, poliklinika, škola, školka, dětské hřiště, MHD). Centrum města je v dosahu 10 minut.
Díky umístění se tato bytová jednotka stává ideálním místem pro bydlení rodiny s dětmi.
Nymburk je okresní město ve Středočeském kraji, vzdálené 45 km od Prahy, 30 km od Mladé Boleslavi a 25 km od Kolína.

Neváhejte mi zavolat, ráda Vás nemovitostí provedu.
Cena:
5 100 000 CZK / Rezervováno
Poznámka k ceně:
Upozornění:
Prodávající si vyhrazuje právo vybrat kupujícího na základě jím zvolených kritérií.
RX finance

Spočítejte si splátku hypotéky

Na kolik vás vyjde pořízení vlastního bydlení? Zadejte pár informací do naší hypoteční kalkulačky a hned si prohlédněte výsledek.

Kupní cena nemovitosti

5 100 000 Kč

Výše hypotéky

Doba splácení

Vypočítaná měsíční splátka

Úroková sazba 3.6%

260 990 Kč

Hypotéku zařídíme za vás

Ušetřete svůj čas i nervy. Naši makléři zařídí veškeré papírování a dovedou vás až k úspěšnému podpisu smlouvy v bance.

Nechte nám kontakt, náš makléř se v pracovní dny ozve do 24 hodin

* – toto pole je nutné vyplnit
Iva Mizlerová
RE/MAX G8 Reality 4
Václavská 864
Kolín, 28002
Česká republika
Tel. na makléře: +420 736 795 978
Tel. do kanceláře: +420 603 392 333
E-mail: iva.mizlerova@re-max.cz

Potřebujete poradit/máte zájem o prohlídku?

* – toto pole je nutné vyplnit

Podrobné informace

Číslo zakázky:
ID 059-NP07779
Dispozice:
3+1
Číslo podlaží:
3
Počet podlaží v objektu:
8
Podlahová plocha:
79 m²
Druh objektu:
Skeletová
Stav objektu:
Dobrý
Vlastnictví:
Osobní
Typ nemovitosti:
Byty
Charakter okolní zástavby:
Obytná
K nastěhování:
1. 3. 2025
Doprava:
Vlak, Dálnice, Silnice, MHD, Autobus
Elektřina:
230 V
Odpad:
Kanalizace
Ostatní rozvody:
Kabelové rozvody
Užitná plocha:
71 m²
Počet podlaží pod zemí:
1
Telekomunikace:
Internet
Umístění objektu:
Sídliště
Voda:
Dálkový rozvod
Vybaveno:
Ano
Výtah:
Ano
Energetická náročnost budovy:
D
Měrná vypočtená roční spotřeba energie v kWh/m²/rok:
640