Translate with 
MENU ZAVŘÍT

Prodej domu 106 m², Krabčice (ID 273-NP04635)

Krabčice, okres Litoměřice mapa

4 000 000 Kč ( za nemovitost)
GMimořádně
nehospodárná

3x
106 m2
1062 m2
1
Exkluzivně

RD s atmosférou starého statku, 3+1 po částečné rekonstrukci, Krabčice, okr.Litoměřice

V exkluzivním zastoupení majitele nabízíme k prodeji jedinečnou a prostornou nemovitost v obci Krabčice u Roudnice nad Labem. Jedná se o bývalý statek s uzavřeným dvorem, který v sobě snoubí historický charakter s možností vybudování moderního a velkorysého rodinného sídla. Celý pozemek o rozloze 1 062 m² je kompletně oplocen a nachází se v klidném centru obce, což zajišťuje dokonalé soukromí i skvělou dostupnost.
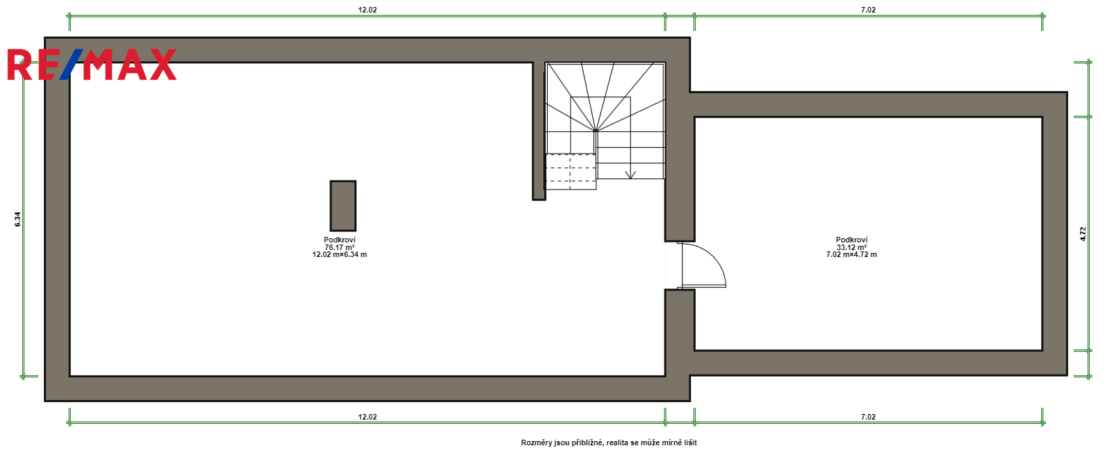
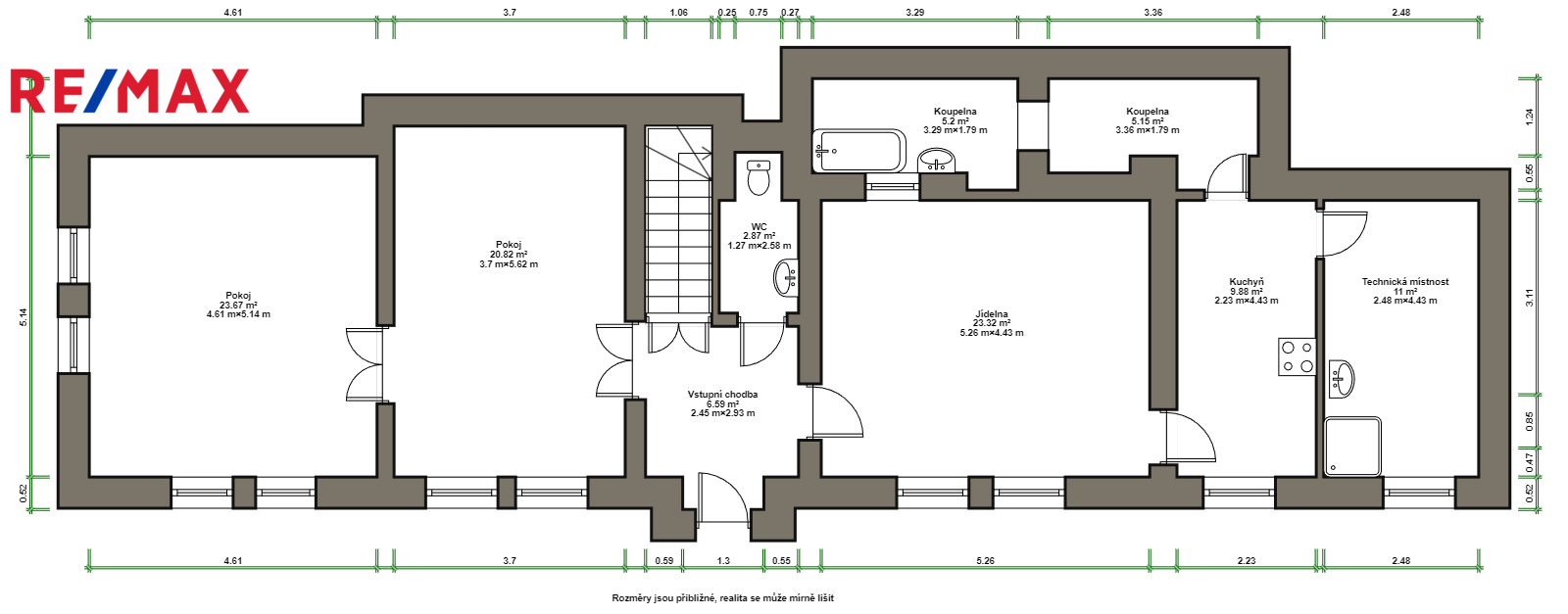
Aktuální obytná dispozice 3+1 o ploše přesahující 105 m² prochází postupnou rekonstrukcí, která budoucím majitelům dává jedinečnou příležitost dokončit si domov podle vlastních představ. Dvě obytné místnosti jsou již zcela dokončeny a připraveny k okamžitému užívání, zatímco jídelna, kuchyně a koupelna jsou v rozpracované fázi. Zásadní investicí již prošla celá obytná část, která se pyšní zcela novou střechou včetně krovu, krytiny a zpevňujících věnců. Tento prostor je přímo připraven pro případnou podkrovní vestavbu, která by plochu bydlení dále výrazně rozšířila.
Na obytný dům plynule navazuje rozsáhlé patrové hospodářské zázemí o délce přes 30m. Tyto prostory jsou ideální pro široké spektrum využití – od dílen, ateliérů a skladů až po možnost podnikání či chovu zvířat. Nemovitost je napojena na kompletní inženýrské sítě, má i vlastní studnu a nabízí tak veškerý komfort pro budoucí moderní bydlení na venkově.

Lokalita Krabčic je se svou polohou na úpatí hory Říp, základní občanskou vybaveností a skvělým spojením s okolím skvělým místem pro bydlení. Roudnice nad Labem je vzdálena pouhých 5 minut jízdy a díky blízkému nájezdu na dálnici D8 se do Prahy pohodlně dostanete za 30 minut. Pokud hledáte nemovitost s duší, kterou si dotvoříte k obrazu svému, tento statek v Krabčicích je pro vás ideální volbou.
Pro více informací a sjednání prohlídky mě neváhejte kontaktovat.
V současnosti pracujeme na videoprohlídce, nafocení a 3D prezentaci nemovitosti, použité fotografie jsou zatím pouze základní. Prohlídky nemovitosti od konce 01/2026.
Cena:
4 000 000 CZK / za nemovitost
Poznámka k ceně:
Upozornění:
Prodávající si vyhrazuje právo vybrat kupujícího na základě jím zvolených kritérií.
RX finance

Spočítejte si splátku hypotéky

Na kolik vás vyjde pořízení vlastního bydlení? Zadejte pár informací do naší hypoteční kalkulačky a hned si prohlédněte výsledek.

Kupní cena nemovitosti

4 000 000 Kč

Výše hypotéky

Doba splácení

Vypočítaná měsíční splátka

Úroková sazba 3.6%

260 990 Kč

Hypotéku zařídíme za vás

Ušetřete svůj čas i nervy. Naši makléři zařídí veškeré papírování a dovedou vás až k úspěšnému podpisu smlouvy v bance.

Nechte nám kontakt, náš makléř se v pracovní dny ozve do 24 hodin

* – toto pole je nutné vyplnit
Michal Broft
RE/MAX Partner
Řeporyjské náměstí 16
Praha 5 - Řeporyje, 15500
Česká republika
Tel. na makléře: +420 605 853 657
Tel. do kanceláře: +420 800 434 434
E-mail: michal.broft@re-max.cz

Potřebujete poradit/máte zájem o prohlídku?

* – toto pole je nutné vyplnit

Podrobné informace

Číslo zakázky:
ID 273-NP04635
Poloha objektu:
Samostatný
Počet podlaží v objektu:
1
Užitná plocha:
106 m²
Plocha parcely:
1 062 m²
Druh objektu:
Cihlová
Typ nemovitosti:
Domy a vily
Charakter okolní zástavby:
Venkovská
Doprava:
Dálnice, Silnice, Autobus
Elektřina:
230 V, 400 V
Odpad:
Kanalizace
Plocha zahrady:
669 m²
Zastavěná plocha:
393 m²
Plyn:
Plynovod
Telekomunikace:
Telefon
Typ domu:
Přízemní
Umístění objektu:
Klidná část obce
Umístění v chráněných lokalitách:
Ochranné pásmo
Voda:
Dálkový rozvod
Energetická náročnost budovy:
G