Translate with 
MENU ZAVŘÍT

Pronájem bytu 3+1 v osobním vlastnictví 81 m², Praha 6 - Vokovice (ID 205-NP12364)

ulice Evropská, Praha 6 – Vokovice mapa

Pronajato
GMimořádně
nehospodárná

1x
3x
81 m2
5/13
Exkluzivně Pronajato

Prostorný, nezařízený byt po rekonstrukci, 3+1, 80,69 m² – Praha 6, Vokovice.

REZERVACE.


→ Prostorný, světlý, nezařízený byt po rekonstrukci.
→ 3 neprůchozí pokoje, z toho 2 se zasklenou lodžií.
→ Dlouhodobý pronájem (1 rok s možností prodloužení).
→ K dispozici IHNED.

→ Nájem: 24.000 Kč / měsíc
→ Poplatky: +5.300 Kč / 2 osoby; +5.780 Kč / 3 osoby; +5.850 Kč / 4 osoby
→ Elektřina se převádí na nájemce.
→ Vratná kauce: 1× měsíční nájem (24.000 Kč)
→ Provize RK: 1× měsíční nájem vč. DPH (29.040 Kč)

V případě zájmu o prohlídku prosím volejte 605 536 942 – S. Macánek nebo 608 180 867 – M. Popenková. We do speak English.

Byt:
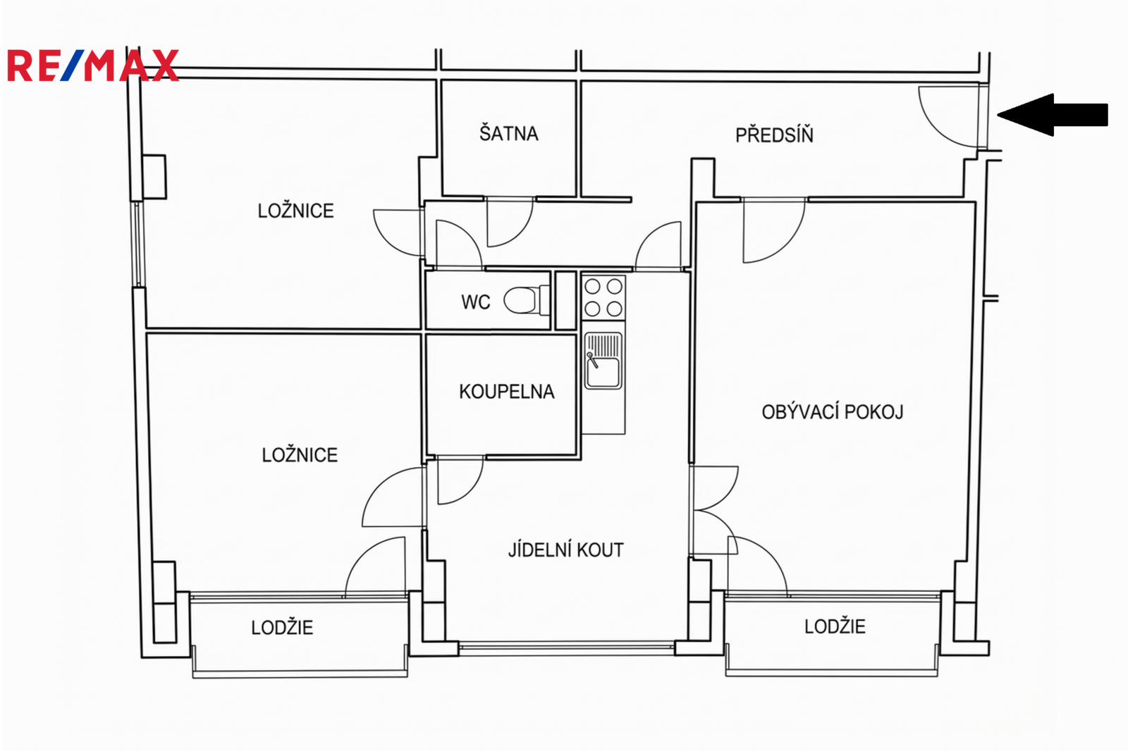
Prostorný, světlý, nezařízený byt po rekonstrukci o dispozici 3+1 a celkové ploše 80,69 m², umístěný v 5. NP panelového domu s výtahem, v dobře dostupné lokalitě Praha 6 – Vokovice, v blízkosti parku Horní Šárka.

Interiér bytu tvoří kompletně vybavená kuchyň s vestavěnými spotřebiči (myčka nádobí, elektrická trouba, sklokeramická varná deska, digestoř), tři neprůchozí pokoje (19,21 m²; 12,21 m²; 12,18 m²), z toho dva pokoje se zasklenou lodžií (2x 2,9 m²), koupelna se sprchovým koutem, samostatná toaleta a prostorná vstupní chodba. Orientace bytu je na JV (2× lodžie) a J (třetí neprůchozí pokoj) s krásným výhledem.

Možnost využívání sklepní kóje je zahrnuta v nájmu. V domě je k dispozici společná kočárkárna/kolárna a je zde zajištěn pravidelný úklid společných prostor.

Lokalita a občanská vybavenost:
Příjemné bydlení s výbornou dostupností do centra města i na letiště a plnou občanskou vybaveností. Přímo před domem se nachází tramvajová zastávka Sídliště Červených Vrch. Stanice metra Bořislavka (linka A) je vzdálena cca 5 minut chůze.

Nájemné a poplatky:
Nájem: 24.000 Kč / měsíc
Poplatky: +5.300 Kč / 2 osoby; +5.780 Kč / 3 osoby; +5.850 Kč / 4 osoby
Elektřina se převádí na nájemce.
Vratná kauce: 1× měsíční nájem (24.000 Kč)
Provize RK: 1× měsíční nájem vč. DPH (29.040 Kč)

Více informací rádi sdělíme na prohlídce bytu nebo telefonicky, Ing. S. Macánek – 605 536 942 nebo Ing. M. Popenková – 608 180 867.


REZERVACE.
Cena:
Pronajato
Poznámka k ceně:
REZERVACE.
Upozornění:
Pronajímající si vyhrazuje právo vybrat nájemce na základě jím zvolených kritérií.
Ing. Martina Popenková
RE/MAX Alfa
Spálená 97/29
Praha 1 - Nové Město, 11000
Česká republika
Tel. na makléře: +420 605 536 942
Tel. do kanceláře: +420 296 240 400
E-mail: martina.popenkova@re-max.cz

Potřebujete poradit/máte zájem o prohlídku?

* – toto pole je nutné vyplnit

Podrobné informace

Číslo zakázky:
ID 205-NP12364
Dispozice:
3+1
Číslo podlaží:
5
Počet podlaží v objektu:
13
Podlahová plocha:
81 m²
Druh objektu:
Smíšená
Stav objektu:
Po rekonstrukci
Vlastnictví:
Osobní
Typ nemovitosti:
Byty
Charakter okolní zástavby:
Obytná
K nastěhování:
5. 1. 2026
Doprava:
Vlak, Dálnice, Silnice, MHD, Autobus
Elektřina:
230 V
Odpad:
Kanalizace
Užitná plocha:
81 m²
Zastavěná plocha:
565 m²
Počet podlaží pod zemí:
1
Umístění objektu:
Centrum obce
Voda:
Dálkový rozvod
Vybaveno:
Ano
Výtah:
Ano
Energetická náročnost budovy:
G