Translate with 
MENU ZAVŘÍT

Prodej domu 93 m², Sazená (ID 201-NP03308)

Sazená, okres Kladno mapa

6 380 000 Kč ( za nemovitost)
GMimořádně
nehospodárná

3x
93 m2
899 m2
1
Exkluzivně

Rodinný dům se zahradou, stodolou, garáží a dílnou - Sazená 102

Hledáte místo, kde se klid vesnického života snoubí s dobrou dostupností do města? Tento dům v obci Sazená, jen pár minut od dálnice D8 a 30 minut od Prahy, vám nabídne nejen pohodlné bydlení, ale i široké možnosti využití - at´už k podnikání, relaxaci nebo jako investici. V okolí najdete lesy, pole, turistické i cyklistické trasy.
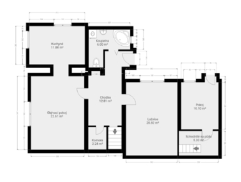
Dům je členěn do 3 částí, o celkové ploše 205 m².
Přízemí nabízí prostorný obývací pokoj, který je propojen s kuchyní. Dále ložnici, koupelnu s WC, praktickou komoru, chodbu a schodiště vedoucí jak na půdu, tak do sklepa. V přízemí je také k dispozici samostatný pokoj, s vlastním vstupem zvenčí, který lze využít jako pracovnu nebo pokoj pro hosty. Nad obytným prostorem se nachází rozlehlá půda, s výškou stropu až 3,5 m. Tento prostor skýtá skvělý potenciál pro rozšíření obytné plochy, at´už formou dalších pokojů, ateliéru, domácí kanceláře nebo jako samostatná jednotka určená k pronájmu. Suterén zahrnuje kotelnu a uhlárnu. Tyto prostory slouží jako technické zázemí domu či praktické skladování.
K nemovitosti dále náleží také stodola, který může sloužit k uskladnění, přestavbě či jako kryté stání pro vozidla, dále samostatná garáž a dílna, která potěší každého kutila nebo může posloužit k drobnému podnikání z domova. Zahrada u domu poskytuje příjemný prostor pro odpočinek, pěstování nebo jako zázemí pro děti.
Dům je ihned k dispozici a připraven na nové majitele, kteří v něm najdou prostor, klid i potenciál.
Z důvodu nedodání energetického štítku uvádíme zatím třídu G (mimořádně nehospodárná).
Cena:
6 380 000 CZK / za nemovitost
Poznámka k ceně:
Upozornění:
Prodávající si vyhrazuje právo vybrat kupujícího na základě jím zvolených kritérií.
RX finance

Spočítejte si splátku hypotéky

Na kolik vás vyjde pořízení vlastního bydlení? Zadejte pár informací do naší hypoteční kalkulačky a hned si prohlédněte výsledek.

Kupní cena nemovitosti

6 380 000 Kč

Výše hypotéky

Doba splácení

Vypočítaná měsíční splátka

Úroková sazba 3.6%

260 990 Kč

Hypotéku zařídíme za vás

Ušetřete svůj čas i nervy. Naši makléři zařídí veškeré papírování a dovedou vás až k úspěšnému podpisu smlouvy v bance.

Nechte nám kontakt, náš makléř se v pracovní dny ozve do 24 hodin

* – toto pole je nutné vyplnit
Kateřina Topolová
RE/MAX Atrium
Podolská 811/138
Praha 4 - Podolí, 14700
Česká republika
Tel. na makléře: +420 724 330 811
Tel. do kanceláře: +420 606 726 515
E-mail: katerina.topolova@re-max.cz

Potřebujete poradit/máte zájem o prohlídku?

* – toto pole je nutné vyplnit

Podrobné informace

Číslo zakázky:
ID 201-NP03308
Poloha objektu:
Řadový
Počet podlaží v objektu:
1
Užitná plocha:
93 m²
Plocha parcely:
899 m²
Druh objektu:
Cihlová
Stav objektu:
Velmi dobrý
Typ nemovitosti:
Domy a vily
Doprava:
Autobus
Elektřina:
230 V
Garáž:
Ano
Odpad:
Kanalizace
Ostatní rozvody:
Ostatní rozvody
Plocha zahrady:
748 m²
Zastavěná plocha:
290 m²
Plyn:
Plynovod
Počet parkovacích míst:
1
Typ domu:
Přízemní
Umístění objektu:
Okraj obce
Voda:
Dálkový rozvod
Vybaveno:
Ano
Energetická náročnost budovy:
G