Translate with 
MENU ZAVŘÍT

Pronájem bytu 3+1 v osobním vlastnictví 67 m², Praha 9 - Prosek (ID 205-NP12379)

ulice Novoborská, Praha 9 – Prosek mapa

25 000 Kč ( za měsíc)
CÚsporná

1x
3x
67 m2
7/7
Exkluzivně

PRONÁJEM bytu 3+1 s lodžií a garážovým stáním, Praha 9 - Prosek (*pozn.plně vybavený)

V zastoupení majitelky bytu nabízím k dlouhodobému pronájmu prostorný byt 3+1 s garážovým stáním v žádané lokalitě Praha 9 – Prosek, s výbornou dostupností MHD a kompletní občanskou vybaveností.

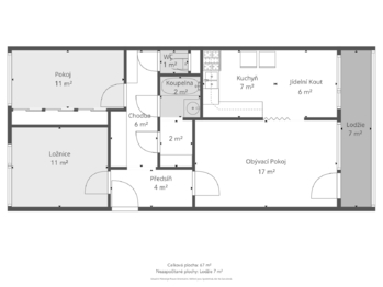
Byt má velmi praktickou dispozici:
- dvě samostatné ložnice
- obývací pokoj
- kuchyň s jídelním koutem
- zasklená lodžie
- koupelna propojená s kosmetickým koutem
- samostatné WC

V předsíni jsou vestavěné skříně a přímo před bytem na chodbě se nachází samostatná komora (spíž).

Byt je pronajímán kompletně vybavený, tak jak je patrné z fotografií – včetně nábytku, spotřebičů a základního domácího vybavení (např. nádobí).

Je vhodný pro zájemce bez domácích mazlíčků, kteří hledají okamžité bydlení bez nutnosti pořizovat vlastní zařízení a přijímají kompletní vybavení bytu.

Lokalita Prosek nabízí skvělou dostupnost do centra města (metro, autobusové spoje). V okolí se nachází obchody, školy, školky, lékárny, poliklinika, restaurace i dostatek zeleně a dětských hřišť.

MHD:
Autobusová zastávka Českolipská

Parkování:
Garážové stání se nachází cca 600 m od domu, v ulici Bechlínská.
– nájem garážového stání: 2 000 Kč/měsíc
– kauce za garážové stání: 4 000 Kč
Přednost budou mít zájemci o pronájem bytu společně s garážovým stáním.

Podmínky pronájmu:
– nájem bytu: 25 000 Kč/měsíc + poplatky 3 050 Kč/měsíc + elektřina a plyn
– nájem garážového stání: 2 000 Kč/měsíc + poplatky 200 Kč/měsíc
– kauce celkem: 54 000 Kč (2 měsíční nájmy)

Provize RK se NEPLATÍ!

K dispozici: ihned

Elektřina a plyn budou po nastěhování přepsány přímo na nájemce.

Pokud vás byt zaujal, ozvěte se mi. Ráda se s vámi setkám na prohlídce bytu.

Vaše rodinná realitní makléřka Gabriela
Cena:
25 000 CZK / za měsíc
Poznámka k ceně:
Uvedený nájem je bez poplatků za služby a energie.
Upozornění:
Pronajímající si vyhrazuje právo vybrat nájemce na základě jím zvolených kritérií.
Mgr. Gabriela Malimánková, MBA
RE/MAX Alfa
Spálená 97/29
Praha 1 - Nové Město, 11000
Česká republika
Tel. na makléře: +420 777 250 124
Tel. do kanceláře: +420 296 240 400
E-mail: gabriela.malimankova@re-max.cz

Potřebujete poradit/máte zájem o prohlídku?

* – toto pole je nutné vyplnit

Podrobné informace

Číslo zakázky:
ID 205-NP12379
Dispozice:
3+1
Číslo podlaží:
7
Počet podlaží v objektu:
7
Podlahová plocha:
67 m²
Druh objektu:
Panelová
Stav objektu:
Velmi dobrý
Vlastnictví:
Osobní
Typ nemovitosti:
Byty
K nastěhování:
12. 1. 2026
Doprava:
Vlak, Dálnice, Silnice, MHD, Autobus
Garáž:
Ano
Odpad:
Kanalizace
Užitná plocha:
67 m²
Zastavěná plocha:
2 221 m²
Plyn:
Plynovod
Telekomunikace:
Internet
Voda:
Dálkový rozvod
Vybaveno:
Ano
Výtah:
Ano
Energetická náročnost budovy:
C