Translate with 
MENU ZAVŘÍT

Pronájem bytu 2+kk v osobním vlastnictví 62 m², Praha 4 - Nusle (ID 201-NP03298)

ulice Kloboučnická, Praha 4 – Nusle mapa

26 000 Kč ( za měsíc)
BVelmi
úsporná

kk
2x
62 m2
2/6
Exkluzivně

Pronájem krásného bytu 2+KK v novostavbě domu, Kloboučnická (Praha)

Hezký den,

toužíte po novém zázemí pro sebe nebo třeba i pro svou drahou polovičku? Tak to pro Vás máme nabídku, která se neodmítá! Na nové nájemníky totiž čeká prostorný byt 2+KK, který se nachází v novostavbě bytového domu a to ve vyhledávaných pražských Nuslích v ulici Kloboučnická.

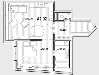
Nemovitost se nachází ve druhém patře objektu, který disponuje výtahem. Při vstupu do bytu se nacházíme v prostorné vstupní hale (9.06 m2). Z ní se dostaneme na toaletu (1.35 m2), nebo dále do obývací místnosti spojené s kuchyňským koutem (25.06 m2). Ten disponuje všemi potřebnými spotřebiči včetně oblíbené myčky a nelze opomenout ani lednici. Vše je zcela nové a Vy tak budete mít možnost započít novou kapitolu svého života jako úplně první nájemníci. Proto Vás jistě potěší i oddělená ložnice (16.84 m2), u které se nachází koupelna (6.3 m2). Ta je dostatečně veliká, aby se do ní vešla pračka a spolu s tím i sušička na prádlo. Dalšími přednostmi bytu, které rozhodně oceníte, jsou venkovní žaluzie, takže v případě touhy po větším soukromí stačí stisknout potřebné tlačítko. A vedle toho pak nelze opomenout ani instalovanou rekuperaci.

Rozmístění jednotlivých místností včetně jejich rozloh je k náhledu v přiloženém půdorysu. Sklepní kóje sice není k dispozici, avšak toto je vykompenzováno štědrými prostory zmiňované vstupní haly, která je dostatečně veliká k umístění nejenom vestavěné skříně, ale třeba i k uschování jízdního kola v případě, že jste vášnivými cyklisty.

Nájemné činí 26.000 Kč. Náklady spojené s bydlením nastavené na jednu osobu jsou podle evidenčního/výpočtového listu nastavené na 1.910 Kč/měsíc/osoba. Měsíční zálohu za elektřinu doporučujeme nastavit na cca 1.500 Kč. Skutečná cena se bude odvíjet od Vaší reálné spotřeby. S převodem elektřiny Vám rádi pomůžeme. Internetové připojení si nájemce zařídí sám.

Lokalita Kloboučnické ulice je ideální pro ty z Vás, kteří mají rádi všechno na dosah ruky. V blízkosti bytu se nachází autobusová zastávka Kloboučnická a tramvajová zastávka Pod Jezerkou. V lokalitě se dále nachází spousta místních podniků, takže o pestré večery opravdu nebudete mít nouzi. V docházkové vzdálenosti se nachází obchod s potravinami Žabka nebo supermarket bonVeno.

Pokud Vás tedy láká představa nového domova, tak se nám, prosím, krátce představte za použití kontaktního formuláře. Všichni zájemci budou postupně obvoláni za účelem domluvení prohlídky. Budeme se na Vás těšit osobně!

Byt je volný k 01.02.2026. Požadujeme vratnou kauci ve výši dvou měsíčních nájmů. Byt se pronajímá s vybavením na fotografiích.

Nájemník neplatí provizi. Ta je hrazena majitelem bytu.

Současná energetická třída dle PENB je „B“.

Majitel si vyhrazuje právo vybrat nájemce podle jím zvolených kritérií.
Cena:
26 000 CZK / za měsíc
Poznámka k ceně:
Nájemník neplatí provizi. Ta je hrazena majitelem bytu.
Upozornění:
Pronajímající si vyhrazuje právo vybrat nájemce na základě jím zvolených kritérií.
Bc. Jindřich Svačina
RE/MAX Atrium
Podolská 811/138
Praha 4 - Podolí, 14700
Česká republika
Tel. na makléře: +420 603 928 019
Tel. do kanceláře: +420 606 726 515
E-mail: jindrich.svacina@re-max.cz

Potřebujete poradit/máte zájem o prohlídku?

* – toto pole je nutné vyplnit

Podrobné informace

Číslo zakázky:
ID 201-NP03298
Dispozice:
2+kk
Číslo podlaží:
2
Počet podlaží v objektu:
6
Podlahová plocha:
62 m²
Druh objektu:
Cihlová
Stav objektu:
Novostavba
Vlastnictví:
Osobní
Typ nemovitosti:
Byty
K nastěhování:
7. 1. 2026
Doprava:
MHD
Elektřina:
230 V
Odpad:
Kanalizace
Užitná plocha:
59 m²
Voda:
Dálkový rozvod
Energetická náročnost budovy:
B