Translate with 
MENU ZAVŘÍT

Prodej bytu 3+1 v osobním vlastnictví 66 m², Brno (ID 273-NP04623)

Brno – městská část Brno-střed mapa

6 990 000 Kč ( za nemovitost)
CÚsporná

1x
3x
66 m2
11/13
Exkluzivně Rezervace

Byt 3+1 s lodžií a skvělým potenciálem - určený k rekonstrukci

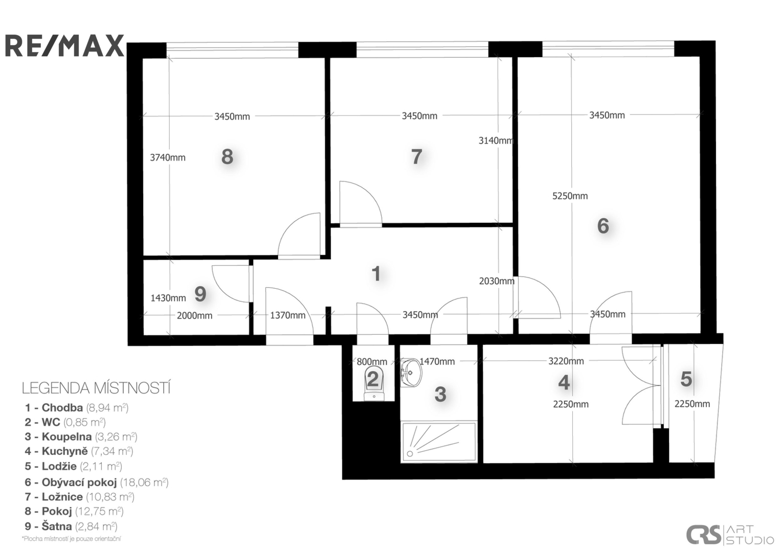
Nabízíme k prodeji byt o dispozici 3+1 s lodžií a sklepem, o celkové užitné ploše 66 m². Byt je určen ke kompletní rekonstrukci, což dává novému majiteli ideální příležitost upravit si bydlení přesně podle vlastních představ. Fotografie v inzerci jsou vizualizace, které znázorňují možnou podobu bytu po rekonstrukci.

Dispozičně je byt řešen tak, že se zde nacházejí dva samostatné pokoje a jeden pokoj je průchozí do kuchyně. Tuto dispozici je však možné jednoduše upravit vybudováním sádrokartonové příčky a vytvořit tak tři neprůchozí pokoje. Kuchyň je samostatná, koupelna je aktuálně průchozí z chodby i z kuchyně, přičemž zazděním průchodu z kuchyně lze získat plně neprůchozí koupelnu. Toaleta je oddělená. Součástí bytu je také praktická šatna a lodžie, která poskytuje příjemný prostor k odpočinku.

Byt se nachází v 11. nadzemním patře z celkových 13 nadzemních pater v bytovém domě s výtahem. Přístup do bytu je bezbariérový. K bytu náleží sklepní kóje. Dům je zateplený, byt je osazen plastovými okny. V roce 2025 byla v domě vybudována nová vlastní tepelná kotelna, což přispívá k efektivnějšímu a úspornějšímu vytápění.

Velkou výhodou je výborná dopravní dostupnost – v blízkosti domu se nachází několik tramvajových linek, které zajišťují rychlé spojení do centra města, kam se dostanete přibližně za 10 minut. Pěšky je centrum města dostupné zhruba do 30 minut. Lokalita zároveň nabízí rychlé napojení na dálnici D1 a D2.

V bezprostředním okolí je veškerá občanská vybavenost – obchody, školy, školky, zdravotnická zařízení i služby.

Byt je vhodný jak pro vlastní bydlení, tak jako investiční příležitost s potenciálem zhodnocení po rekonstrukci.
Cena:
6 990 000 CZK / Rezervováno
Poznámka k ceně:
Upozornění:
Prodávající si vyhrazuje právo vybrat kupujícího na základě jím zvolených kritérií.
RX finance

Spočítejte si splátku hypotéky

Na kolik vás vyjde pořízení vlastního bydlení? Zadejte pár informací do naší hypoteční kalkulačky a hned si prohlédněte výsledek.

Kupní cena nemovitosti

6 990 000 Kč

Výše hypotéky

Doba splácení

Vypočítaná měsíční splátka

Úroková sazba 3.6%

260 990 Kč

Hypotéku zařídíme za vás

Ušetřete svůj čas i nervy. Naši makléři zařídí veškeré papírování a dovedou vás až k úspěšnému podpisu smlouvy v bance.

Nechte nám kontakt, náš makléř se v pracovní dny ozve do 24 hodin

* – toto pole je nutné vyplnit
Ing. Vojtěch Podlipný
RE/MAX Partner
Řeporyjské náměstí 16
Praha 5 - Řeporyje, 15500
Česká republika
Tel. na makléře: +420 777 709 227
Tel. do kanceláře: +420 800 434 434
E-mail: vojtech.podlipny@re-max.cz

Potřebujete poradit/máte zájem o prohlídku?

* – toto pole je nutné vyplnit

Podrobné informace

Číslo zakázky:
ID 273-NP04623
Dispozice:
3+1
Číslo podlaží:
11
Počet podlaží v objektu:
13
Podlahová plocha:
66 m²
Druh objektu:
Panelová
Stav objektu:
Velmi dobrý
Vlastnictví:
Osobní
Typ nemovitosti:
Byty
Bezbariérový byt:
Ano
Charakter okolní zástavby:
Obchodní a obytná
Doprava:
Dálnice, Silnice, MHD, Autobus
Odpad:
Kanalizace
Ostatní rozvody:
Kabelová televize
Užitná plocha:
66 m²
Zastavěná plocha:
362 m²
Plyn:
Plynovod
Umístění objektu:
Klidná část obce
Voda:
Dálkový rozvod
Výtah:
Ano
Energetická náročnost budovy:
C
Měrná vypočtená roční spotřeba energie v kWh/m²/rok:
79