Translate with 
MENU ZAVŘÍT

Prodej domu 110 m², Všechlapy (ID 059-NP07836)

Všechlapy, okres Nymburk mapa

7 000 000 Kč ( za nemovitost)
GMimořádně
nehospodárná

5+
110 m2
660 m2
2
Exkluzivně

Prodej domu 4+1 s garáží, Všechlapy, okr. Nymburk

Exkluzivně Vám nabízíme prodej rodinného domu, který se nachází v klidné lokalitě obce, na adrese Všechlapy č. p. 213, okres Nymburk.
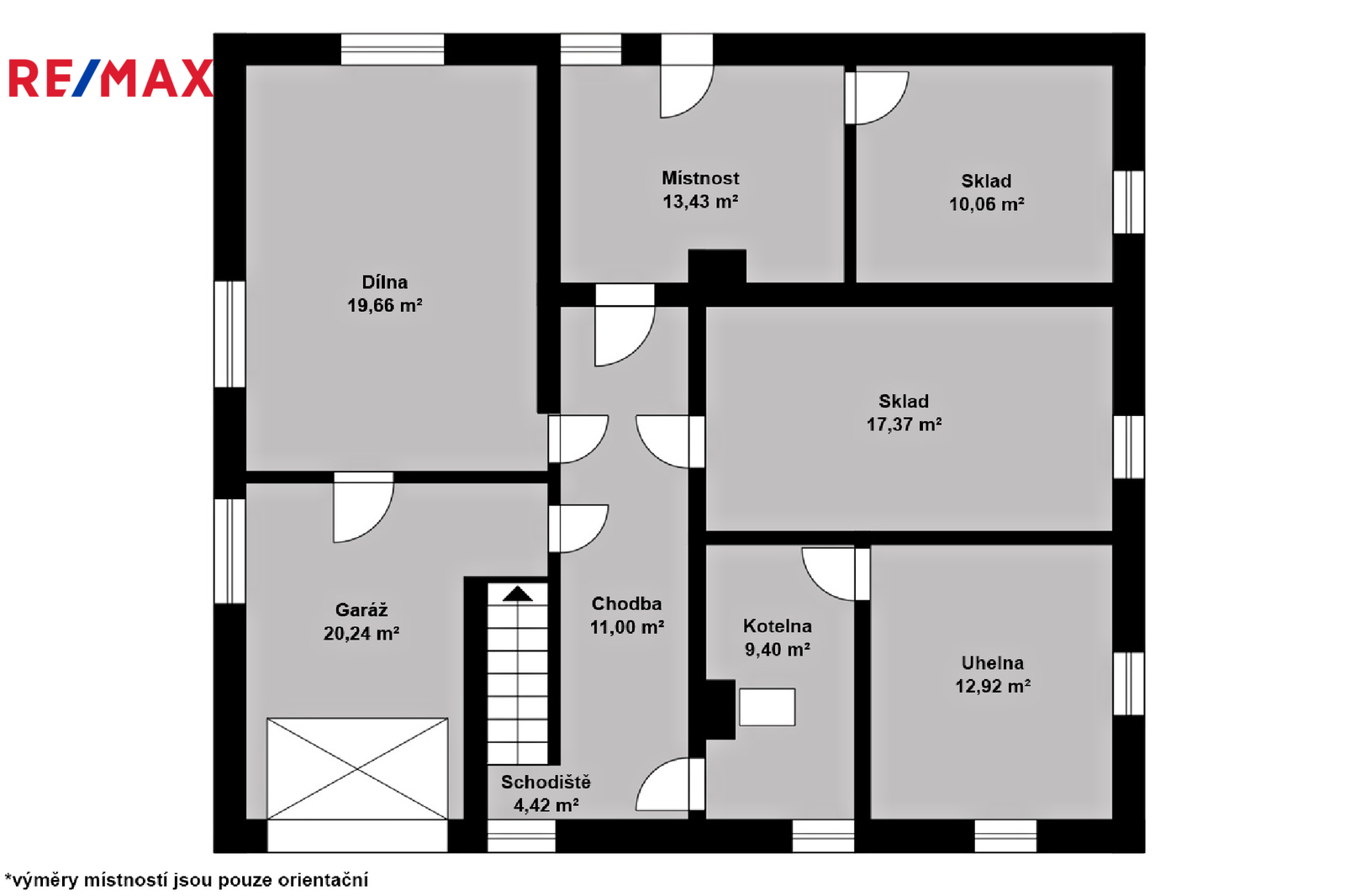
Na oploceném pozemku o celkové výměře 660 m² stojí plně podsklepený rodinný dům 4+1 s garáží. Dům nabízí praktické zázemí v podobě garáže dílny, technické místností a uhelny, dále se na pozemku nalézá skleník, kolna a kopaná studna.
Nemovitost je napojena na el. přípojku 230 V, obecní kanalizaci a vodu z vlastní studny. Vytápění i ohřev vody v bojleru zajišťuje tepelné čerpadlo, v objektu je rovněž kotel na tuhá paliva.
Dům má velký potenciál pro další úpravy dle potřeb nového majitele.
Obec Všechlapy leží ve střední části okresu Nymburk v těsné blízkosti okresního města, kde je veškerá občanská vybavenost, včetně všestranného využití volného času. Přímo v obci je pak mateřská škola, obchody s potravinami, restaurace, fotbalové a dětské hřiště, další obchody a služby.
Obec má skvělou dopravní dostupnost, Mladé Boleslav 30 minut, Praha Černý most 34 minut jízdy. Vlaková zastávka Veleliby vzdálená pouhých 900 m.
V případě, že zájem o koupi nemovitosti projeví více klientů, se bude nemovitost prodávat formou aukce.
Nemovitost lze financovat hypotečním úvěrem, který Vám rádi a výhodně pomůžeme vyřídit.
V případě zájmu o prohlídku nás neváhejte kontaktovat.
Cena:
7 000 000 CZK / za nemovitost
Poznámka k ceně:
Upozornění:
Prodávající si vyhrazuje právo vybrat kupujícího na základě jím zvolených kritérií.
RX finance

Spočítejte si splátku hypotéky

Na kolik vás vyjde pořízení vlastního bydlení? Zadejte pár informací do naší hypoteční kalkulačky a hned si prohlédněte výsledek.

Kupní cena nemovitosti

7 000 000 Kč

Výše hypotéky

Doba splácení

Vypočítaná měsíční splátka

Úroková sazba 3.6%

260 990 Kč

Hypotéku zařídíme za vás

Ušetřete svůj čas i nervy. Naši makléři zařídí veškeré papírování a dovedou vás až k úspěšnému podpisu smlouvy v bance.

Nechte nám kontakt, náš makléř se v pracovní dny ozve do 24 hodin

* – toto pole je nutné vyplnit
Iva Mizlerová
RE/MAX G8 Reality 4
Václavská 864
Kolín, 28002
Česká republika
Tel. na makléře: +420 736 795 978
Tel. do kanceláře: +420 603 392 333
E-mail: iva.mizlerova@re-max.cz

Potřebujete poradit/máte zájem o prohlídku?

* – toto pole je nutné vyplnit

Podrobné informace

Číslo zakázky:
ID 059-NP07836
Poloha objektu:
Samostatný
Počet podlaží v objektu:
2
Užitná plocha:
110 m²
Plocha parcely:
660 m²
Druh objektu:
Cihlová
Stav objektu:
Dobrý
Typ nemovitosti:
Domy a vily
Charakter okolní zástavby:
Obytná
K nastěhování:
20. 3. 2026
Doprava:
Silnice, Autobus
Elektřina:
230 V
Garáž:
Ano
Odpad:
Kanalizace
Plocha zahrady:
498 m²
Zastavěná plocha:
163 m²
Počet podlaží pod zemí:
1
Typ domu:
Patrový
Umístění objektu:
Klidná část obce
Energetická náročnost budovy:
G