Translate with 
MENU ZAVŘÍT

Pronájem bytu 3+kk v osobním vlastnictví 90 m², Český Krumlov (ID 111-NP08640)

Český Krumlov – část obce Vyšný mapa

22 000 Kč ( za měsíc)
CÚsporná

kk
3x
90 m2
1/2

Pronájem 3+kk se zahradou a terasou u lesa – Vyšný, Český Krumlov

Představte si ráno s kávou na terase, ticho lesa za domem a výhled do údolí. Přesně tenhle klid nabízíme v bytě 3+kk (81 m²) v rodinném domě ve Vyšném – pár minut od Českého Krumlova, ale pocitově úplně „mimo město“.

Byt je součástí rodinného domu, má ale vlastní vstup, soukromou zahradu cca 150 m², velkou terasu 26 m² a parkování pro dvě auta. Ideální pro ty, kdo chtějí bydlet komfortně, v soukromí a s přírodou doslova za plotem.

Dispozice a prostor

1. NP:
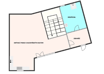
* velkorysý obývací pokoj s kuchyňským koutem (33 m²) a přímým vstupem na terasu
* koupelna se sprchou a WC (10 m²)
* zádveří

2. NP:
* ložnice (16,6 m²)
* druhý pokoj (11 m²)
* koupelna s vanou a WC (4 m²)

Komfort, který je znát:
* tepelné čerpadlo rozvedeno do podlahového topení v celém bytě
* okna s trojskly pro skvělé izolační vlastnosti
* vinylové podlahy
* terasa přístupná rovnou z obývací části (nejlepší místo na léto)

Lokalita – Vyšný
Vyšný je klidná část Českého Krumlova – skvělé, pokud chcete mít město „po ruce“, ale doma mít ticho, soukromí a zeleň. Do Krumlova dojedete rychle, zároveň jste během minuty v přírodě. V lokalitě/okolí je také autobusová zastávka „Český Krumlov, Vyšný, osada“ a jízdní řády MHD jsou dohledatelné na webu města.

Nájemné: 22 000 Kč/měsíc
Zálohy na energie a služby: cca 5 500 Kč/měsíc
Kauce: 44 000 Kč
Provize RK 26 620 Kč.
K nastěhování od: cca 15. 2. 2026

Pokud hledáte bydlení, kde budete mít vzduch, prostor a klid, a přitom nechcete být odříznutí od města, tohle místo vás chytne za srdce.
Cena:
22 000 CZK / za měsíc
Poznámka k ceně:
Upozornění:
Pronajímající si vyhrazuje právo vybrat nájemce na základě jím zvolených kritérií.
Ivana Hájková
RE/MAX Dynamic
Kanovnická 75/4
České Budějovice, 37001
Česká republika
Tel. na makléře: +420 606 627 838
Tel. do kanceláře: +420 725 910 910
E-mail: ivana.hajkova@re-max.cz

Potřebujete poradit/máte zájem o prohlídku?

* – toto pole je nutné vyplnit

Podrobné informace

Číslo zakázky:
ID 111-NP08640
Dispozice:
3+kk
Číslo podlaží:
1
Počet podlaží v objektu:
2
Podlahová plocha:
90 m²
Druh objektu:
Cihlová
Stav objektu:
Velmi dobrý
Vlastnictví:
Osobní
Typ nemovitosti:
Byty
K nastěhování:
15. 2. 2026
Doprava:
Vlak, Autobus
Elektřina:
230 V
Odpad:
Kanalizace
Užitná plocha:
90 m²
Plocha zahrady:
180 m²
Počet parkovacích míst:
2
Voda:
Dálkový rozvod
Energetická náročnost budovy:
C
Měrná vypočtená roční spotřeba energie v kWh/m²/rok:
114