Translate with 
MENU ZAVŘÍT

Prodej bytu 2+1 v osobním vlastnictví 57 m², Adamov (ID 309-NP00482)

ulice Komenského, Adamov mapa

4 490 000 Kč ( za nemovitost)
GMimořádně
nehospodárná

1x
2x
57 m2
6/7
Exkluzivně

Prodej bytu v Adamově (ul. Komenského): prostorný cihlový 2+1 po rekonstrukci, sklep

Nabízím velmi pěkný a rekonstruovaný byt v OV v dispozici 2+1 (ul. Komenského 9). Adamov - město, kde můžete spokojeně žít, vychovávat děti a najít nové přátele.

Dispozice / stav bytu
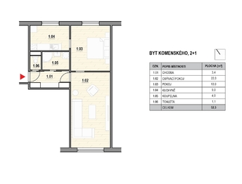
Podlahová plocha bytu je 53 m2, pokoje: 22 m2 a 13 m2, kuchyň 9 m2, předsíň 4 m2. Majitel byt v r.2024 rekonstruoval. Vybudoval zděné jádro, elektro rozvody v mědi (nové jističe), v koupelně je sprchový kout, pračka a sušička Bosch, nové samostatné WC, kuchyňská linka na míru s vestavěnými spotřebiči (indukční deska Electrolux, trouba Mora, digestoř Siemens). V celém bytě jsou podlahy z vinylu (v pokojích původně parkety), plastová okna, k dispozici sklep v suterénu a sklad v přízemí. 2 okna směřují do ulice (směr severovýchod), okno z obývacího pokoje je orientováno do údolí na jihozápad (příjemné vnitřní klima po celý rok). Byt nemá balkon.

Výše měsíčních nákladů je přiměřená velikosti bytu, fixní měsíční náklady jsou ve výši 1.700 Kč, z toho příspěvek na fond oprav je 1.507 Kč. Podrobnější informace o nákladech vám rád sdělím při prohlídce. Možnost napojení na vysokorychlostní internet (100/100 Mb).

Stav domu
Nosná konstrukce domu (postaveno 1965) je betonová, vnitřní příčky jsou z cihel. Dům není zateplený, je po revitalizaci (stoupačky, plastová okna na chodbách, vstupní dveře, opravená střecha), nový výtah (2018), 2 vstupy do domu. V domě jsou k dispozici kolárna a kočárkárna, rozvody na internet a společná TV anténa.

V blízkosti je škola, dětské hřiště, koupaliště. U domu je možnost parkování na ulici, dále je k dispozici kapacitní parkovací dům. Z bytu je krásný výhled na okolní lesy, skvělá příležitost k ranním či večerním vycházkám.

Financování / investiční potenciál
Nákup bytu lze bez problémů financovat hypotečním úvěrem, bezplatné a nezávazné informace na vyžádání u makléře. Na nemovitosti neváznou žádné břemena, zástavy ani dluhy.

Lokalita / okolí
Ve městě jsou kompletní služby (supermarket, pošta, školy, kostel, lékárna, sokolovna). Funguje zde autobusová MHD, vzdálenost do Brna 15 km, vlakem jste za 20 min v centru metropole.

Byt je volný po dohodě. Nabídka slušného bydlení pro jednotlivce, rodinu s dětmi nebo manželský pár.

Přijeďte se podívat, rád vás tudy provedu.

Lednová pranostika praví:
Ryje-li krtek v lednu, končí zima v květnu.
Cena:
4 490 000 CZK / za nemovitost
Poznámka k ceně:
včetně odměny zprostředkovatele
Upozornění:
Prodávající si vyhrazuje právo vybrat kupujícího na základě jím zvolených kritérií.
RX finance

Spočítejte si splátku hypotéky

Na kolik vás vyjde pořízení vlastního bydlení? Zadejte pár informací do naší hypoteční kalkulačky a hned si prohlédněte výsledek.

Kupní cena nemovitosti

4 490 000 Kč

Výše hypotéky

Doba splácení

Vypočítaná měsíční splátka

Úroková sazba 3.6%

260 990 Kč

Hypotéku zařídíme za vás

Ušetřete svůj čas i nervy. Naši makléři zařídí veškeré papírování a dovedou vás až k úspěšnému podpisu smlouvy v bance.

Nechte nám kontakt, náš makléř se v pracovní dny ozve do 24 hodin

* – toto pole je nutné vyplnit
Ing. Karel Hynšt
RE/MAX Alfa 2
Koperníkova 4526/1
Brno, 61500
Česká republika
Tel. na makléře: +420 604 533 466
Tel. do kanceláře: +420 737 265 555
E-mail: karel.hynst@re-max.cz

Potřebujete poradit/máte zájem o prohlídku?

* – toto pole je nutné vyplnit

Podrobné informace

Číslo zakázky:
ID 309-NP00482
Dispozice:
2+1
Číslo podlaží:
6
Počet podlaží v objektu:
7
Podlahová plocha:
57 m²
Druh objektu:
Cihlová
Stav objektu:
Velmi dobrý
Vlastnictví:
Osobní
Typ nemovitosti:
Byty
Bezbariérový byt:
Ano
Odpad:
Kanalizace
Užitná plocha:
55 m²
Zastavěná plocha:
645 m²
Plyn:
Plynovod
Počet podlaží pod zemí:
1
Umístění objektu:
Sídliště
Výtah:
Ano
Energetická náročnost budovy:
G