Translate with 
MENU ZAVŘÍT

Pronájem domu 97 m², Veltruby (ID 059-NP07794)

Veltruby – část obce Hradišťko I mapa

32 000 Kč ( za měsíc)
BVelmi
úsporná

3x
97 m2
298 m2
0
Exkluzivně

Pronájem domu 97 m², Veltruby

Nabízíme k dlouhodobému pronájmu prostorný a moderní rodinný dům "B" v oblíbené lokalitě Hradišťko u Veltrub, jen pár minut od Kolína. Dům je ideální pro rodinu hledající klidné bydlení v blízkosti přírody s výbornou dostupností města.
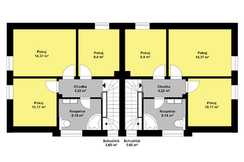
Dům o dispozici 4+kk nabízí užitnou plochu cca 96 m², součástí je terasa a zahrada o velikosti cca 300 m².
Dispozice:
V přízemí se nachází prostorný obývací pokoj propojený s kuchyní a jídelnou se vstupem na terasu, spíž, koupelna se sprchovým koutem a WC, technická místnost a vstupní hala.
V patře jsou tři samostatné pokoje a koupelna s vanou a WC.
Technické informace:
• vytápění kondenzačním kotlem (podlahové vytápění)
• dům je nabízen vybavený / částečně vybavený (dle dohody)
Lokalita:
Velkou výhodou je blízkost pískového jezera (cca 100 m), cyklostezek Kolín–Poděbrady a okolní přírody.
V obci Veltruby je základní i mateřská škola, obecní úřad, lékař a další služby.
Kolín je vzdálen pouhé 3 km, nájezd na D11 (exit 42) cca 10 minut, Praha – Černý Most do 40 minut.

Při nástupu je třeba zaplatit:
Vratná kauce 64 000 Kč
Nájemné 32 000 Kč/měsíc
Provize RK 32 000 Kč

V případě zájmu kontaktujte makléře, který Vás rád touto nemovitostí provede a sdělí bližší informace.
Není interní poznámka.
Cena:
32 000 CZK / za měsíc
Poznámka k ceně:
+ energie, vratná kauce a provize RK
Upozornění:
Pronajímající si vyhrazuje právo vybrat nájemce na základě jím zvolených kritérií.
Luboš Holub
RE/MAX G8 Reality 4
Václavská 864
Kolín, 28002
Česká republika
Tel. na makléře: +420 606 402 668
Tel. do kanceláře: +420 603 392 333
E-mail: lubos.holub@re-max.cz

Potřebujete poradit/máte zájem o prohlídku?

* – toto pole je nutné vyplnit

Podrobné informace

Číslo zakázky:
ID 059-NP07794
Poloha objektu:
Řadový
Užitná plocha:
97 m²
Plocha parcely:
298 m²
Druh objektu:
Cihlová
Stav objektu:
Novostavba
Typ nemovitosti:
Domy a vily
Charakter okolní zástavby:
Obytná
K nastěhování:
15. 2. 2026
Doprava:
Silnice, MHD
Elektřina:
230 V
Odpad:
Kanalizace
Plyn:
Plynovod
Telekomunikace:
Internet
Typ domu:
Patrový
Voda:
Zdroj pro celý objekt
Vybaveno:
Ano
Energetická náročnost budovy:
B
Měrná vypočtená roční spotřeba energie v kWh/m²/rok:
66