Translate with 
MENU ZAVŘÍT

Pronájem bytu 2+kk v osobním vlastnictví 59 m², Kolín (ID 059-NP07795)

ulice Mlýnská, Kolín – část obce Kolín V mapa

15 000 Kč ( za měsíc)
CÚsporná

kk
2x
59 m2
6/8
Exkluzivně

Pronájem bytu v Kolíně 2+kk 59 m² s balkonem

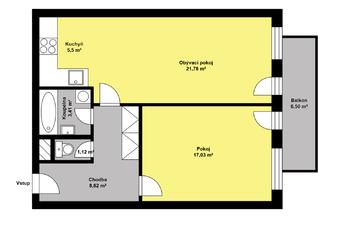
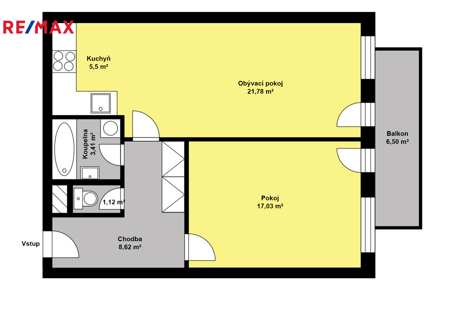
Exkluzivně nabízíme k dlouhodobému pronájmu byt o dispozici 2+kk a výměře 59,14 m². Byt se nachází v 6. nadzemním podlaží z 8NP s výtahem, v klidné lokalitě, v blízkosti centra města, na adrese Mlýnská 1490 Kolín.
Dispozice zahrnuje obývací pokoj 21,78 m² s kuchyňským koutem 5,33 m², přímý vstup na balkon 6,5 m² z obývacího pokoje i ložnice 17,03 m², který je ideální k relaxaci nebo ranní kávě. Balkon je orientován na JZ. Byt má prostornou chodbu 8, 62 m², koupelnu 3,41 m² s vanou, samostatné WC 1,12 m². K bytu náleží sklepní kóje v suterénu bytového domu.
V blízkosti se nachází veškerá občanská vybavenost- obchody, školy, školky, lékaři, zastávky MHD a možnosti volnočasových aktivit v přírodě.
Poplatky bytu: 5 200Kč/měsíc (elektřina, plyn (topení), teplá voda ,studená voda,...(poplatky dle spotřeby nájemníka)
Vratná kauce: 2x měsíční nájem 30 000 Kč
Provize RK 15 000 Kč + DPH
V případě zájmu o prohlídku nebo více informací mě neváhejte kontaktovat.
Majitel si vyhrazuje právo na výběr nájemníka.
Cena:
15 000 CZK / za měsíc
Poznámka k ceně:
nájemné včetně energií + vratná kauce 30 000 Kč + provize RK
Upozornění:
Pronajímající si vyhrazuje právo vybrat nájemce na základě jím zvolených kritérií.
Markéta Mojžíšová
RE/MAX G8 Reality 4
Václavská 864
Kolín, 28002
Česká republika
Tel. na makléře: +420 774 978 093
Tel. do kanceláře: +420 603 392 333
E-mail: marketa.mojzisova@re-max.cz

Potřebujete poradit/máte zájem o prohlídku?

* – toto pole je nutné vyplnit

Podrobné informace

Číslo zakázky:
ID 059-NP07795
Dispozice:
2+kk
Číslo podlaží:
6
Počet podlaží v objektu:
8
Podlahová plocha:
59 m²
Druh objektu:
Cihlová
Stav objektu:
Velmi dobrý
Vlastnictví:
Osobní
Typ nemovitosti:
Byty
Charakter okolní zástavby:
Obytná
K nastěhování:
1. 2. 2026
Doprava:
Vlak, Dálnice, Silnice, MHD, Autobus
Elektřina:
230 V
Odpad:
Kanalizace
Užitná plocha:
57 m²
Plyn:
Plynovod
Počet podlaží pod zemí:
8
Umístění objektu:
Klidná část obce
Voda:
Dálkový rozvod
Energetická náročnost budovy:
C