Translate with 
MENU ZAVŘÍT

Prodej domu 150 m², Mikulášovice (ID 224-NP01469)

Mikulášovice, okres Děčín mapa

2 750 000 Kč ( za nemovitost)
GMimořádně
nehospodárná

5+
150 m2
620 m2
2
Exkluzivně

Historický rodinný dům

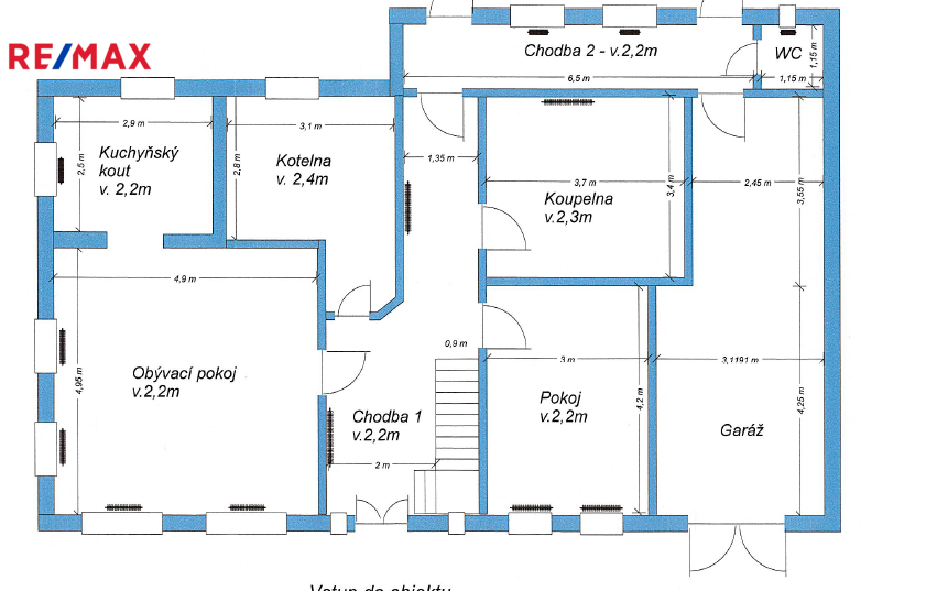
Nabízíme k prodeji starší historický dům z roku 1919 v Mikulášovicích, který si dodnes zachoval svůj charakter a nabízí zajímavý potenciál pro nové využití.

Celková podlahová plocha domu činí 217 m² a velkým benefitem jsou také krásné půdní prostory o výměře přibližně 140 m², které dávají možnost vybudovat další pokoje, pracovnu, ateliér nebo zázemí pro hosty – vše podle vlastních představ a potřeb nového majitele.

Na dům navazuje rovinatý, oplocený pozemek o velikosti 628 m², který je ideální pro rodinné využití, odpočinek na zahradě i drobné pěstování. Příjemné posezení nabízí nová terasa, praktickým bonusem je také garáž.

Dům svým uspořádáním a možnostmi úprav nabízí potenciál i pro dvougenerační bydlení, což může být zajímavým řešením pro širší rodinu, případně pro kombinaci bydlení a podnikání.

Současná dispozice přízemí po úpravách umožní komfortní bydlení ve dvou pokojích se samostatnou kuchyní, koupelnou, WC a technickou místností.
Je však potřeba počítat s tím, že interiér domu je v současné době určen k rozsáhlejší rekonstrukci. Právě to ale může být pro nového majitele velkou příležitostí vytvořit si bydlení přesně podle vlastního vkusu.

Nemovitost je napojena na elektřinu a veřejnou kanalizaci. Ohřev teplé vody zajišťuje elektrický bojler. Vytápění je aktuálně řešeno elektrickými přímotopy a lokálními kamny. Do budoucna bude pravděpodobně vhodné zvážit modernizaci způsobu vytápění dle preferencí nového majitele. Součástí domu je také vlastní studna s pitnou vodou, která přináší větší míru soběstačnosti. Výhodou do budoucna je i možnost kvalitního internetového připojení, což oceníte například při práci z domova.

Mikulášovicemi protéká Mikulášovický potok a samotné město s přibližně 2 000 obyvateli nabízí základní občanskou vybavenost pro běžný život – obchod, školu, školku i autobusovou dopravu, vše bez nutnosti dlouhého dojíždění. Okolní krajina vybízí k výletům, procházkám a aktivnímu odpočinku. V průběhu roku se zde konají také různé kulturní a společenské akce, koncerty a komunitní setkání, které dodávají místu příjemnou atmosféru.

Tato nemovitost je ideální pro někoho, kdo nehledá hotové řešení, ale dům s příběhem a prostorem pro vlastní realizaci.
Pokud hledáte místo s charakterem a potenciálem, právě tady může začít váš nový projekt nebo nový domov.

PENB: V současné době je uvedena energetická třída G (průkaz energetické náročnosti budovy se zpracovává).
Cena:
2 750 000 CZK / za nemovitost
Poznámka k ceně:
Upozornění:
Prodávající si vyhrazuje právo vybrat kupujícího na základě jím zvolených kritérií.
RX finance

Spočítejte si splátku hypotéky

Na kolik vás vyjde pořízení vlastního bydlení? Zadejte pár informací do naší hypoteční kalkulačky a hned si prohlédněte výsledek.

Kupní cena nemovitosti

2 750 000 Kč

Výše hypotéky

Doba splácení

Vypočítaná měsíční splátka

Úroková sazba 3.6%

260 990 Kč

Hypotéku zařídíme za vás

Ušetřete svůj čas i nervy. Naši makléři zařídí veškeré papírování a dovedou vás až k úspěšnému podpisu smlouvy v bance.

Nechte nám kontakt, náš makléř se v pracovní dny ozve do 24 hodin

* – toto pole je nutné vyplnit
Monika Posseltová
RE/MAX Living
Hrnčířská 2456
Česká Lípa, 47001
Česká republika
Tel. na makléře: +420 732 525 866
Tel. do kanceláře: +420 724 477 115
E-mail: monika.posseltova@re-max.cz

Potřebujete poradit/máte zájem o prohlídku?

* – toto pole je nutné vyplnit

Podrobné informace

Číslo zakázky:
ID 224-NP01469
Poloha objektu:
Samostatný
Počet podlaží v objektu:
2
Užitná plocha:
150 m²
Plocha parcely:
620 m²
Druh objektu:
Smíšená
Stav objektu:
Před rekonstrukcí
Typ nemovitosti:
Domy a vily
Charakter okolní zástavby:
Obytná
Doprava:
Silnice, Autobus
Elektřina:
230 V
Garáž:
Ano
Odpad:
Kanalizace
Plocha zahrady:
470 m²
Zastavěná plocha:
144 m²
Počet parkovacích míst:
1
Telekomunikace:
Telefon
Typ domu:
Patrový
Umístění objektu:
Klidná část obce
Vybaveno:
Ano
Energetická náročnost budovy:
G