Translate with 
MENU ZAVŘÍT

Prodej skladovacích prostor 250 m², Veverská Bítýška (ID 193-NP02454)

Veverská Bítýška, okres Brno-venkov mapa

Cena na vyžádání v kanceláři
GMimořádně
nehospodárná

250 m2
Exkluzivně

Skladovací prostor, garážové využití

Předmětem prodeje je stavba situovaná na pozemku parc. č. 532/2 v obci Veverská Bítýška. Jedná se o jednopodlažní objekt se suterénem o celkové užitné ploše 250 m², z toho 180 m² tvoří přízemí a 70 m² suterén.

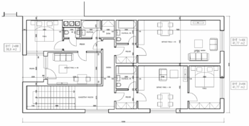
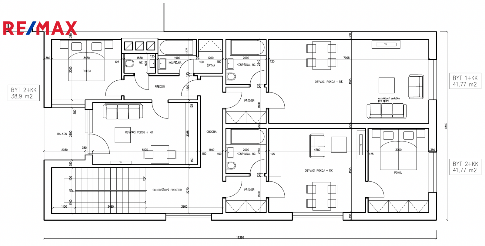
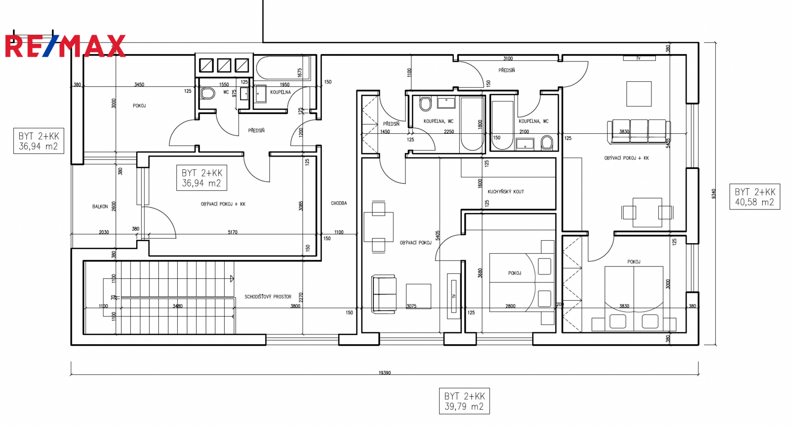
V minulosti bylo zvažováno nad přestavbou pro bydlení, návrh je v galerii. Ovšem dnes již nelze kolaudovat dle telefonického vyjádření stavebního úřadu na bytový dům a možné jsou pouze tři bytové jednotky v případě schválení k bydlení.

Výňatek z územního plánu:
SU Plochy smíšené obytné: smíšené obytné všeobecné
Přípustné využití:
• Pozemky staveb pro bydlení v rodinných domech, případně staveb pro rodinnou rekreaci, pozemky občanského vybavení, pozemky veřejných prostranství včetně veřejné zeleně, pozemky související dopravní a technické infrastruktury

Podmíněně přípustné využití:
• Drobná výroba, služby, řemesla a zemědělství za podmínky, že jejich provoz nezvýší dopravní zátěž v území a za podmínky, že jejich vliv na okolí nepřekročí hranice vlastního pozemku

Budovu je tedy dle dostupných informací možné při splnění podmínek stavebním úřadem využít zejména jako skladové nebo garážové využití, případně jako dílenský prostor pro nenáročnou lehkou výrobu. Po schválení změny užívání lze objekt, vzhledem k jeho poloze a napojení na inženýrské sítě, využít také pro bydlení. Toto je třeba konzultovat dle záměru se stavebním úřadem. Nemovitost je napojena na vodovod, kanalizaci a elektřinu.

Objekt se nachází v obytné zástavbě, je dobře přístupný z příjezdové komunikace a nabízí výbornou dopravní dostupnost.
Cena:
Cena na vyžádání v kanceláři
Poznámka k ceně:
Upozornění:
Prodávající si vyhrazuje právo vybrat kupujícího na základě jím zvolených kritérií.
Ing. Jiří Belcredi Knauer
RE/MAX G8 Reality 5
Moravské náměstí 754/13
Brno, 60200
Česká republika
Tel. na makléře: +420 605 400 423
Tel. do kanceláře: +420 703 180 388
E-mail: jiri.knauer@re-max.cz

Potřebujete poradit/máte zájem o prohlídku?

* – toto pole je nutné vyplnit

Podrobné informace

Číslo zakázky:
ID 193-NP02454
Typ nemovitosti:
Komerční prostory
Druh prostor:
Skladovací
Počet podlaží v objektu:
1
Plocha kanceláří:
250 m²
Druh objektu:
Cihlová
Stav objektu:
Velmi dobrý
Charakter okolní zástavby:
Obytná
K nastěhování:
19. 1. 2026
Celková plocha:
250 m²
Zastavěná plocha:
182 m²
Počet podlaží pod zemí:
2
Typ domu:
Přízemní
Energetická náročnost budovy:
G