Translate with 
MENU ZAVŘÍT

Prodej garáže 182 m², Veverská Bítýška (ID 193-NP02455)

Veverská Bítýška, okres Brno-venkov mapa

3 900 000 Kč ( za nemovitost)
GMimořádně
nehospodárná

250 m2
Exkluzivně

Luxusní garáž? Proč ne

Předmětem prodeje je stavba situovaná na pozemku parc. č. 532/2 v obci Veverská Bítýška. Jedná se o jednopodlažní objekt se suterénem o celkové užitné ploše 250 m², z toho 180 m² tvoří přízemí a 70 m² suterén.

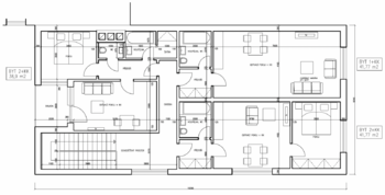
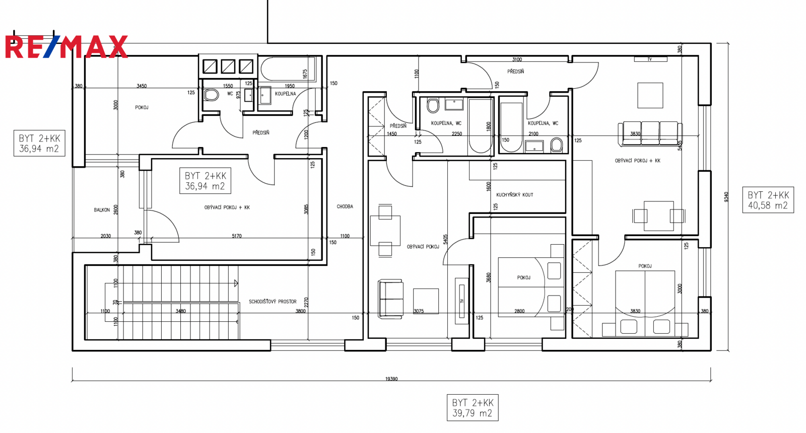
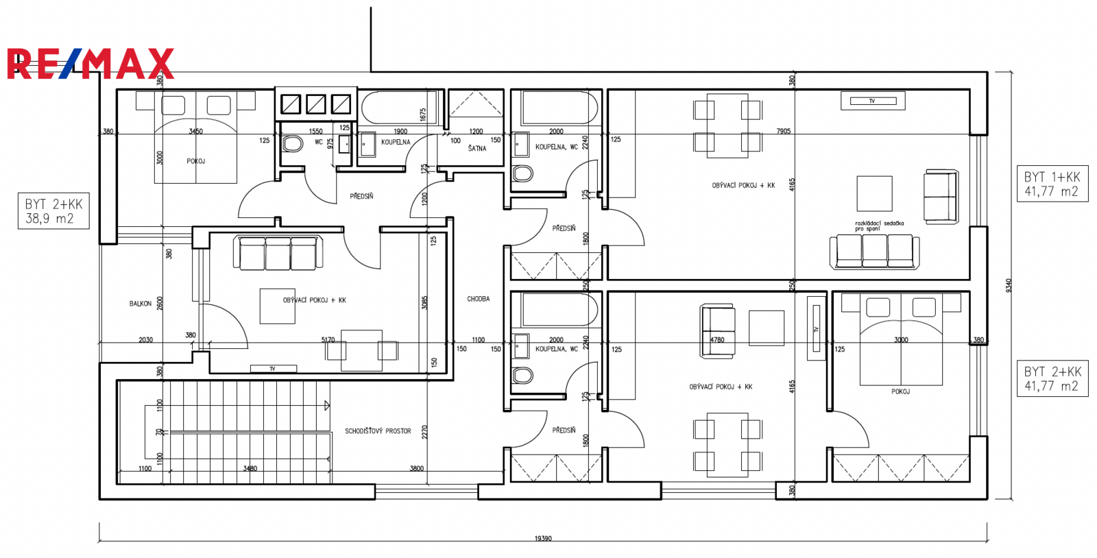
V minulosti bylo zvažováno nad přestavbou pro bydlení, návrh je v galerii. Ovšem dnes již nelze kolaudovat dle telefonického vyjádření stavebního úřadu na bytový dům a možné jsou pouze tři bytové jednotky v případě schválení k bydlení.

Výňatek z územního plánu:
SU Plochy smíšené obytné: smíšené obytné všeobecné
Přípustné využití:
• Pozemky staveb pro bydlení v rodinných domech, případně staveb pro rodinnou rekreaci, pozemky občanského vybavení, pozemky veřejných prostranství včetně veřejné zeleně, pozemky související dopravní a technické infrastruktury

Podmíněně přípustné využití:
• Drobná výroba, služby, řemesla a zemědělství za podmínky, že jejich provoz nezvýší dopravní zátěž v území a za podmínky, že jejich vliv na okolí nepřekročí hranice vlastního pozemku

Budovu je tedy dle dostupných informací možné při splnění podmínek stavebním úřadem využít zejména jako skladové nebo garážové využití, případně jako dílenský prostor pro nenáročnou lehkou výrobu. Po schválení změny užívání lze objekt, vzhledem k jeho poloze a napojení na inženýrské sítě, využít také pro bydlení. Toto je třeba konzultovat dle záměru se stavebním úřadem. Nemovitost je napojena na vodovod, kanalizaci a elektřinu.

Objekt se nachází v obytné zástavbě, je dobře přístupný z příjezdové komunikace a nabízí výbornou dopravní dostupnost.
Cena:
3 900 000 CZK / za nemovitost
Poznámka k ceně:
Upozornění:
Prodávající si vyhrazuje právo vybrat kupujícího na základě jím zvolených kritérií.
RX finance

Spočítejte si splátku hypotéky

Na kolik vás vyjde pořízení vlastního bydlení? Zadejte pár informací do naší hypoteční kalkulačky a hned si prohlédněte výsledek.

Kupní cena nemovitosti

3 900 000 Kč

Výše hypotéky

Doba splácení

Vypočítaná měsíční splátka

Úroková sazba 3.6%

260 990 Kč

Hypotéku zařídíme za vás

Ušetřete svůj čas i nervy. Naši makléři zařídí veškeré papírování a dovedou vás až k úspěšnému podpisu smlouvy v bance.

Nechte nám kontakt, náš makléř se v pracovní dny ozve do 24 hodin

* – toto pole je nutné vyplnit
Ing. Jiří Belcredi Knauer
RE/MAX G8 Reality 5
Moravské náměstí 754/13
Brno, 60200
Česká republika
Tel. na makléře: +420 605 400 423
Tel. do kanceláře: +420 703 180 388
E-mail: jiri.knauer@re-max.cz

Potřebujete poradit/máte zájem o prohlídku?

* – toto pole je nutné vyplnit

Podrobné informace

Číslo zakázky:
ID 193-NP02455
Počet podlaží v objektu:
1
Celková plocha:
182 m²
Druh objektu:
Cihlová
Stav objektu:
Velmi dobrý
Typ nemovitosti:
Malé objekty, garáže
Charakter okolní zástavby:
Obytná
K nastěhování:
19. 1. 2026
Užitná plocha:
250 m²
Zastavěná plocha:
182 m²
Počet podlaží pod zemí:
2
Typ domu:
Přízemní
Energetická náročnost budovy:
G