Translate with 
MENU ZAVŘÍT

Prodej bytu 2+kk v osobním vlastnictví 44 m², Praha 4 - Chodov (ID 352-NP00105)

ulice Konstantinova, Praha 4 – Chodov mapa

7 150 000 Kč ( za nemovitost)
CÚsporná

kk
2x
44 m2
6/9
Exkluzivně

Byt 2+kk – Konstantinova 1498, Praha 11 - Chodov

Exkluzivně Vám nabízíme ke koupi moderní byt 2+kk po kompletní nadstandardní rekonstrukci v osobním vlastnictví ve vyhledávané lokalitě s výbornou dostupností metra B - Háje.
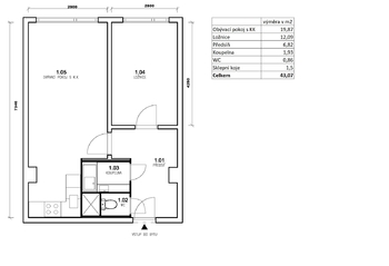
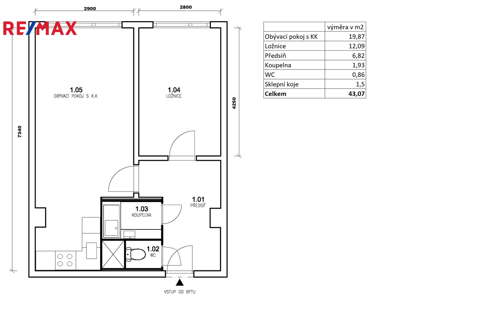
Podlahová plocha bytu je 41,5 m2 a k dispozici je také sklepní kóje 1,5 m2.
Byt prošel kompletní rekonstrukcí: elektro-rozvody vč. počítačové sítě, rozvody vody a kanalizace, štuky a malby, dlažby, vinylové podlahy a dveře s obložkovými zárubněmi, nová zděná koupelna s moderním sprchovým koutem s vaničkou z litého mramoru, vedle samostatně oddělené závěsné WC.
Dominantou bytu je obývací pokoj s kuchyňským koutem, kde je zcela nová linka na míru od truhláře osazená značkovými spotřebiči, indukční deska, vestavná mikrovlnná trouba, digestoř, myčka a trouba. Rekonstrukce je nadstandardní jak použitými materiály a vybavením, tak provedením.
Vytápění i ohřev vody je centrální. Bytová jednotka se nachází v 5.patře, s krásným výhledem do okolí.
Přímo za domem je centrální park a v blízkosti Milíčovský les, místa jako stvořená pro procházky s relaxačními zónami, dětskými hřišti a cyklostezkami.
Dům je zateplený, zrekonstruovaný, má výnosy z nebytových prostor. V domě je prostorný výtah.
V pěší vzdálenosti je stanice metra Háje, parkování je možné přímo před domem, je zde několik parkovišť, nejsou zde parkovací zóny.
V okolí je veškeré občanské vybavení, u domu nachází základní škola i mateřské školy, gymnázia, dětská hřiště i sportoviště, zimní hala, poliklinika, nedaleko OC Opatov, několik supermarketů, kavárny a bistra.
V případě více zájemců si prodávající vyhrazuje právo vybrat nejvýhodnější nabídku.
Těším se na setkání s vámi na prohlídce.
Cena:
7 150 000 CZK / za nemovitost
Poznámka k ceně:
Upozornění:
Prodávající si vyhrazuje právo vybrat kupujícího na základě jím zvolených kritérií.
RX finance

Spočítejte si splátku hypotéky

Na kolik vás vyjde pořízení vlastního bydlení? Zadejte pár informací do naší hypoteční kalkulačky a hned si prohlédněte výsledek.

Kupní cena nemovitosti

7 150 000 Kč

Výše hypotéky

Doba splácení

Vypočítaná měsíční splátka

Úroková sazba 3.6%

260 990 Kč

Hypotéku zařídíme za vás

Ušetřete svůj čas i nervy. Naši makléři zařídí veškeré papírování a dovedou vás až k úspěšnému podpisu smlouvy v bance.

Nechte nám kontakt, náš makléř se v pracovní dny ozve do 24 hodin

* – toto pole je nutné vyplnit
Miroslava Popelková
RE/MAX Ambassador
Cíglerova/metro Rajská zahrada
Praha 9, 19800
Česká republika
Tel. na makléře: +420 776 249 292
Tel. do kanceláře: +420 777 557 700
E-mail: miroslava.popelkova@re-max.cz

Potřebujete poradit/máte zájem o prohlídku?

* – toto pole je nutné vyplnit

Podrobné informace

Číslo zakázky:
ID 352-NP00105
Dispozice:
2+kk
Číslo podlaží:
6
Počet podlaží v objektu:
9
Podlahová plocha:
44 m²
Druh objektu:
Panelová
Stav objektu:
Velmi dobrý
Vlastnictví:
Osobní
Typ nemovitosti:
Byty
Charakter okolní zástavby:
Obytná
K nastěhování:
19. 1. 2026
Elektřina:
400 V
Odpad:
Kanalizace
Užitná plocha:
42 m²
Zastavěná plocha:
769 m²
Telekomunikace:
Internet
Voda:
Dálkový rozvod
Výtah:
Ano
Energetická náročnost budovy:
C