Translate with 
MENU ZAVŘÍT

Pronájem bytu 2+kk v osobním vlastnictví 50 m², Brno (ID 268-NP03442)

ulice Dohnalova, Brno – městská část Brno-sever mapa

21 900 Kč ( za měsíc)
BVelmi
úsporná

kk
2x
50 m2
2/2
Exkluzivně

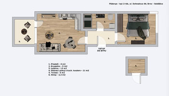
Pronájem nadstandardní bytové jednotky o dispozici 2+kk v Brně Soběšicích

Hledáte nadstandardní plně vybavenou bytovou jednotku v novostavbě s balkónem (+ 5 m2), sklepem (+ 2 m2) a parkováním v nádherné lokalitě kousek od centra Brna?

Tato krásně prosvětlená bytová jednotka o dispozici 2+kk a celkové podlahové ploše téměř 50 m2 je plně vybavená a když říkám vybavená, tak tím myslím opravdu luxusně vybavená.

Veškerý vestavěný nábytek je značky Hanák.
Pohodlná pohovka v obývacím pokoji, TV, stůl s židlemi, kuchyňská linka s vestavěnými spotřebiči i obraz, který dotváří pozitivní atmosféru domova.
Koupelna se sprchovým koutem, toaletou, umyvadlem, ručníky, skříňkou, zrcadlem, osvětlením i pračkou se sušičkou.
Ložnice s vestavěnou skříní přes celou jednu stěnu, menší skříňkou, nočním stolkem s lampou, postel s úplně novými matracemi, peřinami i povlečením, jednu ze stěn rovněž zdobí příjemný obraz.

Součástí nájmu jsou i veškeré vysoce kvalitní kuchyňské spotřebiče jako myčka, indukční varná deska, digestoř, trouba s mikrovlnnou troubou v jednom, varná konvice, vestavěná lednice s mrazničkou
Nechybí ani úklidové prostředky a vysavač Kärcher.

Určitě velmi oceníte příjemné posezení na balkóně se dvěma křesílky, stolečkem a velkou markýzou, která Vás ochrání před ostrým letním sluncem… pokud by to nestačilo, tak klimatizační jednotka v obývacím pokoji i ložnici, Vás zchladí spolehlivě. V bytě je dále podlahové vytápění, krásná dřevěná podlaha a designové bezfalcové vysoké dveře.

Byt je tedy ideální, pokud se chcete stěhovat pouze s kufrem plným oblečení, protože vybavena základním nádobím je i kuchyňská linka. Nepotřebujete tedy v podstatě nic…jen sebe a chuť naplnit byt svou přítomností a vychutnat si příjemné bydlení.

Součástí nájmu je i prostorný sklep, vybavený masivním policovým systémem a držáky na kola.

Parkování je k dispozici před domem.

Měsíční náklady:
elektřina 1.500,- Kč, plyn 2.000,- Kč, internet 500,- Kč, voda 700,- Kč, soukromé parkovací stání 500,- Kč.

Umístění bytu je přímo dokonalé v krásně zelené části Brna Soběšic.
Kousek od bytové jednotky je několik mateřských škol, dětské hřiště, základní škola, potraviny Brněnka, restaurace i příjemná kavárna. Veškerá občanská vybavenost je ve velmi blízkém okolí. Pokud navíc milujete procházky lesem, cyklostezky i jízdu na koních, tak Panská lícha je vzdálena pouhých 20 minut chůze od domu.

Skvělá dostupnost do okolních částí Brna, za 15 minut jste autem v centru města.
Spoje MHD fungují rovněž výborně a jsou dvě minuty pěšky od bytu.

Zaujala Vás tato nabídka a přejete si být prvním nájemníkem dokonalého bytu?
Neváhejte mě kontaktovat, moc ráda Vás provedu.

Nina Tedová
REMAX Delux
Cena:
21 900 CZK / za měsíc
Poznámka k ceně:
+ energie a služby (elektřina 1.500,- Kč, plyn 2.000,- Kč, internet 500,- Kč, voda 700,- Kč, soukromé parkovací stání 500,- Kč) + provize RK + jistota/kauce 2x nájemné
Upozornění:
Pronajímající si vyhrazuje právo vybrat nájemce na základě jím zvolených kritérií.
Mgr. Veronika Nina Tedová, DiS.
RE/MAX Delux
Křenová 538/22
Brno, 60200
Česká republika
Tel. na makléře: +420 602 715 555
Tel. do kanceláře: +420 602 703 897
E-mail: nina.tedova@re-max.cz

Potřebujete poradit/máte zájem o prohlídku?

* – toto pole je nutné vyplnit

Podrobné informace

Číslo zakázky:
ID 268-NP03442
Dispozice:
2+kk
Číslo podlaží:
2
Počet podlaží v objektu:
2
Podlahová plocha:
50 m²
Druh objektu:
Cihlová
Stav objektu:
Novostavba
Vlastnictví:
Osobní
Typ nemovitosti:
Byty
Charakter okolní zástavby:
Obytná
K nastěhování:
19. 1. 2026
Doprava:
Vlak, Dálnice, Silnice, MHD, Autobus
Elektřina:
230 V
Odpad:
Kanalizace
Užitná plocha:
49 m²
Plyn:
Plynovod
Počet parkovacích míst:
1
Telekomunikace:
Internet
Umístění objektu:
Klidná část obce
Voda:
Dálkový rozvod
Vybaveno:
Ano
Energetická náročnost budovy:
B
Měrná vypočtená roční spotřeba energie v kWh/m²/rok:
201