Translate with 
MENU ZAVŘÍT

Pronájem bytu 2+1 v osobním vlastnictví 53 m², Brno (ID 268-NP03446)

ulice Tilhonova, Brno – městská část Brno-Slatina mapa

22 000 Kč ( za měsíc)
DMéně
úsporná

1x
2x
53 m2
1/6
Exkluzivně

Pronájem bytu 2+1, 53 m2, Tilhonova, Brno-Slatina

Hledáte k dlouhodobému pronájmu byt v klidné lokalitě obklopené zelení, která zároveň nabízí výbornou dostupnost do centra a plnou občanskou vybavenost?
Tato oblast spojuje pohodlí, harmonii a krásné výhledy, čímž vytváří ideální prostředí pro váš každodenní život.

Ve výhradním zastoupení majitele si vám dovoluji nabídnout k pronájmu tento elegantní cihlový byt o dispozici 2+1, nacházející se ve zvýšeném přízemí bytového domu, situovaného v klidné a žádané lokalitě, na ulici Tilhonova v městské části Brno-Slatina.

Dominantou je útulný obývací pokoj s krbovými kamny, která v chladných dnech navodí příjemnou atmosféru a zahřejí váš domov. Velké okno sahající až k podlaze, prostor nádherně prosvětluje a dodává vzdušnost.
Z obývacího pokoje plynule vstoupíte do ložnice vybavené vestavěnými skříněmi a praktickými posuvnými dveřmi. Pokoje jsou orientovány na jihovýchod a nabízí klidný výhled do zeleně. Z obývacího pokoje se nabízí vstup na balkon.
Kuchyně je zařízena moderní kuchyňskou linkou se zabudovanými spotřebiči značky Whirlpool a díky severozápadní orientaci poskytuje příjemné světelné podmínky.
Byt nabízí koupelnu s vanou a toaletou, vybavenou automatickou pračkou.

Pro zvýšení komfortu a akustické pohody jsou obvodové stěny směrem k sousedním bytům a stropy opatřeny sádrokartonovým obkladem se zvukovou izolací.
Teplo domova zajišťuje plynový krb značky BARBAS. Krb je vybaven dálkovým ovládáním s integrovaným termostatem, na ovladači lze jednoduše nastavit požadovanou teplotu.
Díky tomuto řešení si snadno zajistíte příjemnou tepelnou pohodu přesně podle svých představ.

K bytu jsou k užívání dva sklepy o ploše 3 m2 a 1 m2 a společná kolárna.
Parkování lze pohodlně přímo u bytového domu nebo přilehlých parkovišť.
Projděte si videoprohlídku a virtuální prohlídku bytu.
Byt je vybaven a volný ihned k okamžitému nastěhování.

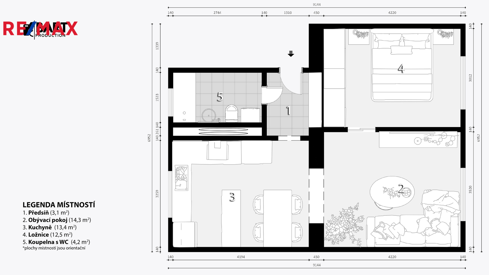
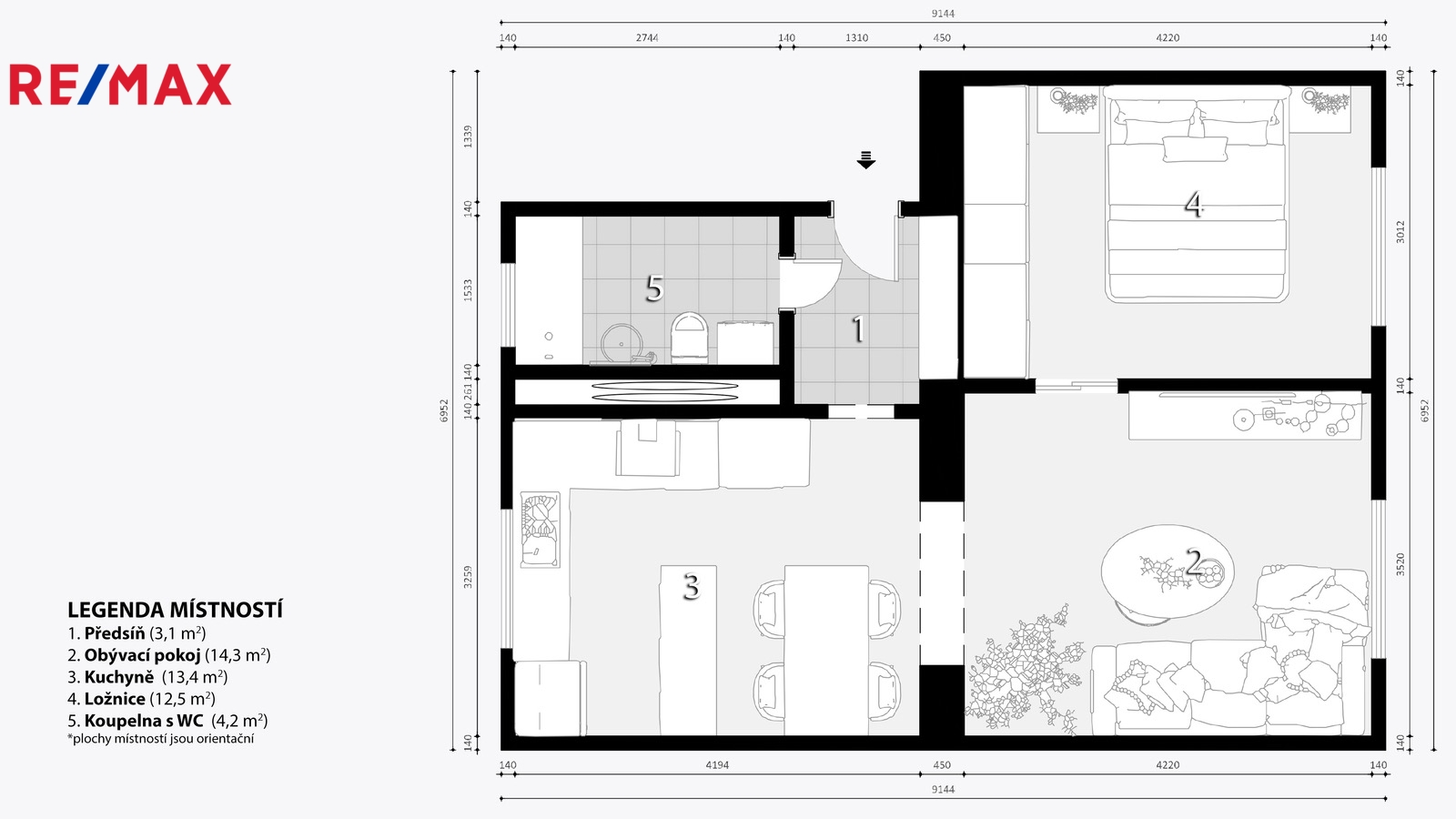
Rozměry jednotlivých místností:
Kuchyně: 13,4 m2
Obývací pokoj: 14,3 m2
Ložnice: 12,5 m2
Předsíň: 3,1 m2
Koupelna s toaletou: 4,2 m2
Balkon: 0,6 m2

Energetická náročnost budovy uvádí třídu D – méně úsporná.
Měsíční náklady a platby:
Nájemné: 22.000 Kč
Zálohy na služby a energie: 3.735 Kč
Vratná kauce: 22.000 Kč
Provize RK: 22.000 Kč + DPH

Brno-Slatina je vyhledávaná městská část, spojující klidné prostředí s výbornou dopravní dostupností. Nabízí pohodlné spojení do centra města. Disponuje kompletní občanskou vybaveností, včetně škol, školek, obchodů, restaurací a dalších služeb pro každodenní potřeby. Díky spojení kvalitního zázemí je ideální volbou pro ty, kteří hledají komfortní bydlení v příjemném prostředí.
Lokalita bytu zajišťuje výbornou dopravní dostupnost s rychlým spojením do centra Brna i na dálnici D1, zastávky MHD jsou v docházkové vzdálenosti.

Pronajímající si vyhrazuje právo vybrat nájemce na základě jím zvolených kritérií.
V případě zájmu mě neváhejte kontaktovat a domluvit si svůj čas prohlídky.
Ráda vám byt osobně představím a zodpovím všechny vaše dotazy.

S úctou,
Andrea Vašíčková
RE/MAX Delux
Cena:
22 000 CZK / za měsíc
Poznámka k ceně:
+ 3 735,- zálohy na energie a služby + 22 000,- vratná kauce + 26 620,- provize RK
Upozornění:
Pronajímající si vyhrazuje právo vybrat nájemce na základě jím zvolených kritérií.
Bc. Andrea Vašíčková
RE/MAX Delux
Křenová 538/22
Brno, 60200
Česká republika
Tel. na makléře: +420 731 537 319
Tel. do kanceláře: +420 602 703 897
E-mail: andrea.vasickova@re-max.cz

Potřebujete poradit/máte zájem o prohlídku?

* – toto pole je nutné vyplnit

Podrobné informace

Číslo zakázky:
ID 268-NP03446
Dispozice:
2+1
Číslo podlaží:
1
Počet podlaží v objektu:
6
Podlahová plocha:
53 m²
Druh objektu:
Cihlová
Stav objektu:
Velmi dobrý
Vlastnictví:
Osobní
Typ nemovitosti:
Byty
K nastěhování:
21. 1. 2026
Doprava:
MHD, Autobus
Elektřina:
230 V
Odpad:
Kanalizace
Užitná plocha:
53 m²
Plyn:
Individuální, Plynovod
Umístění objektu:
Klidná část obce
Voda:
Dálkový rozvod
Vybaveno:
Ano
Energetická náročnost budovy:
D
Měrná vypočtená roční spotřeba energie v kWh/m²/rok:
153