Translate with 
MENU ZAVŘÍT

Prodej domu 146 m², Svatá (ID 020-NP10784)

Svatá, okres Beroun mapa

11 550 000 Kč ( za nemovitost)
CÚsporná

4x
146 m2
783 m2
2
Exkluzivně Rezervace

Rodinný dům 5+kk ve Svaté u Berouna – klidná slepá ulice, 2 koupelny, pozemek 703 m², 30 min Praha

Nabízíme k prodeji rodinný dům v obci Svatá u Berouna, který kombinuje klidné bydlení v přírodě s dobrou dostupností do Prahy. Dům se nachází v klidné slepé ulici s minimálním provozem, má vlastní příjezd a parkování na pozemku.
Nemovitost byla kolaudována v roce 2014 a nabízí praktické rodinné bydlení s důrazem na prostor, soukromí a funkční dispozici.

Lokalita a dostupnost:
Obec Svatá leží přibližně 10 minut od Berouna a cca 30 minut jízdy od Prahy Zličín. Díky umístění ve slepé ulici zde není tranzitní doprava, což zajišťuje klidné a bezpečné prostředí vhodné i pro rodiny s dětmi.
Výhodou lokality je také přirozené proudění vzduchu. Převládající větry směřují od Prahy směrem na Beroun, takže se obec nachází mimo hlavní směr proudění městského vzduchu. Díky tomu nabízí příjemnější a čistší prostředí pro každodenní bydlení.

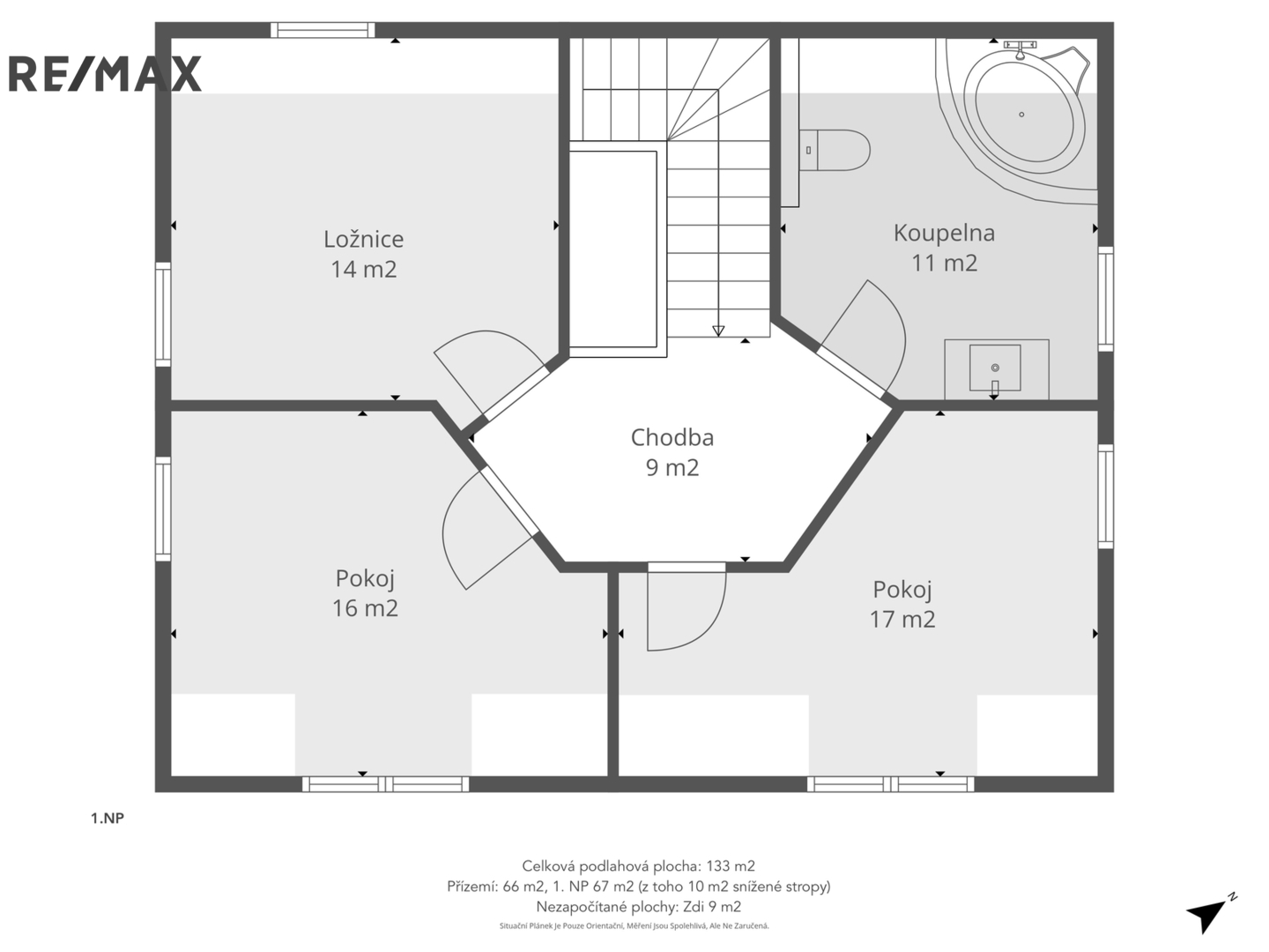
Dispozice domu:
Dům je dvoupodlažní a dispozičně řešen jako 5+kk s podlahovou plochou cca 146 m².

Přízemí:
vstupní místnost (zádveří) s prostorem pro oblečení a boty
menší koupelna se sprchovým koutem a toaletou
technická místnost využívaná zároveň jako sklep / velká spíž
otevřený obytný prostor s kuchyní, jídelnou a obývacím pokojem
kachlová kamna jako plnohodnotný zdroj tepla
Patro:
ložnice
dva samostatné pokoje (dětské pokoje / pracovna)
prostorná koupelna s toaletou
Dispozice domu je vhodná pro rodinu s dětmi i kombinaci bydlení a práce z domova.

Technické informace:
Dům je dřevostavba z roku 2014.
Vytápění je řešeno elektrickým kotlem, v přízemí podlahovým topením, v patře radiátory. Dalším zdrojem tepla jsou kachlová kamna na dřevo.
Dům je napojen na vodu a elektřinu. Odpad je řešen domácí čističkou odpadních vod, přičemž na pozemku je připravena možnost budoucího napojení na obecní kanalizaci. Plyn v obci není.

Náklady na provoz
elektřina: cca 5 000 Kč měsíčně
voda: cca 850 Kč měsíčně
odpad: vývoz septiku cca 1 500 Kč ročně
možnost budoucího napojení na kanalizaci
Díky kombinaci vytápění je možné náklady částečně regulovat podle způsobu využití domu. Současní majitelé například podlahové vytápění využívají minimálně.

Zahrada a exteriér:
Pozemek o velikosti 703 m² nabízí dostatek prostoru pro relaxaci i rodinné aktivity. Součástí je pergola, která rozšiřuje obytný prostor domu zejména v letních měsících.

Parkování je zajištěno přímo na pozemku pro dvě auta. Příjezdová cesta patří k domu.

Občanská vybavenost:
V obci se nachází mateřská školka, knihovna s komunitními akcemi a možnosti sportovního vyžití (fotbal, karate, badminton). Lokalita je známá dobrými sousedskými vztahy a klidným charakterem.

Shrnutí
Dům nabízí kombinaci klidného bydlení v přírodě, praktické dispozice a dobré dostupnosti do Prahy. Díky dvěma koupelnám, třem pokojům v patře a otevřenému obytnému prostoru v přízemí je ideální pro rodinné bydlení i dlouhodobé využití.
Prodávající si vyhrazuje právo vybrat kupujícího na základě jím zvolených kritérií.
Cena:
11 550 000 CZK / Rezervováno
RX finance

Spočítejte si splátku hypotéky

Na kolik vás vyjde pořízení vlastního bydlení? Zadejte pár informací do naší hypoteční kalkulačky a hned si prohlédněte výsledek.

Kupní cena nemovitosti

11 550 000 Kč

Výše hypotéky

Doba splácení

Vypočítaná měsíční splátka

Úroková sazba 3.6%

260 990 Kč

Hypotéku zařídíme za vás

Ušetřete svůj čas i nervy. Naši makléři zařídí veškeré papírování a dovedou vás až k úspěšnému podpisu smlouvy v bance.

Nechte nám kontakt, náš makléř se v pracovní dny ozve do 24 hodin

* – toto pole je nutné vyplnit
Tomáš Vykydal
REMAX G8 Reality
Rohanské nábřeží 678/27
Praha 8 - Karlín, 18600
Česká republika
Tel. na makléře: +420 732 229 353
Tel. do kanceláře: +420 703 180 388
E-mail: tomas.vykydal@re-max.cz

Potřebujete poradit/máte zájem o prohlídku?

* – toto pole je nutné vyplnit

Podrobné informace

Číslo zakázky:
ID 020-NP10784
Poloha objektu:
Samostatný
Počet podlaží v objektu:
2
Užitná plocha:
146 m²
Plocha parcely:
783 m²
Druh objektu:
Dřevěná
Stav objektu:
Velmi dobrý
Typ nemovitosti:
Domy a vily
K nastěhování:
14. 4. 2026
Elektřina:
230 V, 400 V
Odpad:
Čistička odpadních vod pro celý objekt
Plocha zahrady:
703 m²
Zastavěná plocha:
80 m²
Počet parkovacích míst:
2
Typ domu:
Patrový
Umístění objektu:
Klidná část obce
Voda:
Dálkový rozvod
Vybaveno:
Ano
Energetická náročnost budovy:
C
Měrná vypočtená roční spotřeba energie v kWh/m²/rok:
110