Translate with 
MENU ZAVŘÍT

Prodej bytu 3+1 v osobním vlastnictví 186 m², Kralupy nad Vltavou (ID 262-NP00582)

ulice Čechova, Kralupy nad Vltavou mapa

12 500 000 Kč ( za nemovitost)
GMimořádně
nehospodárná

1x
3x
186 m2
2/2
Exkluzivně

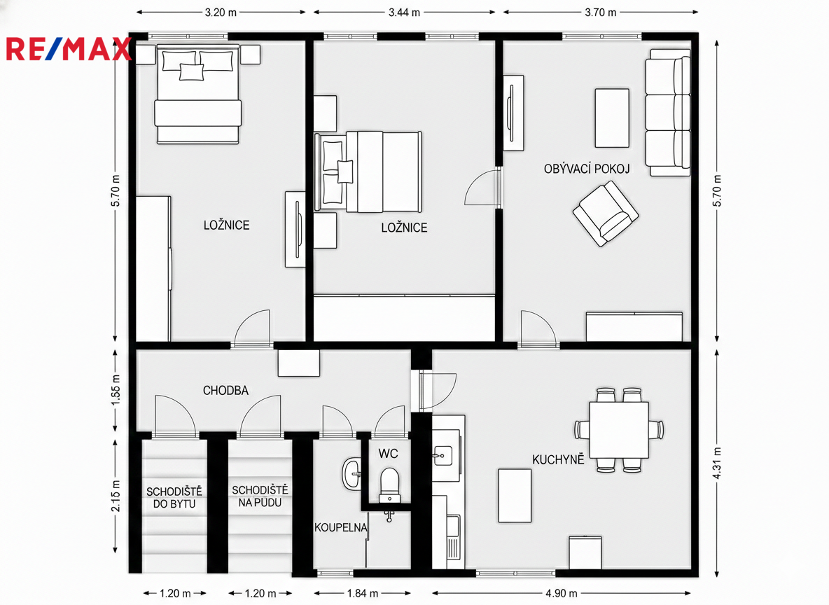
Prodej bytu po rekonstrukci s půdním prostorem, celkem 186,8 m²

Nabízíme ke koupi byt po kompletní rekonstrukci v menším domě se dvěma bytovými jednotkami, doplněný o rozsáhlý půdní prostor s výrazným rozvojovým potenciálem. Nemovitost se nachází v klidné části města Kralupy nad Vltavou, ulice Čechova.

Bytová jednotka je dle katastru nemovitostí evidována o celkové ploše 186,8 m² a je situována ve 2. a 3. nadzemním podlaží domu.

Ve 2. NP se nachází byt 3+1 o podlahové ploše cca 89 m², který prošel kompletní rekonstrukcí a je připraven k okamžitému užívání. Dispozice nabízí tři pokoje, oddělenou kuchyni, koupelnu se sprchovým koutem a samostatné WC. Interiér je řešen moderně, s důrazem na funkčnost, světlo a komfort každodenního bydlení. Vybavení bytu je věcí dohody.

Ve 3. NP se nachází půdní prostor o výměře cca 97 m², který je přístupný přímo z bytu a je součástí jednotky dle zápisu v katastru nemovitostí. Tento prostor není v současné době zkolaudován k bydlení a je využitelný jako půda, sklad nebo ateliérový prostor. Zároveň nabízí výrazný potenciál budoucí vestavby obytné části, a to po splnění příslušných stavebně-technických a administrativních podmínek.
Případná změna využití půdního prostoru na obytné místnosti, případně rozdělení na dvě samostatné bytové jednotky, je podmíněna stavebním řízením a úpravou prohlášení vlastníka.

Dům má pouze dvě bytové jednotky, což zajišťuje klidné a komorní bydlení s minimem sousedů. Parkování je možné přímo před domem. K jednotce náleží právo užívání sklepního prostoru a možnost užívání společné zahrady ve vnitrobloku.

Ulice Čechova nabízí kompletní občanskou vybavenost v docházkové vzdálenosti a velmi dobrou dopravní dostupnost. Město Kralupy nad Vltavou disponuje pravidelným vlakovým spojením do Prahy i pohodlným napojením na hlavní silniční tahy.

Nemovitost je vhodná:
* pro vlastní komfortní bydlení v zrekonstruovaném bytě
* i pro zájemce hledající nemovitost s rozvojovým potenciálem a dlouhodobou hodnotou
Kombinace hotového bytu a navazujících půdních prostor vytváří zajímavou příležitost jak pro koncového uživatele, tak pro investora. Prodávající si vyhrazuje právo vybrat kupujícího na základě jím zvolených kritérií.
Cena:
12 500 000 CZK / za nemovitost
Poznámka k ceně:
Upozornění:
Prodávající si vyhrazuje právo vybrat kupujícího na základě jím zvolených kritérií.
RX finance

Spočítejte si splátku hypotéky

Na kolik vás vyjde pořízení vlastního bydlení? Zadejte pár informací do naší hypoteční kalkulačky a hned si prohlédněte výsledek.

Kupní cena nemovitosti

12 500 000 Kč

Výše hypotéky

Doba splácení

Vypočítaná měsíční splátka

Úroková sazba 3.6%

260 990 Kč

Hypotéku zařídíme za vás

Ušetřete svůj čas i nervy. Naši makléři zařídí veškeré papírování a dovedou vás až k úspěšnému podpisu smlouvy v bance.

Nechte nám kontakt, náš makléř se v pracovní dny ozve do 24 hodin

* – toto pole je nutné vyplnit
Michal Šulc
RE/MAX Scopus
Olbrachtova 1065/46
Praha 4 - Krč, 14000
Česká republika
Tel. na makléře: +420 730 510 123
Tel. do kanceláře: +420 733 746 846
E-mail: michal.sulc@re-max.cz

Potřebujete poradit/máte zájem o prohlídku?

* – toto pole je nutné vyplnit

Podrobné informace

Číslo zakázky:
ID 262-NP00582
Dispozice:
3+1
Číslo podlaží:
2
Počet podlaží v objektu:
2
Podlahová plocha:
186 m²
Druh objektu:
Smíšená
Stav objektu:
Po rekonstrukci
Vlastnictví:
Osobní
Typ nemovitosti:
Byty
Charakter okolní zástavby:
Obytná
K nastěhování:
22. 1. 2026
Odpad:
Kanalizace
Užitná plocha:
186 m²
Plyn:
Plynovod
Voda:
Dálkový rozvod
Energetická náročnost budovy:
G