Translate with 
MENU ZAVŘÍT

Pronájem bytu 2+1 v osobním vlastnictví 65 m², Plzeň (ID 218-NP06902)

ulice Černická, Plzeň – městská část Plzeň 3 mapa

19 900 Kč ( za měsíc)
GMimořádně
nehospodárná

1x
2x
65 m2
4/5
Exkluzivně

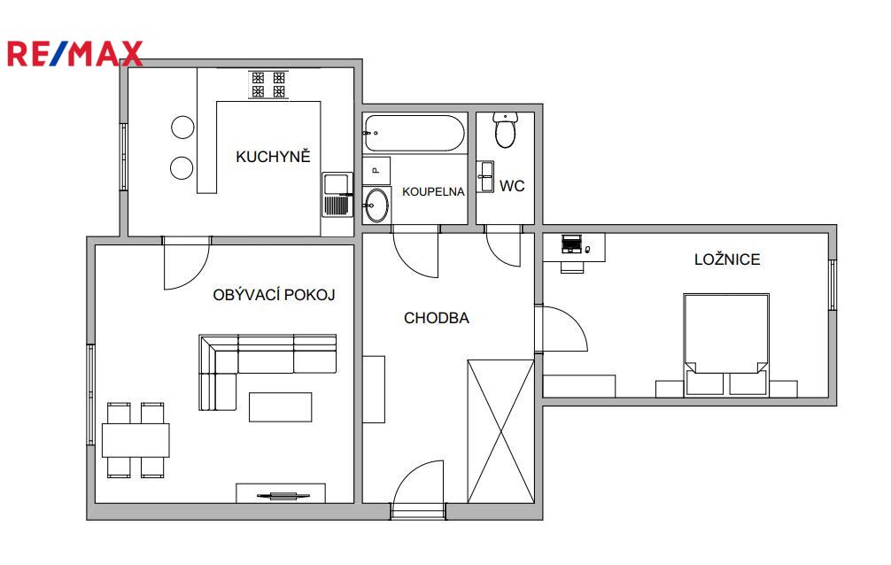
Pronájem bytu 2+1 s chráněným parkovacím stáním ve vnitrobloku, 65m², Plzeň Černická ul.

Exkluzívně nabízíme k pronájmu moderní byt o dispozici 2+1 o podlahové ploše 65 m²
Byt je prostorný a nadstandardně zařízený. Kuchyň je vybavena vestavnými spotřebiči, v koupelně je k dispozici pračka. Byt je z části vytápěn podlahovým topením. Nachází se ve 3.patře cihlového domu v Černické ulici v Plzni.
K bytu náleží jedno parkovací stání, které se nachází ve vnitrobloku. S ohledem k poloze blízko centra je chráněné parkovací stání velikou výhodou.
Měsíční zálohová platba za vodu, topení a společné prostory je 3.874,- Kč plus záloha na el. energii.
Kauce činí dva měsíční nájmy.
Pokud máte zájem o prohlídku či více informací, kontaktujte makléřku nabídky. Pronajímající si vyhrazuje právo vybrat nájemce na základě jím zvolených kritérií.
Cena:
19 900 CZK / za měsíc
Poznámka k ceně:
nízká provize RK
Upozornění:
Pronajímající si vyhrazuje právo vybrat nájemce na základě jím zvolených kritérií.
Mgr. Jana Procházková
RE/MAX Anděl
Ostrovského 253/3
Praha 5 - Smíchov, 15000
Česká republika
Tel. na makléře: +420 702 144 094
Tel. do kanceláře: +420 725 293 030
E-mail: jana.prochazkova@re-max.cz

Potřebujete poradit/máte zájem o prohlídku?

* – toto pole je nutné vyplnit

Podrobné informace

Číslo zakázky:
ID 218-NP06902
Dispozice:
2+1
Číslo podlaží:
4
Počet podlaží v objektu:
5
Podlahová plocha:
65 m²
Druh objektu:
Cihlová
Stav objektu:
Velmi dobrý
Vlastnictví:
Osobní
Typ nemovitosti:
Byty
K nastěhování:
1. 2. 2026
Doprava:
Vlak, Dálnice, Silnice, MHD, Autobus
Elektřina:
230 V
Občanská vybavenost:
Škola, Školka, Zdravotnická zařízení, Pošta, Supermarket, Kompletní síť obchodů a služeb
Užitná plocha:
65 m²
Počet parkovacích míst:
1
Telekomunikace:
Internet
Umístění objektu:
Centrum obce
Vybaveno:
Ano
Výtah:
Ano
Energetická náročnost budovy:
G