Translate with 
MENU ZAVŘÍT

Prodej bytu 2+1 v osobním vlastnictví 65 m², Kolín (ID 059-NP07808)

ulice Havlíčkova, Kolín – část obce Kolín IV mapa

3 980 000 Kč ( za nemovitost)
GMimořádně
nehospodárná

1x
2x
65 m2
3/5
Exkluzivně Rezervace

Prodej bytu 2+1 v Kolíně

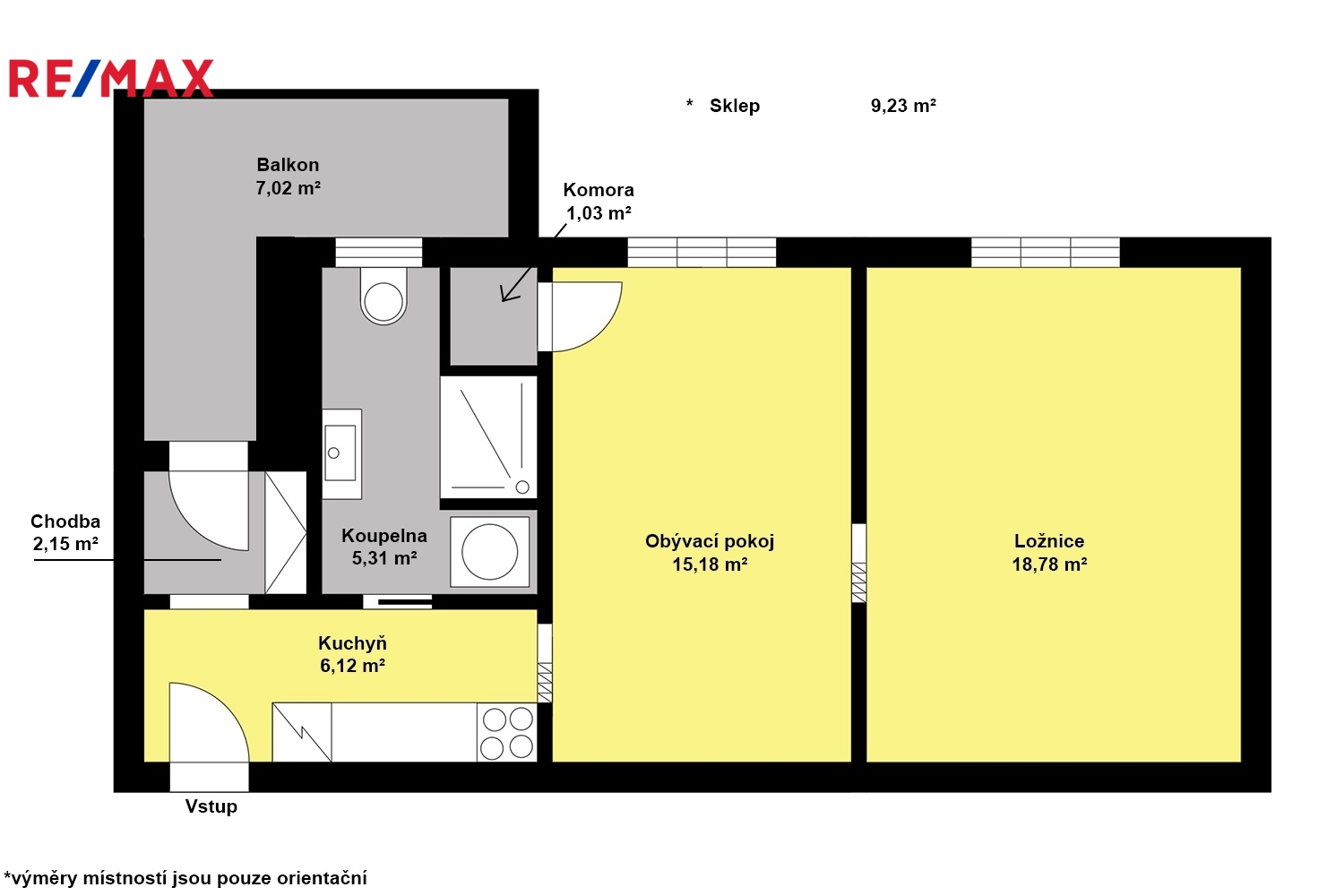
Dovoluji si Vám nabídnout k prodeji byt 2+1 s balkónem v osobním vlastnictví o celkové výměře 65 m2 včetně příslušenství (balkón 7 m2 a sklep 9,2 m2). Byt se nachází v ulici Havlíčkova v 3. NP z celkových 4 NP v cihlovém domě bez výtahu.
Bytová jednotka prošla částečnou modernizací – plastová okna, plynová kamna v obývacím pokoji GAMAT a kompletní rekonstrukcí koupelny s toaletou včetně rozvodů v roce 2023.
Součástí bytu je kuchyňská linka včetně spotřebičů (plynový sporák s elektrickou troubou, digestoř) vestavěnou skříň na chodbě, velké skříně v ložnici do tvaru L, skříňky a zrcadlo v koupelně, věšák na chodbě.
Vytápění je lokální plynové a ohřev vody je bojlerem.
Měsíční náklady včetně energií pro tříčlennou rodinu jsou 5 200 Kč.
Před domem je autobusová zastávka směr Kutná Hora a 3 minuty chůze od domu je MHD směr do centra města.
V místě je kompletní občanská vybavenost.
Vhodné i jako investiční příležitost.
Byt je možné koupit na hypotéku, kterou Vám rádi pomůžeme vyřídit.
V případě zájmu o prohlídku nebo více informací mě prosím kontaktujte.
Cena:
3 980 000 CZK / Rezervováno
Poznámka k ceně:
Cena včetně provize RK a právního servisu
Upozornění:
Prodávající si vyhrazuje právo vybrat kupujícího na základě jím zvolených kritérií.
RX finance

Spočítejte si splátku hypotéky

Na kolik vás vyjde pořízení vlastního bydlení? Zadejte pár informací do naší hypoteční kalkulačky a hned si prohlédněte výsledek.

Kupní cena nemovitosti

3 980 000 Kč

Výše hypotéky

Doba splácení

Vypočítaná měsíční splátka

Úroková sazba 3.6%

260 990 Kč

Hypotéku zařídíme za vás

Ušetřete svůj čas i nervy. Naši makléři zařídí veškeré papírování a dovedou vás až k úspěšnému podpisu smlouvy v bance.

Nechte nám kontakt, náš makléř se v pracovní dny ozve do 24 hodin

* – toto pole je nutné vyplnit
Michal Zadražil
RE/MAX G8 Reality 4
Václavská 864
Kolín, 28002
Česká republika
Tel. na makléře: +420 774 942 980
Tel. do kanceláře: +420 603 392 333
E-mail: michal.zadrazil@re-max.cz

Potřebujete poradit/máte zájem o prohlídku?

* – toto pole je nutné vyplnit

Podrobné informace

Číslo zakázky:
ID 059-NP07808
Dispozice:
2+1
Číslo podlaží:
3
Počet podlaží v objektu:
5
Podlahová plocha:
65 m²
Druh objektu:
Cihlová
Stav objektu:
Dobrý
Vlastnictví:
Osobní
Typ nemovitosti:
Byty
Doprava:
Vlak, Silnice, MHD, Autobus
Elektřina:
230 V
Odpad:
Kanalizace
Užitná plocha:
65 m²
Zastavěná plocha:
262 m²
Plyn:
Plynovod
Počet podlaží pod zemí:
1
Telekomunikace:
Internet
Voda:
Dálkový rozvod
Vybaveno:
Ano
Energetická náročnost budovy:
G