Translate with 
MENU ZAVŘÍT

Prodej bytu 1+kk v družstevním vlastnictví 31 m², Praha 8 - Střížkov (ID 205-NP12430)

ulice Černého, Praha 8 – Střížkov mapa

3 490 000 Kč ( za nemovitost)
GMimořádně
nehospodárná

kk
1x
31 m2
12/13
Exkluzivně

Prodej družstevního bytu 1+kk, Střížkov

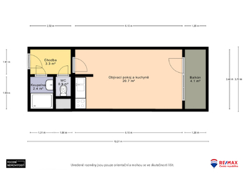
Družstevní byt 1+kk, 31 m² na Střížkově, určený k rekonstrukci. Ideální příležitost pro vlastní bydlení dle vašich představ nebo investici. Byt sestává z pokoje s kuchyní, předsíně, koupelny, samostatného WC. Byt se nachází ve 12. patře a disponuje balkonem s atraktivním výhledem. K dispozici jsou dva výtahy. K bytu přísluší sklepní kóje. Anuita bytu je plně splacena.
Pro lepší představu o současné a možné budoucí podobě bytu je součástí inzerce virtuální prohlídka a profesionální vizualizace.

Dům je ve velmi dobrém stavu, zateplený, plastová okna. Je spravován fungujícím a pečlivým družstvem, které se o objekt dlouhodobě stará.

Lokalita Střížkov patří mezi velmi žádané části Prahy – nabízí klidné bydlení s dostatkem zeleně a zároveň výbornou dopravní dostupnost. Stanice metra C Střížkov je v pěší vzdálenosti, v okolí se nachází kompletní občanská vybavenost včetně obchodů, restaurací, služeb i sportovních možností. Velkou výhodou je také snadné parkování – přímo u domu se nachází parkoviště s bezplatným stáním.

Zavolejte mi pro více informací a případnou prohlídku.

Prodávající si vyhrazuje právo vybrat kupujícího dle vlastních kritérií.

Výměry jsou pouze orientační.
Cena:
3 490 000 CZK / za nemovitost
Poznámka k ceně:
Upozornění:
Prodávající si vyhrazuje právo vybrat kupujícího na základě jím zvolených kritérií.
RX finance

Spočítejte si splátku hypotéky

Na kolik vás vyjde pořízení vlastního bydlení? Zadejte pár informací do naší hypoteční kalkulačky a hned si prohlédněte výsledek.

Kupní cena nemovitosti

3 490 000 Kč

Výše hypotéky

Doba splácení

Vypočítaná měsíční splátka

Úroková sazba 3.6%

260 990 Kč

Hypotéku zařídíme za vás

Ušetřete svůj čas i nervy. Naši makléři zařídí veškeré papírování a dovedou vás až k úspěšnému podpisu smlouvy v bance.

Nechte nám kontakt, náš makléř se v pracovní dny ozve do 24 hodin

* – toto pole je nutné vyplnit
Ing. Dana Sarvašová
RE/MAX Alfa
Spálená 97/29
Praha 1 - Nové Město, 11000
Česká republika
Tel. na makléře: +420 606 588 833
Tel. do kanceláře: +420 296 240 400
E-mail: dana.sarvasova@re-max.cz

Potřebujete poradit/máte zájem o prohlídku?

* – toto pole je nutné vyplnit

Podrobné informace

Číslo zakázky:
ID 205-NP12430
Dispozice:
1+kk
Číslo podlaží:
12
Počet podlaží v objektu:
13
Podlahová plocha:
31 m²
Druh objektu:
Panelová
Stav objektu:
Dobrý
Vlastnictví:
Družstevní
Typ nemovitosti:
Byty
Odpad:
Kanalizace
Užitná plocha:
31 m²
Zastavěná plocha:
486 m²
Výtah:
Ano
Energetická náročnost budovy:
G

Aukce

Do konce aukce zbývá:

Chci se do aukce zapojit

Zapojit se do aukce je možné vyplněním on-line formuláře, nebo vložením dokumentu „závazná nabídka ke koupi nemovitosti“.

Vyberte si prosím níže jednu z variant.

*
*
*
*
*
*

V případě, že máte zájem o tuto nemovitost, chcete se zúčastnit aukce, ale nemáte kód aukce, kontaktujte prosím makléře nemovitosti

Chci se zúčastnit aukce