Translate with 
MENU ZAVŘÍT

Prodej bytu 2+1 v osobním vlastnictví 64 m², Praha 10 - Vršovice (ID 218-NP06953)

ulice Bělocerkevská, Praha 10 – Vršovice mapa

8 990 000 Kč ( za nemovitost)
DMéně
úsporná

1x
2x
64 m2
3/5
Exkluzivně

Prodej bytu 2+1/B, Praha 10 Vršovice

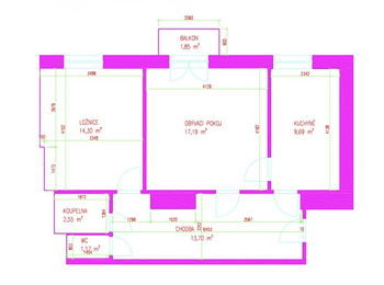
Hledáte prostor, který si přizpůsobíte přesně podle svých představ? Nabízíme k prodeji světlý byt o dispozici 2+1 (62 m²) s balkonem, situovaný ve 3. patře pečlivě udržovaného cihlového domu s výtahem. Byt je v udržovaném původním stavu. Koupelny a WC, prošly rekonstrukcí v roce 2010. Je tak ideální příležitostí pro ty, kteří se nespokojí s cizím vkusem a chtějí si kuchyni i obytné místnosti navrhnout od základu sami.
Balkon je přístupný z obývacího pokoje. K užívání bytu náleží praktický sklep o výměře 2,37 m2 v suterénu a výhodou je možnost využívání kočárkárny, kolárny a sušárny v suterénu. Výborná poloha bytu se skvělou dostupností do centra, tramvaje a autobusy v docházkové vzdálenosti. Vše potřebné máte doslova za rohem. Od nákupů v Tesco Express až po vyhlášené kavárny a restaurace. Díky skvělé dostupnosti MHD (tramvaje i autobusy v těsné blízkosti) jste v centru města během několika minut. Ideální volba pro startovací bydlení i jako bezpečná investice.
První prohlídky budou umožněny od 23. 2. 2026. Pro bližší informace kontaktujte makléřku nabídky.
Cena:
8 990 000 CZK / za nemovitost
Poznámka k ceně:
Upozornění:
Prodávající si vyhrazuje právo vybrat kupujícího na základě jím zvolených kritérií.
RX finance

Spočítejte si splátku hypotéky

Na kolik vás vyjde pořízení vlastního bydlení? Zadejte pár informací do naší hypoteční kalkulačky a hned si prohlédněte výsledek.

Kupní cena nemovitosti

8 990 000 Kč

Výše hypotéky

Doba splácení

Vypočítaná měsíční splátka

Úroková sazba 3.6%

260 990 Kč

Hypotéku zařídíme za vás

Ušetřete svůj čas i nervy. Naši makléři zařídí veškeré papírování a dovedou vás až k úspěšnému podpisu smlouvy v bance.

Nechte nám kontakt, náš makléř se v pracovní dny ozve do 24 hodin

* – toto pole je nutné vyplnit
Dana Rumanová
RE/MAX Anděl
Ostrovského 253/3
Praha 5 - Smíchov, 15000
Česká republika
Tel. na makléře: +420 731 618 464
Tel. do kanceláře: +420 725 293 030
E-mail: dana.rumanova@re-max.cz

Potřebujete poradit/máte zájem o prohlídku?

* – toto pole je nutné vyplnit

Podrobné informace

Číslo zakázky:
ID 218-NP06953
Dispozice:
2+1
Číslo podlaží:
3
Počet podlaží v objektu:
5
Podlahová plocha:
64 m²
Druh objektu:
Cihlová
Stav objektu:
Velmi dobrý
Vlastnictví:
Osobní
Typ nemovitosti:
Byty
Charakter okolní zástavby:
Obytná
K nastěhování:
11. 2. 2026
Doprava:
MHD
Elektřina:
230 V
Občanská vybavenost:
Kompletní síť obchodů a služeb
Odpad:
Kanalizace
Ostatní rozvody:
Kabelové rozvody
Užitná plocha:
62 m²
Plyn:
Plynovod
Počet podlaží pod zemí:
1
Rok rekonstrukce:
2004
Rok výstavby:
1 954
Telekomunikace:
Telefon, Internet
Umístění v chráněných lokalitách:
Ochranné pásmo
Voda:
Dálkový rozvod
Vybaveno:
Ano
Výška stropu:
2,65
Výtah:
Ano
Energetická náročnost budovy:
D