Translate with 
MENU ZAVŘÍT

Prodej domu 225 m², Opočno (ID 305-NP00869)

ulice Palackého, Opočno mapa

7 950 000 Kč ( za nemovitost)
GMimořádně
nehospodárná

5+
225 m2
713 m2
2
Exkluzivně

Prodej rodinného domu Palackého 562, Opočno

Nabízíme k prodeji rodinný dům v ulici Palackého v Opočně.
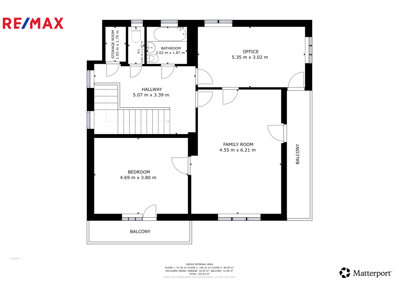
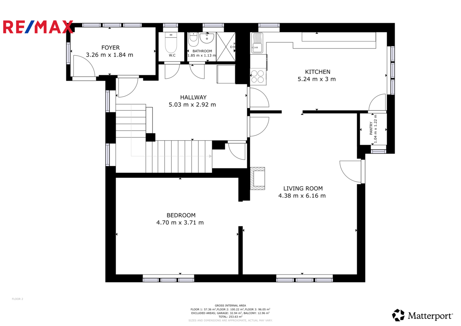
Dům je navržen jako vícegenerační a 2 bytovými jednotkami. Dům je dvoupodlažní, celý podsklepený. Půdorysný rozměr domu je 10 x 10 plus veranda. Dispozice: zádvěří, prostorná chodba, samostatná toaleta a koupelna se sprchovým koutem, obývací pokoj s krbovými kamny a ložnice. V 2. nadzemním podlaží je stejně dispozičně řešený prostor s výjimkou, s tím že prostor kuchyně je nahrazen jako dětský pokoj a koupelna v 2. nadzemním podlaží je s vanou.
V podzemním podlaží domu (sklepě) je garáž na jeden automobil a další místnosti řešené jako prádelna a úložné prostory.
Topení v domě zajišťuje tepelné čerpadlo. Teplou vodu elektrický bojler. Dům je napojen na obecní vodovod a kanalizaci.
Na zahradě je další garáž s prostorem pro zahradní techniku a dílnu. Tento objekt je částečně podsklepen.
Dům je lokalizován do klidné části města Opočno. Parkování v garáži nebo před domem.
V okolí domu lekárna a restaurace. Kupkovo náměstí (centrum Opočna) je vzdáleno cca 500 m. ZŠ do 400 metrů. MŠ do 210 metrů.
Dům je po převodu vlastnických práv ihned k dispozici.
Cena:
7 950 000 CZK / za nemovitost
Poznámka k ceně:
včetně právního a realitního servisu
Upozornění:
Prodávající si vyhrazuje právo vybrat kupujícího na základě jím zvolených kritérií.
RX finance

Spočítejte si splátku hypotéky

Na kolik vás vyjde pořízení vlastního bydlení? Zadejte pár informací do naší hypoteční kalkulačky a hned si prohlédněte výsledek.

Kupní cena nemovitosti

7 950 000 Kč

Výše hypotéky

Doba splácení

Vypočítaná měsíční splátka

Úroková sazba 3.6%

260 990 Kč

Hypotéku zařídíme za vás

Ušetřete svůj čas i nervy. Naši makléři zařídí veškeré papírování a dovedou vás až k úspěšnému podpisu smlouvy v bance.

Nechte nám kontakt, náš makléř se v pracovní dny ozve do 24 hodin

* – toto pole je nutné vyplnit
Ing. Marcel Zadrobílek
RE/MAX Infinity
Masarykovo náměstí 392/14
Hradec Králové, 50002
Česká republika
Tel. na makléře: +420 737 580 065
Tel. do kanceláře: +420 737 580 065
E-mail: marcel.zadrobilek@re-max.cz

Potřebujete poradit/máte zájem o prohlídku?

* – toto pole je nutné vyplnit

Podrobné informace

Číslo zakázky:
ID 305-NP00869
Poloha objektu:
Samostatný
Počet podlaží v objektu:
2
Užitná plocha:
225 m²
Plocha parcely:
713 m²
Druh objektu:
Cihlová
Stav objektu:
Dobrý
Typ nemovitosti:
Domy a vily
Doprava:
Vlak, Silnice, Autobus
Elektřina:
230 V, 400 V
Garáž:
Ano
Odpad:
Kanalizace
Zastavěná plocha:
292 m²
Plyn:
Plynovod
Počet podlaží pod zemí:
1
Telekomunikace:
Telefon, Internet
Typ domu:
Patrový
Umístění objektu:
Klidná část obce
Voda:
Dálkový rozvod
Vybaveno:
Ano
Energetická náročnost budovy:
G