Translate with 
MENU ZAVŘÍT

Prodej pozemku 282 m², Dobříč (ID 010-NP05034)

Dobříč – část obce Dobříč u Prahy mapa

4 680 000 Kč ( za nemovitost)

282 m2
Exkluzivně

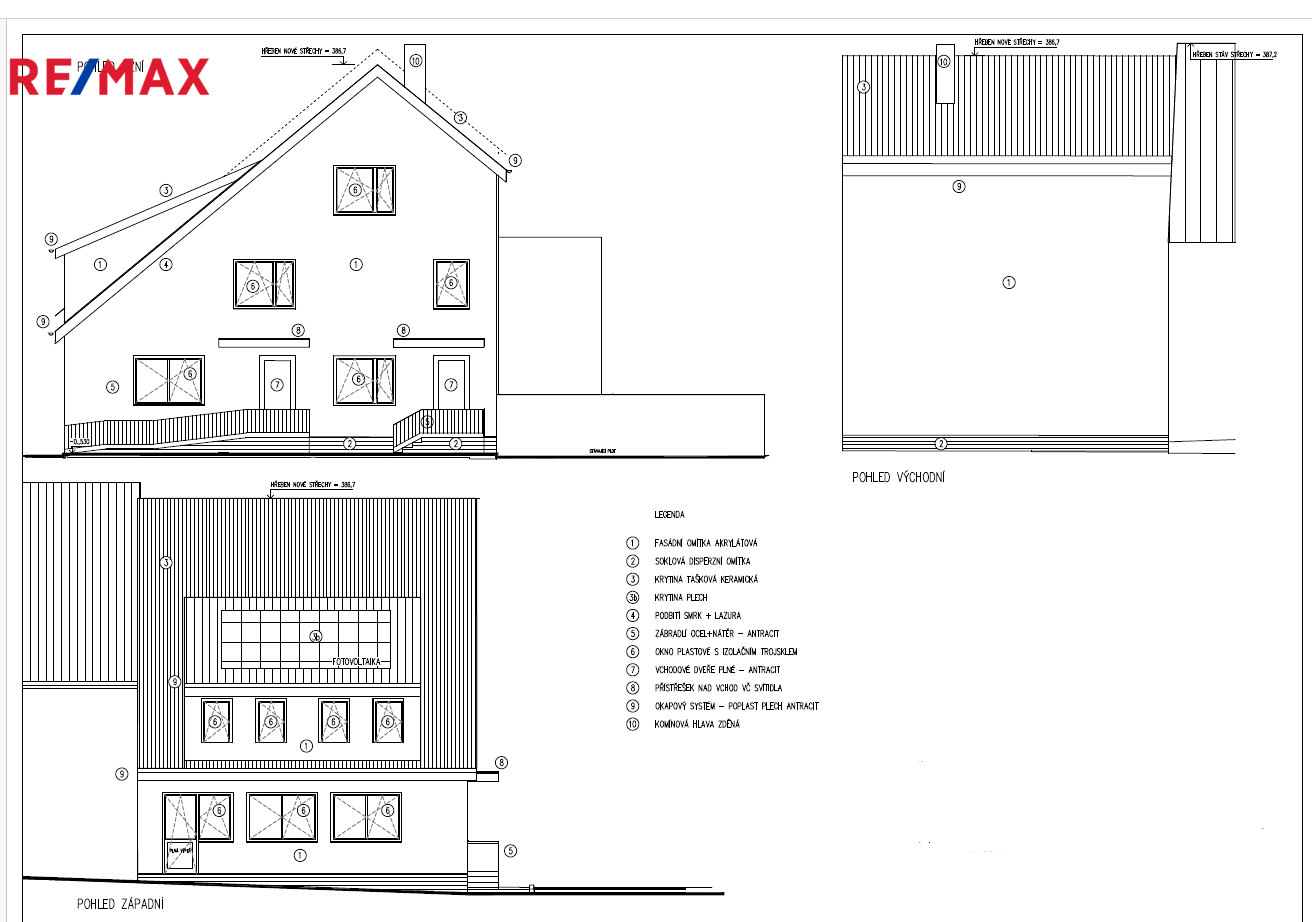
Prodej stavebního pozemku 282 m2 v Dobříči

Exkluzivně nabízíme pozemek se stavebním povolením pro výstavbu domu o čtyřech jednotkách.

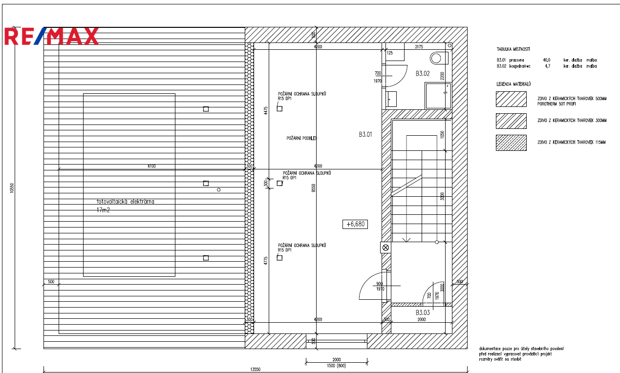
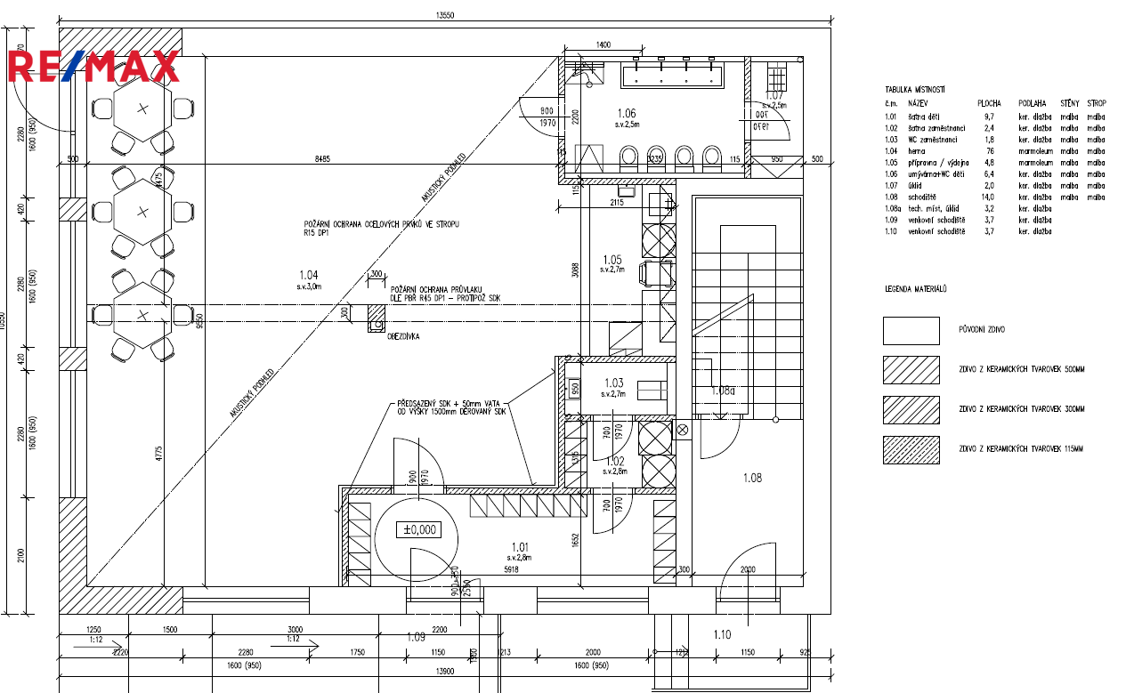
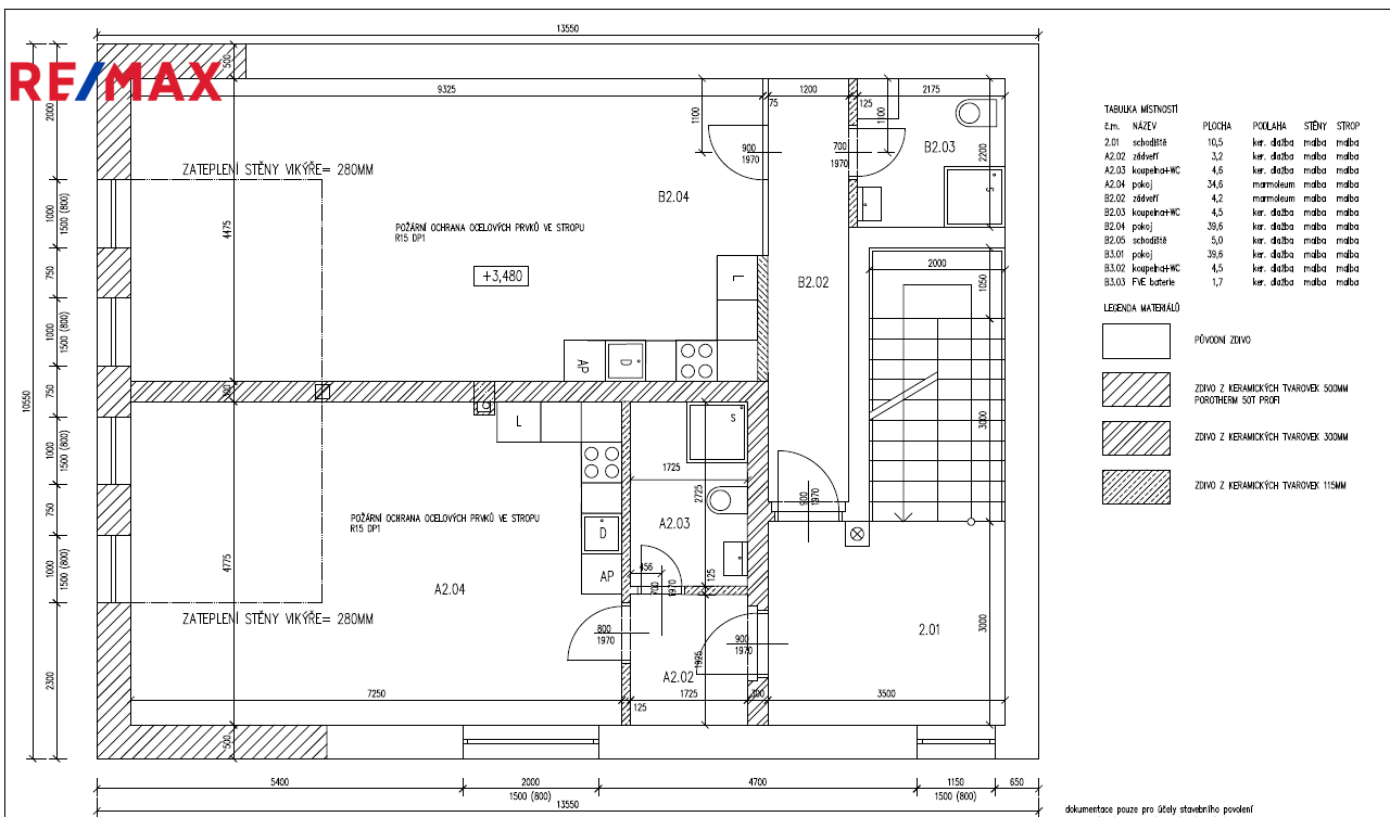
V návrhu je v přízemí velká dětská skupina s kapacitou 19 dětí vč. dětí pod 3 roky věku (od 1 roku věku). V prvním patře jsou 2 bytové jednotky 1kk a v podkroví je další jednotka (nebytový prostor - pracovna/ateliér s koupelnou a WC).
Zastavěná plocha 10,5*13,5 + 1,3*7,8+1,3*2,8= 156 m2. Celková užitná plocha je 286,3 m2.
Pro objekt jsou navrženy nové přípojky vody, kanalizace, plynu.
Orientační náklady stavby jsou 12 mil. Kč.
Objekt bude napojen na stávající areál s přístupem z místní komunikace. V rámci stavební parcely je dům umístěn na jižním okraji. Objekt bude řešen jako nepodsklepená stavba s přízemím a dvěma nadzemními podlažími.
Vytápění objektu bude teplovodní s radiátory a kondenzačním kotlem na plynná paliva. Kotel je umístěný v technické místnosti pod schody. Příprava TUV bude probíhat výhradně v zásobníkovém ohřívači o objemu 250 litrů, napojeném na plynový kondenzační kotel. PENB B.
V obci Dobříč je fotbalové hřiště a dvě dětská hřiště. Veškerá občanská vybavenost je okolních blízkých obcích (v Rudné, Nučicích, Jinočanech a Zbuzanech). Nedaleko je autobusová zastávka, ze které se za 10 minut pohodlně dostanete na metro B Zličín.

Pro více informací neváhejte kontaktovat realitního makléře.
Cena:
4 680 000 CZK / za nemovitost
Poznámka k ceně:
cena je včetně provize a veškerého právního servisu
Upozornění:
Prodávající si vyhrazuje právo vybrat kupujícího na základě jím zvolených kritérií.
RX finance

Spočítejte si splátku hypotéky

Na kolik vás vyjde pořízení vlastního bydlení? Zadejte pár informací do naší hypoteční kalkulačky a hned si prohlédněte výsledek.

Kupní cena nemovitosti

4 680 000 Kč

Výše hypotéky

Doba splácení

Vypočítaná měsíční splátka

Úroková sazba 3.6%

260 990 Kč

Hypotéku zařídíme za vás

Ušetřete svůj čas i nervy. Naši makléři zařídí veškeré papírování a dovedou vás až k úspěšnému podpisu smlouvy v bance.

Nechte nám kontakt, náš makléř se v pracovní dny ozve do 24 hodin

* – toto pole je nutné vyplnit
Otakar Schuma
RE/MAX Search
Na bělidle 309/31
Praha 5 - Smíchov, 15000
Česká republika
Tel. na makléře: +420 777 051 051
Tel. do kanceláře: +420 734 526 176
E-mail: otakar.schuma@re-max.cz

Potřebujete poradit/máte zájem o prohlídku?

* – toto pole je nutné vyplnit

Podrobné informace

Číslo zakázky:
ID 010-NP05034
Druh pozemku:
Pro bydlení
Celková plocha:
282 m²
Inženýrské sítě:
Vodovod, Kanalizace, Plyn, Elektřina
Typ nemovitosti:
Pozemky
Elektřina:
230 V
Odpad:
Kanalizace
Plyn:
Plynovod
Umístění objektu:
Klidná část obce
Voda:
Dálkový rozvod