Translate with 
MENU ZAVŘÍT

Prodej bytu 2+1 v osobním vlastnictví 58 m², Slavkov u Brna (ID 268-NP03461)

ulice sídliště Nádražní, Slavkov u Brna mapa

4 420 000 Kč ( za nemovitost)
GMimořádně
nehospodárná

1x
2x
58 m2
3/4
Exkluzivně

Byt 2+1 v klidné části Slavkova

Přemýšlíte o novém domově či výhodné investici v klidné části Slavkova?

Ve výhradním zastoupení majitelky vám nabízíme k prodeji byt o dispozici 2 + 1, nacházející se ve druhém patře revitalizovaného cihlového domu ve Slavkově u Brna, vzdáleného pouhých 20 minut od Brna.
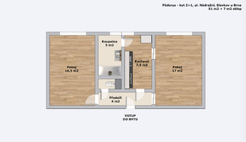
Tento světlý byt o celkové ploše 58 m² a užitné ploše 51 m² se pyšní dvěma samostatnými neprůchozími pokoji, které poskytují příjemné a komfortní bydlení. Oba pokoje jsou přístupné z předsíně, obývací pokoj navíc i z kuchyně.

Kuchyně je vybavena moderní kuchyňskou linkou, která obsahuje i elektrickou troubu a varnou desku. Je tu i příruční spíž.
Koupelna, přístupná z kuchyně, je vybavena sprchovým koutem a dostatečný prostor pro umístění pračky. Teplá voda je zajištěna elektrickým bojlerem a topení je řešeno radiátory s vlastním plynovým kotlem, což je efektivním řešením pro vytápění bytu a úsporám za vytápění v chladných měsících.

V bytě jsou na podlaze původní parkety, které dodávají interiéru příjemnou atmosféru, zatímco koupelna má keramickou podlahu, která je snadná na údržbu.
V rámci revitalizace domu byly vyměněny stupačky, avšak elektřina zůstala původní.
K bytové jednotce náleží také prostorný zděný sklep o velikosti 7 m², který poskytuje další úložný prostor.

Parkování je možné nejen přímo u domu, ale i v přilehlých ulicích.
Pro rodiny s dětmi je za domem k dispozici dětské hřiště, kde si mohou hrát malé i velké děti.
Doprava je zde velmi dobře dostupná, a to jak na dálnici, tak na silnici, MHD a autobusem.
Ve Slavkově najdete i veškerou občanskou vybavenost pro příjemné bydlení. Je tu nejen nádherný zámek se zahradou vhodnou k procházkám a posezení, ale i obchody, školy, restaurace a sportoviště.

Tento byt se nachází v atraktivní lokalitě. Je ideální nejen pro bydlení, ale i jako skvělá investice k pronájmu.
V případě zájmu o prohlídku nás neváhejte kontaktovat.
Cena:
4 420 000 CZK / za nemovitost
Poznámka k ceně:
Cena je včetně provize RK a právních služeb
Upozornění:
Prodávající si vyhrazuje právo vybrat kupujícího na základě jím zvolených kritérií.
RX finance

Spočítejte si splátku hypotéky

Na kolik vás vyjde pořízení vlastního bydlení? Zadejte pár informací do naší hypoteční kalkulačky a hned si prohlédněte výsledek.

Kupní cena nemovitosti

4 420 000 Kč

Výše hypotéky

Doba splácení

Vypočítaná měsíční splátka

Úroková sazba 3.6%

260 990 Kč

Hypotéku zařídíme za vás

Ušetřete svůj čas i nervy. Naši makléři zařídí veškeré papírování a dovedou vás až k úspěšnému podpisu smlouvy v bance.

Nechte nám kontakt, náš makléř se v pracovní dny ozve do 24 hodin

* – toto pole je nutné vyplnit
Bohdana Polgárová
RE/MAX Delux
Křenová 538/22
Brno, 60200
Česká republika
Tel. na makléře: +420 774 231 266
Tel. do kanceláře: +420 602 703 897
E-mail: bohdana.polgarova@re-max.cz

Potřebujete poradit/máte zájem o prohlídku?

* – toto pole je nutné vyplnit

Podrobné informace

Číslo zakázky:
ID 268-NP03461
Dispozice:
2+1
Číslo podlaží:
3
Počet podlaží v objektu:
4
Podlahová plocha:
58 m²
Druh objektu:
Cihlová
Stav objektu:
Velmi dobrý
Vlastnictví:
Osobní
Typ nemovitosti:
Byty
Charakter okolní zástavby:
Obytná
K nastěhování:
28. 1. 2026
Doprava:
Dálnice, Silnice, MHD, Autobus
Elektřina:
230 V
Odpad:
Kanalizace
Ostatní rozvody:
Kabelové rozvody
Užitná plocha:
51 m²
Zastavěná plocha:
399 m²
Plyn:
Plynovod
Umístění objektu:
Klidná část obce
Voda:
Dálkový rozvod
Energetická náročnost budovy:
G