Translate with 
MENU ZAVŘÍT

Prodej domu 168 m², Oselce (ID 003-NP04841)

Oselce – část obce Kotouň mapa

4 590 000 Kč ( za nemovitost)
GMimořádně
nehospodárná

5+
168 m2
336 m2
1
Exkluzivně Rezervace

Prodej RD 5+1 po částečné rekonstrukci

Toužíte po klidném domově obklopeném přírodou, nebo po chalupě, kam budete jezdit nabírat energii? Tato nemovitost splní obojí.
Nabízíme k prodeji prostorný rodinný dům o dispozici 5+1 a užitné ploše cca 163 m², situovaný v klidné přírodní lokalitě obce Kotouň. Dům je samostatně stojící, stavba je smíšená a v posledních letech prošel částečnou rekonstrukcí.
Nemovitost je rozdělena na dvě části, což umožňuje komfortní bydlení i využití pro vícečlennou rodinu či návštěvy. Hlavní obytná část nabízí dispozici 2+1 s chodbou a koupelnou se sprchovým koutem a WC. Byly zde provedeny nové rozvody elektřiny, opravy omítek a výmalba. Součástí je nová moderní kuchyně s funkčními kamny napojenými na komín. V celém domě je rozvedeno plynové vytápění s radiátory, plynový kotel je značky IMMERGAS. V obytných místnostech jsou nové dřevěné podlahy, které jsou včetně stropů zatepleny silnou vrstvou izolací.
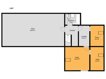
Druhá část domu nabízí technické zázemí, komoru a stodolu, kterou lze využít také jako garáž či sklad. V podkroví se nachází obývací pokoj, dva menší pokoje a koupelna s vanou a WC, místem na pračku. Celé obytné podkroví je zateplené a je zde ještě prostorná půda, kterou lze využít na další obytný či úložný prostor. Před domem se nachází soukromý dvůr vhodný k posezení, za domem oplocená zahrada se vzrostlými stromy a vyvýšeným záhonem. Ve sklepě přístupném ze zahrady je umístěna jímka.
Dům je ve dobrém technickém stavu, částečně zateplený. Energetická náročnost budovy je aktuálně vedena třídou G.
Obec Kotouň nabízí klidné bydlení obklopené přírodou a zároveň dobrou dostupnost do okolních měst. V blízkosti se nachází vyhledávaná studánka s léčivou vodou, prodejna potravin COOP. Nejbližší občanská vybavenost je v obci Oselce ( 2 km ) nebo Nepomuku ( 9km ). Pro více informací nebo domluvení prohlídky mě neváhejte kontaktovat.
Prodávající si vyhrazuje právo vybrat kupujícího na základě jím zvolených kritérií.
Cena:
4 590 000 CZK / Rezervováno
RX finance

Spočítejte si splátku hypotéky

Na kolik vás vyjde pořízení vlastního bydlení? Zadejte pár informací do naší hypoteční kalkulačky a hned si prohlédněte výsledek.

Kupní cena nemovitosti

4 590 000 Kč

Výše hypotéky

Doba splácení

Vypočítaná měsíční splátka

Úroková sazba 3.6%

260 990 Kč

Hypotéku zařídíme za vás

Ušetřete svůj čas i nervy. Naši makléři zařídí veškeré papírování a dovedou vás až k úspěšnému podpisu smlouvy v bance.

Nechte nám kontakt, náš makléř se v pracovní dny ozve do 24 hodin

* – toto pole je nutné vyplnit
Tereza Santnerová
REMAX G8 Reality 3
Francouzská třída 2022/15
Plzeň, 32600
Česká republika
Tel. na makléře: +420 734 240 842
Tel. do kanceláře: +420 377 422 427
E-mail: tereza.santnerova@re-max.cz

Potřebujete poradit/máte zájem o prohlídku?

* – toto pole je nutné vyplnit

Podrobné informace

Číslo zakázky:
ID 003-NP04841
Poloha objektu:
Samostatný
Počet podlaží v objektu:
1
Užitná plocha:
168 m²
Plocha parcely:
336 m²
Druh objektu:
Smíšená
Stav objektu:
Velmi dobrý
Typ nemovitosti:
Domy a vily
Charakter okolní zástavby:
Obytná
K nastěhování:
24. 2. 2026
Elektřina:
230 V
Zastavěná plocha:
163 m²
Typ domu:
Patrový
Voda:
Dálkový rozvod
Energetická náročnost budovy:
G