Translate with 
MENU ZAVŘÍT

Prodej domu 100 m², Střelice (ID 114-NP10609)

Střelice, okres Plzeň-jih mapa

4 300 000 Kč ( za nemovitost)
GMimořádně
nehospodárná

1x
100 m2
480 m2
0
Exkluzivně

Rodinný dům 4+kk s pozemkem 480 m² ve Střelicích u Stodu

Hledáte klid venkova s výhodami města? Exkluzivně nabízíme k prodeji rodinný dům v malebné obci Střelice u Stodu, kde naleznete plnou občanskou vybavenost. Tato lokalita spojuje kouzlo přírody s moderním standardem bydlení a zároveň nabízí rychlou dostupnost do Plzně, pouhých 20 minut autem, v obci je také autobusové spojení. Budoucí přeložka silnice D5 zajistí ještě rychlejší a pohodlnější spojení a zároveň zvýší hodnotu nemovitosti v této oblasti.

Obec Střelice je ideálním místem pro rodiny i jednotlivce, kteří hledají kombinaci klidu, přírody a dostupné občanské vybavenosti pro bydlení nebo rekreaci. V okolí najdete krásnou přírodu ideální pro procházky a volnočasové aktivity i historický mlýn, který připomíná bohatou historii regionu. K relaxaci a koupání slouží nedaleký zatopený lom v Hradci s křišťálově čistou vodou. Blízké lesy pak nabízejí ideální podmínky pro procházky i cyklistiku, nebo houbaření. V sousedním městě Stod, vzdáleném jen dva kilometry, je k dispozici kompletní infrastruktura včetně nemocnice, škol, školek, pošty a nákupních center.

Na hranici pozemku je přiveden plyn, kanalizace a elektřina. Voda je řešena vlastním vrtem na pozemku. Projekt stavby má platné stavební povolení.

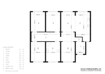
Modulový přízemní rodinný dům 4+kk s orientační užitnou plochou 100 m² je navržen jako samostatně stojící přízemní objekt s modulovou konstrukcí, postavený na betonových patkách. Dispozice zahrnuje obývací pokoj s kuchyňským koutem, ložnici, dva pokoje, koupelnu a závětří. Světlá výška místností je ca. 2,5 metru. Střecha je sedlová s výškou hřebene ca. 5,5 metru a je připravena k dokončení. Fasáda je řešena z pohledových modulových panelů s PIR zateplením o tloušťce 160 mm. Okna a dveře jsou řešeny posuvným systémem a francouzskými dveřmi vedoucími do zahrady. Základy tvoří železobetonové patky o rozměrech 500 × 500 × 800 mm s ocelovým nosným rámem HEB 200 mm. Samonosná ocelová konstrukce domu se sendvičovým zateplením je doplněna vnitřními SDK obklady a příčkami o tloušťce 100 mm. Strop je modulový a střešní konstrukci tvoří dřevěné sbíjené vazníky. Vytápění je zajištěno plynovým kondenzačním kotlem INTERGAS Kombi Kompakt HRE 36/30 A s radiátory. Stavební úřad potvrdil podmínky pro vydání společného souhlasu, ohlášení stavby.

Celková plocha pozemků p. č. 5/5, 608/4, 632/4 je 480 m², pozemek je rovinatý až mírně svažitý a bez oplocení.

Dům se prodává v nedokončeném stavu, viz fotografie, a umožňuje novému majiteli dokončit krytinu střechy se zateplením, zateplení spodní části domu a případného zateplení fasády v případě potřeby. Pak už jen dokončit rozvody po domě v podhledech a pod podlahou, napojit objekt na připravené inženýrské sítě a můžete rychle bydlet.

Tento projekt nabízí jedinečnou příležitost vytvořit si vlastní bydlení za rozumné náklady v klidném a perspektivním prostředí.

Pro více informací se na mě neváhejte obrátit. Prodávající si vyhrazuje právo vybrat kupujícího na základě jím zvolených kritérií.
Cena:
4 300 000 CZK / za nemovitost
Poznámka k ceně:
Upozornění:
Prodávající si vyhrazuje právo vybrat kupujícího na základě jím zvolených kritérií.
RX finance

Spočítejte si splátku hypotéky

Na kolik vás vyjde pořízení vlastního bydlení? Zadejte pár informací do naší hypoteční kalkulačky a hned si prohlédněte výsledek.

Kupní cena nemovitosti

4 300 000 Kč

Výše hypotéky

Doba splácení

Vypočítaná měsíční splátka

Úroková sazba 3.6%

260 990 Kč

Hypotéku zařídíme za vás

Ušetřete svůj čas i nervy. Naši makléři zařídí veškeré papírování a dovedou vás až k úspěšnému podpisu smlouvy v bance.

Nechte nám kontakt, náš makléř se v pracovní dny ozve do 24 hodin

* – toto pole je nutné vyplnit
Michal Bláha
RE/MAX Horizont
Třebešovská 2869/94
Praha 9 - Horní Počernice, 19300
Česká republika
Tel. na makléře: +420 731 098 231
Tel. do kanceláře: +420 733 149 056
E-mail: michal.blaha@re-max.cz

Potřebujete poradit/máte zájem o prohlídku?

* – toto pole je nutné vyplnit

Podrobné informace

Číslo zakázky:
ID 114-NP10609
Poloha objektu:
Řadový
Užitná plocha:
100 m²
Plocha parcely:
480 m²
Druh objektu:
Montovaná
Stav objektu:
Ve výstavbě (hrubá stavba)
Typ nemovitosti:
Domy a vily
Charakter okolní zástavby:
Venkovská
K nastěhování:
13. 3. 2026
Doprava:
Autobus
Elektřina:
230 V
Odpad:
Kanalizace
Zastavěná plocha:
114 m²
Plyn:
Plynovod
Počet parkovacích míst:
2
Typ domu:
Přízemní
Umístění objektu:
Klidná část obce
Vybaveno:
Ano
Energetická náročnost budovy:
G