Translate with 
MENU ZAVŘÍT

Pronájem bytu 1+kk v osobním vlastnictví 34 m², Praha 5 - Košíře (ID 114-NP10507)

ulice Musílkova, Praha 5 – Košíře mapa

20 100 Kč ( za měsíc)
GMimořádně
nehospodárná

kk
1x
34 m2
5/5
Exkluzivně

Pronájem moderního bytu 1+kk v klidné části Prahy 5

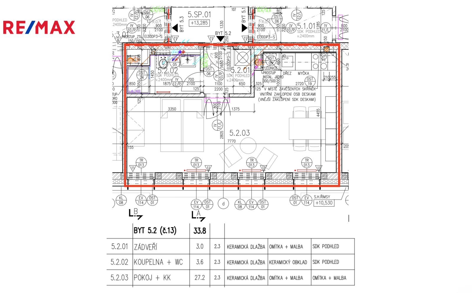
K dlouhodobému pronájmu nabízím nově zrekonstruovaný byt 1+kk o ploše 33,8 m², jenž je umístěný v 5. nadzemním podlaží nově zrevitalizovaného cihlového domu s výtahem v ulici Musílkova, v oblíbené části Prahy 5 - Košíře. Dům prošel kompletní rekonstrukcí včetně moderní kotelny (2026) a nabízí celkem 16 nájemních jednotek (14 bytů a 2 ateliéry) navržených s důrazem na moderní, komfortní a dlouhodobé bydlení. Nastěhování je možné ihned.

Dispozice bytu (5.2.) zahrnuje vstupní chodbu se skříní, která zajišťuje základní úložný prostor a přípravou na pračku, designovou koupelnu se sprchovým koutem, umyvadlem s koupelnovou skříňkou, WC. Z chodby se vstupuje do prostorného světlé pokoje s kuchyňským koutem, jenž disponuje moderní kuchyňskou linkou se spotřebiči - lednicí s mrazákem, troubou, indukční varnou deskou, myčkou, dřezem a digestoří. V obývací části je instalována klimatizace i elektrické předokenní rolety, které zvyšují komfort bydlení po celý rok. Internetové připojení je řešeno přes O2 / CETIN, v bytě jsou připravené datové zásuvky. Okna jsou trojskla, tudíž zaručují velmi dobrou izolaci. Topení v obývací části bude osazené v nejbližších dnech.

Finanční podmínky:
Nájemné = 20 100 Kč / měsíčně.
Zálohy na služby = 1 osoba = 2.000,- Kč / měs., 2 osoby = 3.000,- Kč / měs. Elektřina se převádí na nájemce.
Jistota (kauce) ve výši 30 000,-Kč.
Rezervační platba/provize = 24 321,- Kč.

Bytový dům se nachází v klidné a zelené části Košíře, která je vyhledávaná pro svou příjemnou atmosféru a výbornou dopravní dostupnost. V okolí je kompletní občanská vybavenost - obchody, kavárny, restaurace i ostatní služby. Autobusová zastávka "Pod Školou" je do 5 min. chůzí, tramvajová zastávka "Kavalírka" je do 10 min. chůzí od domu a díky tomu se během několika minut pohodlně dostanete do centra města i na stanici metra =B= Anděl.

Rád se s Vámi setkám na prohlídce bytů. Pronajímající si vyhrazuje právo vybrat nájemce na základě jím zvolených kritérií.
Cena:
20 100 CZK / za měsíc
Poznámka k ceně:
Upozornění:
Pronajímající si vyhrazuje právo vybrat nájemce na základě jím zvolených kritérií.
David Smekal
RE/MAX Horizont
Třebešovská 2869/94
Praha 9 - Horní Počernice, 19300
Česká republika
Tel. na makléře: +420 731 682 341
Tel. do kanceláře: +420 733 149 056
E-mail: david.smekal@re-max.cz

Potřebujete poradit/máte zájem o prohlídku?

* – toto pole je nutné vyplnit

Podrobné informace

Číslo zakázky:
ID 114-NP10507
Dispozice:
1+kk
Číslo podlaží:
5
Počet podlaží v objektu:
5
Podlahová plocha:
34 m²
Druh objektu:
Cihlová
Stav objektu:
Po rekonstrukci
Vlastnictví:
Osobní
Typ nemovitosti:
Byty
Charakter okolní zástavby:
Obytná
K nastěhování:
1. 3. 2026
Doprava:
Dálnice, Silnice, MHD, Autobus
Elektřina:
230 V
Odpad:
Kanalizace
Užitná plocha:
34 m²
Plyn:
Plynovod
Rok rekonstrukce:
2026
Telekomunikace:
Internet
Umístění objektu:
Klidná část obce
Voda:
Dálkový rozvod
Výtah:
Ano
Energetická náročnost budovy:
G