Translate with 
MENU ZAVŘÍT

Prodej bytu 2+1 v osobním vlastnictví 66 m², Praha 4 - Modřany (ID 201-NP03323)

ulice Pod sady, Praha 4 – Modřany mapa

8 860 000 Kč ( za nemovitost)
GMimořádně
nehospodárná

1x
2x
66 m2
3/4
Exkluzivně

Nový byt 2+1 s balkónem v komorním domě – Praha 4 – Modřany

Hledáte nový byt v Praze, kde máte skutečnou volbu, zda koupit do osobního vlastnictví, nebo zvolit družstevní variantu s nižší vstupní investicí? Právě to nabízí tento nový byt 2+1 v klidné části pražských Modřan.

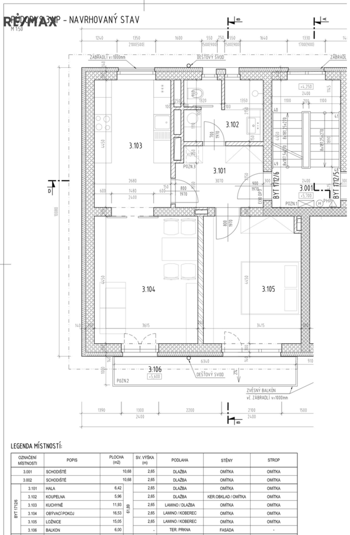
Byt má užitnou plochu 55,89 m², k tomu balkón 6 m² a sklepní jednotku 3,85 m². Celková plocha tvořená bytem, balkónem a sklepem činí 65,74 m². Vzniká v rámci nové zděné nástavby cihlového domu z roku 1960 v ulici Pod Sady.

Byt se nachází v předposledním nadzemním podlaží domu. Nad bytem je ještě jedno podlaží ukončené sedlovou střechou, takže nejste přímo pod střechou, ale zároveň máte vyšší výhled do zeleně, s dostatkem světla a soukromí.

Dispoziční řešení a výměry:
- kuchyně: 11,93 m²
- obývací pokoj: 16,53 m²
- ložnice: 15,05 m²
- hala / předsíň: 6,42 m²
- koupelna s toaletou: 5,96 m²
- balkón: 6 m²
- sklepní jednotka: 3,85 m²

Balkón je orientován na jihovýchod a nabízí výhled do zeleně se vzrostlými stromy, ideální místo pro ranní kávu nebo klidné posezení. Ložnice a koupelna jsou orientovány na severozápad.

Byt bude předán ve stavu s dokončenými podlahami, osazenými zárubněmi a interiérovými dveřmi a kompletně hotovou koupelnou. Pro kuchyňskou linku bude připravena elektroinstalace a napojení na vodu i odpad.

Vytápění je řešeno radiátory, zdrojem tepla i ohřevu vody je plynový kondenzační kotel.
K celé nové nástavbě se váže záruka 5 let, což znamená nový byt bez starostí.

Možnosti financování:
- osobní vlastnictví: kupní cena 8.860.000 Kč
Při financování hypotečním úvěrem je do doby převodu bytu do osobního vlastnictví nutné zajistit úvěr zástavou jiné nemovitosti. Po převodu bytu do osobního vlastnictví lze zástavu standardně převést na tento byt.

- družstevní vlastnictví: platba za převod družstevního podílu ve výši 4.230.000 Kč, zbývající část je hrazena formou měsíčních splátek družstvu, jejichž výše je individuálně projednána

Převod bytu do osobního vlastnictví je možný ihned po dokončení výstavby, plánovaném na přelom 2. a 3. čtvrtletí 2026 a byl již dopředu schválen družstvem.

Dům je komorní, s celkem 16 bytovými jednotkami (8 původních a 8 nových), rozdělenými do dvou vchodů. Výstavba probíhá dle harmonogramu, dokončení je plánováno na září 2026. Dům není vybaven výtahem.

Energetický štítek je nyní veden v třídě G, po dokončení projektu bude zpracován aktuální průkaz energetické náročnosti budovy s výrazně úspornější hodnotou.

Součástí nabídky jsou vizualizace pro inspiraci, znázorňující možnou podobu obývacího pokoje, kuchyně a ložnice.

Pro více informací o bytě, projektu nebo možnostech financování mě neváhejte kontaktovat. Prodávající si vyhrazuje právo vybrat kupujícího na základě jím zvolených kritérií.
Cena:
8 860 000 CZK / za nemovitost
Poznámka k ceně:
Cena je včetně provize realitní kanceláře.
Upozornění:
Prodávající si vyhrazuje právo vybrat kupujícího na základě jím zvolených kritérií.
RX finance

Spočítejte si splátku hypotéky

Na kolik vás vyjde pořízení vlastního bydlení? Zadejte pár informací do naší hypoteční kalkulačky a hned si prohlédněte výsledek.

Kupní cena nemovitosti

8 860 000 Kč

Výše hypotéky

Doba splácení

Vypočítaná měsíční splátka

Úroková sazba 3.6%

260 990 Kč

Hypotéku zařídíme za vás

Ušetřete svůj čas i nervy. Naši makléři zařídí veškeré papírování a dovedou vás až k úspěšnému podpisu smlouvy v bance.

Nechte nám kontakt, náš makléř se v pracovní dny ozve do 24 hodin

* – toto pole je nutné vyplnit
Jan Halík
RE/MAX Atrium
Podolská 811/138
Praha 4 - Podolí, 14700
Česká republika
Tel. na makléře: +420 603 377 791
Tel. do kanceláře: +420 606 726 515
E-mail: jan.halik@re-max.cz

Potřebujete poradit/máte zájem o prohlídku?

* – toto pole je nutné vyplnit

Podrobné informace

Číslo zakázky:
ID 201-NP03323
Dispozice:
2+1
Číslo podlaží:
3
Počet podlaží v objektu:
4
Podlahová plocha:
66 m²
Druh objektu:
Cihlová
Stav objektu:
Novostavba
Vlastnictví:
Osobní
Typ nemovitosti:
Byty
Charakter okolní zástavby:
Obytná
Doprava:
Vlak, Dálnice, Silnice, MHD, Autobus
Elektřina:
230 V
Odpad:
Kanalizace
Ostatní rozvody:
Kabelová televize, Kabelové rozvody
Užitná plocha:
56 m²
Plyn:
Plynovod
Počet podlaží pod zemí:
1
Rok výstavby:
2 026
Telekomunikace:
Telefon, Internet
Umístění objektu:
Klidná část obce
Voda:
Dálkový rozvod
Energetická náročnost budovy:
G