Translate with 
MENU ZAVŘÍT

Pronájem bytu 2+1 v osobním vlastnictví 53 m², Kladno (ID 205-NP12453)

ulice Petrohradská, Kladno mapa

20 000 Kč ( za měsíc)
GMimořádně
nehospodárná

1x
2x
53 m2
1/4
Exkluzivně

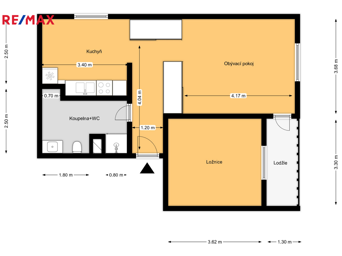
Pronájem bytu o dispozici 2+1 v ulici Petrohradská, Kladno

Exkluzivně Vám k dlouhodobému pronájmu nabízíme byt o dispozici 2+1 o celkové užitné ploše 53m2 + lodžie 4,5 m2 v blízkosti sportovního areálu Sletiště. Byt nacházející se v prvním nadzemním podlaží domu se skládá z obývacího pokoje, kuchyně, ložnice, předsíně, koupelny s toaletou.

Kuchyň je plně vybavená a to včetně indukční desky, trouby, mikrovlnky, myčky na nádobí a lednice. V bytě zůstává veškerý nábytek na fotografiích.

Byt prošel rozsáhlou rekonstrukcí. Celý dům, včetně vnitřních prostor, je v dobrém a udržovaném stavu. V domě není výtah.

Vynikající lokalita Kladna s kompletní občanskou vybaveností a výbornou dostupností do Prahy. V blízkosti se nachází Naučný lesopark Sletiště vhodný k procházkám i sportovnímu vyžití (in-line brusle, jízdárna, koupaliště atd.). Autobusová zastávka cca 200m od domu, vlaková stanice Kladno-město cca 400m od domu. Cesta autem Praha - Zličín cca 25 minut.

Preferujeme nájemní smlouvu na dobu min. 1 roku.

Kauce ve výši 47 000,- Kč. Nájemce nehradí provizi RK.

Byt je k dispozici ihned.

Prohlídky bytu jsou možné ve dni otevřených dveří a to v úterý 3.2. 14:30 - 16:00 hodin. Máte-li zájem o prohlídku tohoto bytu v uvedený termín, kontaktujte nás prosím telefonicky nebo mailem a rezervujte její přesný čas.
Cena:
20 000 CZK / za měsíc
Poznámka k ceně:
+ 3 500,- Kč poplatky + elektřina se přepisuje na nájemce
Upozornění:
Pronajímající si vyhrazuje právo vybrat nájemce na základě jím zvolených kritérií.
Ing. Petra Žižková
RE/MAX Alfa
Spálená 97/29
Praha 1 - Nové Město, 11000
Česká republika
Tel. na makléře: +420 603 408 239
Tel. do kanceláře: +420 296 240 400
E-mail: zizka.team@re-max.cz

Potřebujete poradit/máte zájem o prohlídku?

* – toto pole je nutné vyplnit

Podrobné informace

Číslo zakázky:
ID 205-NP12453
Dispozice:
2+1
Číslo podlaží:
1
Počet podlaží v objektu:
4
Podlahová plocha:
53 m²
Druh objektu:
Cihlová
Stav objektu:
Po rekonstrukci
Vlastnictví:
Osobní
Typ nemovitosti:
Byty
K nastěhování:
5. 2. 2026
Doprava:
Vlak, Dálnice, Silnice, MHD, Autobus
Odpad:
Kanalizace
Užitná plocha:
53 m²
Voda:
Dálkový rozvod
Energetická náročnost budovy:
G