Translate with 
MENU ZAVŘÍT

Prodej domu 120 m², Boskovice (ID 309-NP00484)

ulice Bedřicha Smetany, Boskovice mapa

6 490 000 Kč ( za nemovitost)
GMimořádně
nehospodárná

3x
120 m2
729 m2
1
Exkluzivně

Boskovice: prodej prostorného domu (3+1) s garáží a se zahradou

Nabízím přízemní rodinný dům se zahradou a s garáží na ul.Bedřicha Smetany. Boskovice - město, kde můžete bydlet, podnikat, vychovávat děti, najít nové přátele a prožít zde kus života.

Stav domu / dispozice
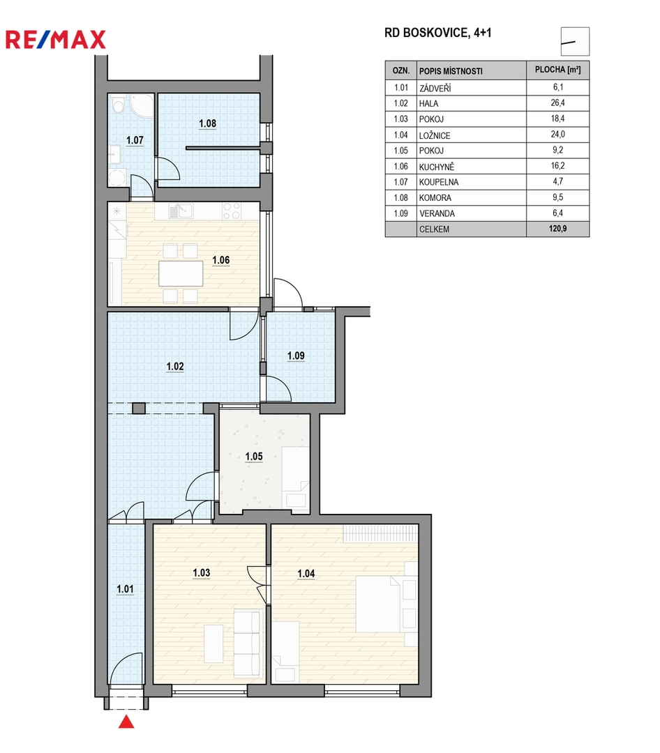
Jedná se o řadový dům, který je určen k rekonstrukci. Původní zděná stavba zabírá plochu asi 230 m², přístavbou se původní dispozice rozšířila o 2 sklady a hospodářské místnosti (málo udržované) v zadním traktu, uliční šíře je 10 m, zastavěná plocha domem a garáží je 270 m², celková plocha pozemku je 729 m². Vnitřní dispozice domu v přízemí je 3+1+veranda, celková podlahová plocha je asi 120 m² (pokoje: 24, 17 a 8 m², kuchyň 13 m², hala 24 m², koupelna 5 m²), k dispozici je malý sklep.

Dům byl postaven asi v r.1920, původní plány se nedochovaly. Stropy jsou dřevěné trámové. V pokojích s okny do ulice jsou dřevěná okna s dvojskly, na podlahách parkety, v hale a na verandě je dlažba, v kuchyni je plastové okno, na podlaze linoleum. Střecha - původní krov, eternitová krytina (nutná oprava). Při provádění oprav se nabízí vybudování půdní vestavby a rozšířit tak dispozici o další místnosti. Parkování ve vlastní garáži. Další technické informace a materiály k nahlédnutí (půdorysy, spotřeba energií) jsou k dispozici na vyžádání u makléře.

Inž. sítě / technologie / rekonstrukce
Elektřina 220/380 V, napojeno na plyn, obecní vodovod, kanalizaci. Vytápění je zajištěno ústředním topením s plynovým kotlem Thermona, v kuchyni je navíc plynový přímotop, ohřev vody zajišťuje plynový ohřívač. Při rekonstrukci v r.2015 bylo vyměněno okno v kuchyni a opravena koupelna (sprchový kout, umyvadlo, WC, otopný žebřík, obklady, dlažba). Zánovní kuchyňská linka (délka 3,4 m) je vybavena mj. myčkou, indukční varnou deskou, digestoří, troubou, vestavěná lednička a mrazák (vše Whirlpool).

Doplňkové stavby
Na dům navazuje sklad zahradního náčiní s dílnou a menší hospodářské prostory. Na východním (zadním) konci pozemku je prostorná zděná garáž (24 m²) s možností parkování pro 2 vozidla, příjezd/výjezd je z/do ulice Sadová. Vnitřní rozměry 4,2 x 5,8 m, výška 2,45 m, sedlová střecha.

Zelené a ostatní plochy
Před domem je předzahrádka 50 m², vzadu na dům navazuje zahrada o výměře cca 200 m².

Lokalita
V blízkosti je ZŠ, MŠ, lékaři, lékárna, obchody (Albert), pošta. V širším okolí města jsou krásné lesy, cyklostezky. Okolní zástavbu tvoří rodinné domy.

Možné využití
Lze tu vybudovat pěkné bydlení nebo využít dům k bydlení a podnikání.

Zavolejte a přijeďte se podívat, rád vás tudy provedu.
Prodávající si vyhrazuje právo vybrat kupujícího na základě jím zvolených kritérií.
Cena:
6 490 000 CZK / za nemovitost
Poznámka k ceně:
včetně odměny zprostředkovatele
RX finance

Spočítejte si splátku hypotéky

Na kolik vás vyjde pořízení vlastního bydlení? Zadejte pár informací do naší hypoteční kalkulačky a hned si prohlédněte výsledek.

Kupní cena nemovitosti

6 490 000 Kč

Výše hypotéky

Doba splácení

Vypočítaná měsíční splátka

Úroková sazba 3.6%

260 990 Kč

Hypotéku zařídíme za vás

Ušetřete svůj čas i nervy. Naši makléři zařídí veškeré papírování a dovedou vás až k úspěšnému podpisu smlouvy v bance.

Nechte nám kontakt, náš makléř se v pracovní dny ozve do 24 hodin

* – toto pole je nutné vyplnit
Ing. Karel Hynšt
REMAX Alfa 2
Koperníkova 4526/1
Brno, 61500
Česká republika
Tel. na makléře: +420 604 533 466
Tel. do kanceláře: +420 737 265 555
E-mail: karel.hynst@re-max.cz

Potřebujete poradit/máte zájem o prohlídku?

* – toto pole je nutné vyplnit

Podrobné informace

Číslo zakázky:
ID 309-NP00484
Poloha objektu:
Řadový
Počet podlaží v objektu:
1
Užitná plocha:
120 m²
Plocha parcely:
729 m²
Druh objektu:
Cihlová
Stav objektu:
Dobrý
Typ nemovitosti:
Domy a vily
Elektřina:
230 V
Garáž:
Ano
Odpad:
Kanalizace
Plocha zahrady:
200 m²
Zastavěná plocha:
228 m²
Plyn:
Plynovod
Typ domu:
Přízemní
Umístění objektu:
Centrum obce
Voda:
Dálkový rozvod
Vybaveno:
Ano
Energetická náročnost budovy:
G