Translate with 
MENU ZAVŘÍT

Prodej domu 147 m², Peruc (ID 273-NP04662)

Peruc – část obce Černochov mapa

9 990 000 Kč ( za nemovitost)
BVelmi
úsporná

4x
147 m2
771 m2
0
Exkluzivně

Prodej Novostavby 147 m2, Peruc

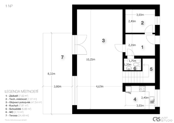
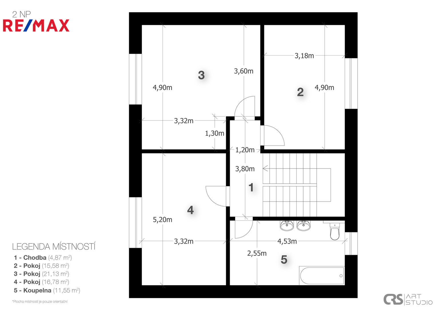
Dovoluji si Vám nabídnout novostavbu rodinného domu o dispozici 4+kk v obci Černochov u Peruce.

Rodinný dům s užitnou plochou 147,29 m² je nabízen jako kompletně dokončený, tedy včetně podlahových krytin, tepelného čerpadla, bojleru, podlahového vytápění, interiérových dveří a plně vybavené koupelny. Kuchyňská linka není součástí ceny a je ponechána na preferencích budoucího majitele. Dům je rovněž připraven na instalaci krbových kamen. Jedná se o cihlovou stavbu s dřevěnými prvky.

Nemovitost je napojena na vodovodní řád a disponuje vlastní ČOV. K domu náleží pozemek o velikosti 771 m². Parkování je zajištěno přímo u domu.

Lokalita nabízí velmi dobrou dopravní dostupnost – autobusová zastávka je vzdálena pouhých 100 metrů. V blízkém okolí se nachází obce a města Peruc, Louny, Lovosice a Litoměřice, přičemž dojezdová vzdálenost do Prahy činí cca 45 minut.

Dokončení stavby je plánováno na léto 2026.
Rád Vás nemovitostí osobně provedu, těším se na setkání při prohlídce.
Cena:
9 990 000 CZK / za nemovitost
Poznámka k ceně:
Upozornění:
Prodávající si vyhrazuje právo vybrat kupujícího na základě jím zvolených kritérií.
RX finance

Spočítejte si splátku hypotéky

Na kolik vás vyjde pořízení vlastního bydlení? Zadejte pár informací do naší hypoteční kalkulačky a hned si prohlédněte výsledek.

Kupní cena nemovitosti

9 990 000 Kč

Výše hypotéky

Doba splácení

Vypočítaná měsíční splátka

Úroková sazba 3.6%

260 990 Kč

Hypotéku zařídíme za vás

Ušetřete svůj čas i nervy. Naši makléři zařídí veškeré papírování a dovedou vás až k úspěšnému podpisu smlouvy v bance.

Nechte nám kontakt, náš makléř se v pracovní dny ozve do 24 hodin

* – toto pole je nutné vyplnit
Bajtik Toktobajev
RE/MAX Partner
Řeporyjské náměstí 16
Praha 5 - Řeporyje, 15500
Česká republika
Tel. na makléře: +420 773 953 231
Tel. do kanceláře: +420 800 434 434
E-mail: bajtik.toktobajev@re-max.cz

Potřebujete poradit/máte zájem o prohlídku?

* – toto pole je nutné vyplnit

Podrobné informace

Číslo zakázky:
ID 273-NP04662
Poloha objektu:
Řadový
Užitná plocha:
147 m²
Plocha parcely:
771 m²
Druh objektu:
Cihlová
Stav objektu:
Novostavba
Typ nemovitosti:
Domy a vily
Doprava:
Vlak, Dálnice, Silnice, MHD, Autobus
Elektřina:
230 V
Odpad:
Čistička odpadních vod pro celý objekt
Typ domu:
Patrový
Voda:
Dálkový rozvod
Energetická náročnost budovy:
B