Translate with 
MENU ZAVŘÍT

Pronájem obchodních prostor 190 m², Rostoklaty (ID 010-NP05042)

Rostoklaty, okres Kolín mapa

45 000 Kč ( za měsíc)
BVelmi
úsporná

190 m2
Exkluzivně

Pronájem nového nebytového prostoru 190 m2

Exkluzivně nabízíme zcela nový, nepoužívaný nebytový prostor s přímým vstupem z ulice na atraktivním místě u hlavního tahu na Český Brod a Kolín.

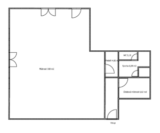
Nebytový prostor o výměře 190 m2 se nachází v přízemí cihlové novostavby a má široké využití, jako například atraktivní obchodní prostory – showroom, kanceláře, sklad nebo i prodejna potravin.

Vytápění prostoru je zajištěno pomocí tepelného čerpadla, topení je podlahové. Prostor je řešen jako jedna velká plocha o výměře 168 m2, kterou je možno rozdělit sádrokartonovou příčkou dle potřeby, dále pak sklad, dvě toalety, kuchyňka, technická místnost, předsíň a případně sprcha.

Nebytový prostor je vybaven zabezpečovacím zařízením, okna jsou plastová trojskla. Dům, ve kterém se prostor nachází je na oploceném pozemku s možností umístění reklamy, která bude velmi dobře viditelná pro projíždějící auta po hlavní silnici.

Parkovaní před domem pro zákazníky, dále pak parkování v oploceném areálu, který je střežen kamerovým systémem se záznamem.

Měsíční nájemné činí 45 000 Kč plus poplatky za služby 5 000 Kč. Vratná kauce je 60 000 Kč.
Prostor je ihned volný. Pronajímající si vyhrazuje právo vybrat nájemce na základě jím zvolených kritérií.
Cena:
45 000 CZK / za měsíc
Poznámka k ceně:
+ poplatky za služby 5.000,- Kč / měsíc. Vratná kauce činí 60.000 Kč.
Upozornění:
Pronajímající si vyhrazuje právo vybrat nájemce na základě jím zvolených kritérií.
Otakar Schuma
RE/MAX Search
Na bělidle 309/31
Praha 5 - Smíchov, 15000
Česká republika
Tel. na makléře: +420 777 051 051
Tel. do kanceláře: +420 734 526 176
E-mail: otakar.schuma@re-max.cz

Potřebujete poradit/máte zájem o prohlídku?

* – toto pole je nutné vyplnit

Podrobné informace

Číslo zakázky:
ID 010-NP05042
Typ nemovitosti:
Komerční prostory
Druh prostor:
Obchodní
Číslo podlaží:
1
Plocha kanceláří:
190 m²
Druh objektu:
Cihlová
Stav objektu:
Novostavba
K nastěhování:
3. 2. 2026
Elektřina:
230 V, 400 V
Občanská vybavenost:
Kompletní síť obchodů a služeb
Odpad:
Kanalizace
Celková plocha:
190 m²
Typ domu:
Patrový
Umístění objektu:
Centrum obce
Voda:
Dálkový rozvod
Energetická náročnost budovy:
B